東京都渋谷区代々木3丁目(代々木駅)の賃貸:物件詳細
交通 所在地 |
駅徒歩 |
賃料 管理費等 |
敷金/保証金 礼金 |
間取り 面積 |
物件種目 築年月 |
|
都営大江戸線/代々木
東京都渋谷区代々木3丁目
|
8分
|
16.2万円
15,000円
|
1ヶ月 / なし
1ヶ月
|
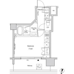
ワンルーム
24.10m²
|
賃貸マンション
2025年11月
|
ペット相談、楽器相談、最上階、事務所使用可
|
|
間取図
|
|
その他の画像
|
| 交通 | 都営大江戸線 代々木駅 徒歩8分 |
|---|
| その他の交通 | 小田急小田原線 参宮橋駅 徒歩6分 小田急小田原線 南新宿駅 徒歩7分 |
| 所在地 |
東京都渋谷区代々木3丁目
|
| 物件種目 |
賃貸マンション |
| 賃料 |
16.2万円 |
管理費等 |
15,000円 |
| 敷金 / 保証金 |
1ヶ月 / なし |
礼金 |
1ヶ月 |
| 敷引 |
- |
保証金償却 |
- |
| その他一時金 |
駆け付けサポート24:16,500円 |
保険等 |
要 |
| 維持費等 |
- |
クレジットカード決済 |
初期費用可 |
| 間取り |
ワンルーム |
専有面積 |
24.10m² |
| 築年月 |
2025年11月
|
階建 / 階 |
地上9階地下1階建 / 9階 |
| 建物構造 |
RC |
総戸数 |
46戸 |
| 主要採光面 |
北 |
駐車場 |
近有 49,500円/月 |
| バイク置き場 |
有 11,000円/月 |
駐輪場 |
有 440円/月 |
| 建物名・部屋番号 |
ザ・パークハビオ代木 |
ペット |
相談 |
| アピールポイント |
☆当店の強みをお伝えします☆
①クレジットカードの初期費用分割払いを、喜んでお受けいたします(クレジットカード以外もOK)
②他社様がネットに掲載されている物件は、全てお調べし、【好条件】でご紹介いたします
他社様で「お申込み」された物件でも、【好条件】でご紹介できる場合がございます
③「審査が不安…」「保証人がいない…」「値段交渉をして欲しい…」などなど、
どのようなご条件でも、遠慮なくご相談いただけます
④ご検討されている「エリア」「沿線」が「広範囲」「複数」でも、一度で漏れなくお探しいただけます
ポータルサイトや他社サイトで気になるお部屋がございましたらお気軽にご相談ください
お客様のご来店を心よりお待ちしております |
| リフォーム履歴 |
- |
| リノベーション履歴 |
- |
| 備考 |
賃貸保証等:加入要(初回:賃料等の50%(最低保証料2万円)、2年目以降:1年毎1万円)
管理形態/管理員の勤務形態:-/-
外壁コンクリート
ペット相談可(小型犬猫計2匹迄/敷金1か月積増)/SOHO相談可(登記不特定多数来訪業種看板設置何も不可、敷金1か月積増、保証料賃料等合計100%1年毎10%)/駐輪場月額440~5500円シール有/バイク置場月額11000円サイズ制限有/鍵交換代借主負担/室内清掃及びエアコン清掃費用借主負担(退去時)
|
| エネルギー消費性能 |
- |
| 断熱性能 |
- |
| 目安光熱費 |
- |
| バス・トイレ |
バス・トイレ別、浴室乾燥機、オートバス、追焚機能、温水洗浄便座、トイレ |
| キッチン |
2口コンロ、ガスコンロ付 |
| セキュリティー |
モニター付オートロック、オートロック、モニター付インターホン、防犯カメラ |
| 収納 |
- |
| 設備・サービス |
室内洗濯機置場、フローリング、都市ガス、エアコン |
| TV・通信 |
インターネット対応、インターネット使用料無料、光ファイバー |
| その他 |
宅配BOX、バイク置き場、バルコニー、駐輪場、エレベーター |
| 契約期間 |
2年 |
現況 |
未完成 |
| 条件等 |
- |
入居可能時期 |
指定有り2025年11月20日 |
| 更新料 |
- |
物件番号 |
1120733616 |
| 情報公開日 |
2025年10月28日 |
次回更新予定日 |
2025年11月11日 |
| ケータイ用バーコード |
- スマートフォンでこの物件を見る
- スマートフォンからもこの物件をご覧になれます。
|
※「-」と表示されている項目については、情報提供会社にご確認ください。
| 周辺施設 |
スーパーマーケット リコス 代々木1丁目店 |
| 距離 |
186m |
写真を見る |
| 周辺施設 |
ローソン 代々木一丁目店 |
| 距離 |
244m |
写真を見る |
| 周辺施設 |
ウエルシア代々木三丁目店 |
| 距離 |
312m |
写真を見る |
| 周辺施設 |
CAFE DI ESPRESSO 珈琲館 参宮橋店 |
| 距離 |
550m |
写真を見る |
| 周辺施設 |
文化ファッション大学院大学 |
| 距離 |
484m |
写真を見る |
| 周辺施設 |
東海大学医学部付属東京病院 |
| 距離 |
583m |
写真を見る |
| 周辺施設 |
木村整形外科医院 |
| 距離 |
941m |
写真を見る |
| 周辺施設 |
代々木三郵便局 |
| 距離 |
294m |
写真を見る |
ここから簡単にお問い合わせをすることができます。
(SSLでの暗号化での送信を希望されるお客さまは
こちら
よりお問い合わせください)
お問い合わせを行う前に
「個人情報の取り扱いについて」を必ずお読みください。
「個人情報の取り扱いについて」に同意いただいた場合は「上記にご同意の上 確認画面へ進む」のボタンをクリックしてください。
個人情報の取り扱いについて
皆さまが送付された個人情報はアットホーム(株)のサーバを経由し、お問い合わせ先の不動産会社にメールまたはFAXにて転送されるためアットホーム(株)にも保管されます。アットホーム(株)で保管された個人情報の取り扱いについては、【こちら】をご覧ください。
また、本画面でご記入いただいた個人情報は、お問い合わせ先の不動産会社でも保管します。 お問い合わせ先の不動産会社が保管する個人情報の取り扱いについては、不動産会社に直接お問い合わせください。
国土交通大臣免許(1)第10782号 |
|---|
- 交通:
- 小田急小田原線/下北沢駅 徒歩1分
- 東京都世田谷区北沢2丁目12-4 新第2マツヤビル 5階
- TEL:
- 03-5431-5393
- FAX:
- 03-5431-5392
- 所属団体:
- (公社)全日本不動産協会会員(公社)首都圏不動産公正取引協議会加盟
取引態様:仲介  - 00785877
|
- スマートフォンで
この不動産会社を見る

|
- 提携サイト等より掲載されている物件情報につきましては、不動産会社詳細情報にリンクされていないものがあります。
- 物件に関するお問合せは、物件詳細ページの「情報提供会社」に表示されている不動産会社へ直接お願いいたします。
- 間取図は、現況を優先させていただきます。
- 映像は物件の一部を撮影したものです。物件の契約にあたっての最終判断はご自身の判断に基づいて行ってください。
- 仲介手数料について

アットホームは物件情報の適正化に努めております。
内容に誤りがある場合にはこちらへご連絡ください。