不動産 賃貸 マンション等の住宅情報:埼玉住まい情報


東京都品川区大崎4丁目(戸越駅)の賃貸:物件詳細

  • 物件詳細
  • 情報の見方
  • 印刷用画面
交通
所在地
駅徒歩 賃料
管理費等
敷金/保証金
礼金
間取り
面積
物件種目
築年月

都営浅草線/戸越

東京都品川区大崎4丁目

8分

17.3万円

10,000円

1ヶ月 / なし

1ヶ月

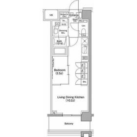
1LDK

32.38m²

賃貸マンション

2023年1月(築2年10ヶ月)

おすすめPOINTペット相談、常時ゴミ出し可能、高齢者相談、二人入居可、24時間換気システム、IT重説対応物件

おすすめコメント

セキュリティ面は、オートロック・TVインターホンなど充実しているので、防犯対策もばっちりです。収納はクロゼット・シューズボックスなどが備え付けられているので、衣類や日用品の収納に重宝します。

間取図

間取図

外観

外観

<
その他の画像
  • バス/シャワー
  • 収納
  • 洗面
  • 玄関
  • エントランス
  • その他
  • リビング
  • 共有部分
  • バルコニー
  • トイレ
  • 室内
  • キッチン
  • 販売店
  • 販売店
  • 郵便局
>
    • とりあえず保存
    • お問い合わせ
    交通

    都営浅草線 戸越駅 徒歩8分

    その他の交通

    JR山手線 大崎駅 徒歩11分

    東急池上線 大崎広小路駅 徒歩6分

    所在地 東京都品川区大崎4丁目
    物件種目 賃貸マンション
    賃料 17.3万円 管理費等 10,000円
    敷金 / 保証金 1ヶ月 / なし 礼金 1ヶ月
    敷引 保証金償却
    その他一時金 駆けつけサポート24:16,500円 保険等 要 2年 20,000円
    維持費等 クレジットカード決済 初期費用可
    間取り 1LDK(LDK10.2、洋2.5) 専有面積 32.38m²
    築年月 2023年1月(築2年10ヶ月) 階建 / 階 9階建 / 3階
    建物構造 RC 総戸数
    主要採光面 南東 駐車場 有 33,000円/月
    バイク置き場 駐輪場
    建物名・部屋番号 ヴェール・クレール大崎 ペット 相談
    アピールポイント 室内設備は洗面所独立・浴室乾燥機など大変充実しております。収納はクロゼット・シューズボックスなど豊富なので、広々と空間を利用することも可能です。共用部には宅配ボックス・ゴミ出し24時間OKなどが揃っております。セキュリティ面は、TVインターホン・オートロックなど充実しているので安心して生活できます。32.38平米程の専有面積でスペースも十分。住みやすい環境が嬉しい賃貸物件です。共用設備の充実している、楽しく生活できるマンションです。駐車場に空きがあるので車を所有している方も安心です。BSの受信環境は整っているので、BS加入後すぐに視聴できます。バルコニー付きの物件で、用途に合わせて活用できおすすめです。ペットと入居できるか事前にご相談いただける物件です。
    リフォーム履歴
    リノベーション履歴
    備考
    賃貸保証等:加入要(ジェイリース [保証会社]加入要[保証会社名]その他[保証会社利用料]ジェイリース・ウェルオンソリューションズ 初年度保証料:賃料等合計額の50% 2年目以降:1年毎1万)
    管理形態/管理員の勤務形態:-/日勤
    IT重説対応物件、管理人日勤
    ★同タイプ・別階の内観写真を掲載している場合があります。図面と現況が異なる場合は現況を優先いたします。
    共用部にはゴミ出し24時間OK・宅配ボックスなどが揃っております。室内設備は洗面所独立・浴室乾燥機などが揃っており、とても充実しています。セキュリティ面は、TVインターホン・オートロックなど充実しているので、防犯対策もばっちりです。収納はシューズボックス・クロゼットなど豊富なので、広々と空間を利用することも可能です。駐車場料金は、月額33000円です。住みやすい環境が嬉しい賃貸物件です。共用部に防犯カメラを設置しているので、不法投棄やいたずらの防止につながります。駐輪場が併設されている物件です。普段からパソコンを使う方にオススメ物件、ネット回線導入済み。令和7年10月という入居期日指定はあるものの、非常に好条件の物件となっております。この物件はチューナーのご用意とご契約だけでBSを楽しめます。
    エネルギー消費性能
    断熱性能
    目安光熱費
    バス・トイレ バス・トイレ別、浴室乾燥機、追焚機能、洗面所独立、洗面所、シャワー、温水洗浄便座、トイレ
    キッチン システムキッチン、2口コンロ、ガスコンロ可
    セキュリティー モニター付オートロック、オートロック、モニター付インターホン、防犯カメラ
    収納 収納スペース、シューズインクローゼット、クローゼット、シューズボックス
    設備・サービス 全居室エアコン、エアコン2台以上、室内洗濯機置場、洗濯機置場、全居室フローリング、フローリング、都市ガス、エアコン、冷房
    TV・通信 インターネット対応、CS、BS端子
    その他 宅配BOX、バルコニー、エレベーター
    契約期間 2年 現況 居住中
    条件等 入居可能時期 2025年10月下旬予定
    更新料 新賃料 1ヶ月 物件番号 1121282515
    情報公開日 2025年9月27日 次回更新予定日 2025年11月3日
    ケータイ用バーコード

    QRコード

    スマートフォンでこの物件を見る
    スマートフォンからもこの物件をご覧になれます。
    ※「-」と表示されている項目については、情報提供会社にご確認ください。

    この物件の周辺情報

    周辺施設 ライフ 大崎百反通店
    距離 486m
    周辺施設 三光薬局大崎店
    距離 508m
    周辺施設 大崎三郵便局
    距離 405m

    クイックお問い合わせ

    ここから簡単にお問い合わせをすることができます。
    (SSLでの暗号化での送信を希望されるお客さまは こちら よりお問い合わせください)

    お問い合わせ内容(必須)
    お名前(必須) 姓  名 
    メールアドレス(必須)
    ※携帯電話のメールアドレスをご入力される方はこちらをご確認ください
    電話番号(必須)
    - -

    ※入力いただいた電話番号へSMSまたは音声でパスワードをご連絡します。

    携帯電話の番号をご入力の方へ

    携帯電話の番号をご入力の方へ
    確認画面にて送信ボタンをクリックするとSMSが携帯電話に届きます。
    そのSMSに記載のパスワード(認証番号)を入力し、お問い合わせを完了してください。
    尚、SMSの送信者番号は 0005 202 760 となります。
    これはアットホームの固定番号です。

    備考欄 希望条件、物件案内希望日、質問などがございましたらご記入ください。
    お問い合わせを行う前に「個人情報の取り扱いについて」を必ずお読みください。
    「個人情報の取り扱いについて」に同意いただいた場合は「上記にご同意の上 確認画面へ進む」のボタンをクリックしてください。

    個人情報の取り扱いについて

    皆さまが送付された個人情報はアットホーム(株)のサーバを経由し、お問い合わせ先の不動産会社にメールまたはFAXにて転送されるためアットホーム(株)にも保管されます。アットホーム(株)で保管された個人情報の取り扱いについては、【こちら】をご覧ください。
    また、本画面でご記入いただいた個人情報は、お問い合わせ先の不動産会社でも保管します。 お問い合わせ先の不動産会社が保管する個人情報の取り扱いについては、不動産会社に直接お問い合わせください。

    情報提供会社

    情報提供会社

    (株)Lim estate

    東京都知事免許(1)第109763号

    交通:
    東京メトロ有楽町線/銀座一丁目駅 徒歩3分
    東京都中央区銀座1丁目5-1 Holon GinzaⅡ
    TEL:
    03-5962-8933
    FAX:
    03-5962-8933
    所属団体:
    (公社)東京都宅地建物取引業協会会員
    (公社)首都圏不動産公正取引協議会加盟

    取引態様:仲介

    • 会社情報
    • 00275939
    スマートフォンで
    この不動産会社を見る
    QRコード
    • とりあえず保存
    • お問い合わせ
    • 提携サイト等より掲載されている物件情報につきましては、不動産会社詳細情報にリンクされていないものがあります。
    • 物件に関するお問合せは、物件詳細ページの「情報提供会社」に表示されている不動産会社へ直接お願いいたします。
    • 間取図は、現況を優先させていただきます。
    • 映像は物件の一部を撮影したものです。物件の契約にあたっての最終判断はご自身の判断に基づいて行ってください。
    • 仲介手数料について仲介手数料

    アットホームは物件情報の適正化に努めております。 内容に誤りがある場合にはこちらへご連絡ください。

    【埼玉住まい情報】では、日本全国の物件から賃貸マンションや賃貸アパート・賃貸一戸建て等の賃貸住宅情報、新築マンション・分譲マンションや中古マンション等の売買マンション情報、新築一戸建てや中古一戸建てなどの戸建住宅、 土地など、総合的な不動産住宅情報検索サービスを提供致します。
    【埼玉住まい情報】から、選りすぐりの不動産物件を探してみましょう。

    【免責事項】
    このコーナーの運営はアットホーム株式会社(https://www.athome.co.jp/)が行っています。
    このコーナーに掲載している物件情報は、「アットホーム不動産情報ネットワーク」に加盟する不動産会社等(情報提供元)から提供されています。信頼性の高い情報提供が行えるよう、最大限の努力をしておりますが、その内容を保証するものではありません。 利用者のみなさまと各情報提供元との取引に起因する損害および情報が掲載されたことに起因する損害等については、株式会社イーシティ埼玉、およびアットホームは一切責任を負いません。
    各物件情報の内容や画像等はすべて現況を優先させていただきます。
    お取引等(お取引の準備、資金調達等を含みます)の際には、内容や契約条件等について、各情報提供元より十分な説明を受け、ご自身でご確認の上、判断してください。
    このコーナーへの物件情報のご掲載、その他不動産業務ソリューション等についての不動産会社様のお問合せはこちらからお願いいたします。

    物件画像: