神奈川県横浜市鶴見区下野谷町1丁目(京急鶴見駅)の賃貸:物件詳細
交通 所在地 |
駅徒歩 |
賃料 管理費等 |
敷金/保証金 礼金 |
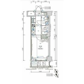
間取り 面積 |
物件種目 築年月 |
|
京急本線/京急鶴見
神奈川県横浜市鶴見区下野谷町1丁目
|
13分
|
9万円
10,000円
|
1ヶ月 / なし
なし
|
1K
22.33m²
|
賃貸マンション
2018年12月(築7年3ヶ月)
|
高齢者相談、免震構造、制震構造、24時間換気システム、IT重説対応物件、保証人不要
|
|
間取図
|
外観
|
その他の画像
|
| 交通 | 京急本線 京急鶴見駅 徒歩13分 |
|---|
| その他の交通 | JR鶴見線 鶴見小野駅 徒歩6分 JR鶴見線 国道駅 徒歩8分 |
| 所在地 |
神奈川県横浜市鶴見区下野谷町1丁目
|
| 物件種目 |
賃貸マンション |
| 賃料 |
9万円 |
管理費等 |
10,000円 |
| 敷金 / 保証金 |
1ヶ月 / なし |
礼金 |
なし |
| 敷引 |
- |
保証金償却 |
- |
| その他一時金 |
なし、鍵交換代等:16,500円~ |
保険等 |
要 2年 18,000円 |
| 維持費等 |
- |
クレジットカード決済 |
初期費用可 |
| 間取り |
1K(洋6.8) |
専有面積 |
22.33m² |
| 築年月 |
2018年12月(築7年3ヶ月)
|
階建 / 階 |
7階建 / 3階 |
| 建物構造 |
RC |
総戸数 |
- |
| 主要採光面 |
|
駐車場 |
有 19,800円/月 |
| バイク置き場 |
有 |
駐輪場 |
有 |
| 建物名・部屋番号 |
オーキッドレジデンス鶴見 |
ペット |
-
|
| アピールポイント |
共用部には宅配ボックスが備え付けられているため、好きなタイミングで荷物を受け取ることができます。収納はシューズボックス・クロゼットなど豊富なので、衣類や履き物の整理がしやすく便利です。室内設備は洗面化粧台・浴室乾燥機など豊富に揃っており、過ごしやすいお部屋になっております。セキュリティ面は、オートロック・TVインターホンなど充実しているので、防犯対策もばっちりです。徒歩13分で駅へのアクセスができる物件です。引越し費用を抑えられる礼金不要の物件です。フローリングは防音性にも優れているのでニーズが高いです。入居時からインターネット環境が整っているため、ネット回線の工事がいらずコロナ禍で人との接触を避けたい方でも安心して住み始めることができます。雨が続いてジメジメしていてもエアコンが付いていれば快適に過ごせます。駐輪場付きの物件です。1台分の駐車スペースが現在空き状態になっております。 |
| リフォーム履歴 |
- |
| リノベーション履歴 |
- |
| 備考 |
賃貸保証等:加入要(初回保証料:総賃料50% 月額保証料:総賃料1%)
管理形態/管理員の勤務形態:-/巡回
IT重説対応物件、管理人巡回
セキュリティ面は、TVインターホン・オートロックなど充実しているので安心して生活できます。収納はクロゼット・シューズボックスなど豊富なので、広々と空間を利用することも可能です。室内設備は洗面所独立・浴室乾燥機などが揃っているので、快適に過ごしやすいお部屋になります。共用部には宅配ボックスが備え付けられているため、非対面で荷物を受け取れます。引っ越しの希望日などあればお伝えください。対応させていただきます。1台分の駐車スペースが現在空き状態になっております。車にいたずらされにくい、敷地内駐車場の空きがあります。2駅利用可能なアクセスの良いマンションです。こちらのお部屋で新しい生活を始めてみませんか。家賃10万円以下のマンションをお探しのお客様におすすめです。落ち着きのある空間が広がっている、平成30年築の物件です。
|
| エネルギー消費性能 |
- |
| 断熱性能 |
- |
| 目安光熱費 |
- |
| バス・トイレ |
バス・トイレ別、浴室乾燥機、シャワー付洗面化粧台、洗面所独立、洗面所、洗面台、温水洗浄便座、トイレ |
| キッチン |
システムキッチン、2口コンロ、ガスコンロ可 |
| セキュリティー |
モニター付オートロック、オートロック、モニター付インターホン、防犯カメラ |
| 収納 |
収納スペース、クローゼット、シューズボックス |
| 設備・サービス |
洗濯機置場、都市ガス給湯、給湯、全居室フローリング、フローリング、都市ガス、エアコン、照明器具 |
| TV・通信 |
インターネット対応、インターネット使用料無料、CS、BS端子 |
| その他 |
宅配BOX、バイク置き場、バルコニー、駐輪場、エレベーター |
| 契約期間 |
2年 |
現況 |
居住中 |
| 条件等 |
- |
入居可能時期 |
相談 |
| 更新料 |
新賃料 1ヶ月 |
物件番号 |
1121318822 |
| 情報公開日 |
2026年1月28日 |
次回更新予定日 |
2026年2月11日 |
| ケータイ用バーコード |
- スマートフォンでこの物件を見る
- スマートフォンからもこの物件をご覧になれます。
|
※「-」と表示されている項目については、情報提供会社にご確認ください。
| 周辺施設 |
ライフ 鶴見下野谷町店 |
| 距離 |
60m |
写真を見る |
| 周辺施設 |
クリエイトSD(エス・ディー) 鶴見下野谷町店 |
| 距離 |
217m |
写真を見る |
| 周辺施設 |
まいばすけっと 鶴見本町通2丁目店 |
| 距離 |
569m |
写真を見る |
| 周辺施設 |
ローソン 鶴見本町通二丁目店 |
| 距離 |
536m |
写真を見る |
| 周辺施設 |
ローソンストア100 鶴見潮見橋店 |
| 距離 |
414m |
写真を見る |
| 周辺施設 |
ローソン 横浜生麦5丁目店 |
| 距離 |
624m |
写真を見る |
| 周辺施設 |
セブンイレブン 横浜鶴見中央5丁目店 |
| 距離 |
575m |
写真を見る |
| 周辺施設 |
まいばすけっと 鶴見本町通店 |
| 距離 |
664m |
写真を見る |
ここから簡単にお問い合わせをすることができます。
(SSLでの暗号化での送信を希望されるお客さまは
こちら
よりお問い合わせください)
お問い合わせを行う前に
「個人情報の取り扱いについて」を必ずお読みください。
「個人情報の取り扱いについて」に同意いただいた場合は「上記にご同意の上 確認画面へ進む」のボタンをクリックしてください。
個人情報の取り扱いについて
皆さまが送付された個人情報はアットホーム(株)のサーバを経由し、お問い合わせ先の不動産会社にメールまたはFAXにて転送されるためアットホーム(株)にも保管されます。アットホーム(株)で保管された個人情報の取り扱いについては、【こちら】をご覧ください。
また、本画面でご記入いただいた個人情報は、お問い合わせ先の不動産会社でも保管します。 お問い合わせ先の不動産会社が保管する個人情報の取り扱いについては、不動産会社に直接お問い合わせください。
神奈川県知事免許(1)第32469号 |
|---|
- 交通:
- JR京浜東北線/横浜駅 徒歩10分
- 神奈川県横浜市西区浅間町1丁目13-5 藤江ビル3階
- TEL:
- 045-900-4191
- FAX:
- 045-548-3835
- 所属団体:
- (公社)全日本不動産協会会員(公社)首都圏不動産公正取引協議会加盟
取引態様:仲介  - 00277505
|
- スマートフォンで
この不動産会社を見る

|
- 提携サイト等より掲載されている物件情報につきましては、不動産会社詳細情報にリンクされていないものがあります。
- 物件に関するお問合せは、物件詳細ページの「情報提供会社」に表示されている不動産会社へ直接お願いいたします。
- 間取図は、現況を優先させていただきます。
- 映像は物件の一部を撮影したものです。物件の契約にあたっての最終判断はご自身の判断に基づいて行ってください。
- 仲介手数料について

アットホームは物件情報の適正化に努めております。
内容に誤りがある場合にはこちらへご連絡ください。