東京都町田市南町田5丁目(南町田グランベリーパーク駅)の賃貸:物件詳細
交通 所在地 |
駅徒歩 |
賃料 管理費等 |
敷金/保証金 礼金 |
間取り 面積 |
物件種目 築年月 |
|
東急田園都市線/南町田グランベリーパーク
東京都町田市南町田5丁目
|
6分
|
7.4万円
3,000円
|
なし / なし
1ヶ月
|
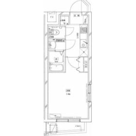
1K
24.96m²
|
賃貸マンション
2009年2月(築17年3ヶ月)
|
角部屋、最上階、南向き、2面採光、24時間換気システム、外観タイル張り
|
|
間取図
|
外観
|
その他の画像
|
| 交通 | 東急田園都市線 南町田グランベリーパーク駅 徒歩6分 |
|---|
| その他の交通 | 東急田園都市線 すずかけ台駅 徒歩11分 東急田園都市線 つきみ野駅 徒歩22分 |
| 所在地 |
東京都町田市南町田5丁目
|
| 物件種目 |
賃貸マンション |
| 賃料 |
7.4万円 |
管理費等 |
3,000円 |
| 敷金 / 保証金 |
なし / なし |
礼金 |
1ヶ月 |
| 敷引 |
- |
保証金償却 |
- |
| その他一時金 |
室内清掃費用:49,500円、鍵交換代等:24,200円~ |
保険等 |
要 2年 20,000円 |
| 維持費等 |
賃料等口座引落手数料:165円/月 |
クレジットカード決済 |
初期費用可 |
| 間取り |
1K(洋室7.6帖 K3.0帖) |
専有面積 |
24.96m² |
| 築年月 |
2009年2月(築17年3ヶ月)
|
階建 / 階 |
4階建 / 4階 |
| 建物構造 |
RC |
総戸数 |
- |
| 主要採光面 |
南 |
駐車場 |
無 |
| バイク置き場 |
無 |
駐輪場 |
有 無料 |
| 建物名・部屋番号 |
403 |
ペット |
-
|
| アピールポイント |
初期費用分割払可能!
※3回~最長60回払い可(要審査有)
※クレジットカード払いではありません
※分割払いを利用して住みたい物件に住もう!
契約の一部現金支払い・一部分割払いも可能です!
|
| リフォーム履歴 |
- |
| リノベーション履歴 |
- |
| 備考 |
賃貸保証等:加入要(賃貸保証料:0.30ヶ月 株式会社、利用料金:月額賃料等合計の30%(契約時・以降1年毎13,000円が必要です。))
管理形態/管理員の勤務形態:-/巡回
単身者限定、管理人巡回
初期費用分割払可能!※3回~最長60回払い可(要審査有)
初期費用分割を利用して住みたい物件に住もう!
契約の一部現金支払い・一部分割払いも可能です!
クレジットカードは利用しない分割です!
※クレジットカード決済も可
※最大100万円まで分割可能です
|
| エネルギー消費性能 |
- |
| 断熱性能 |
- |
| 目安光熱費 |
- |
| バス・トイレ |
バス・トイレ別、浴室乾燥機、シャワー付洗面化粧台、洗面所独立、シャワー、温水洗浄便座、トイレ |
| キッチン |
システムキッチン、2口コンロ、ガスコンロ付 |
| セキュリティー |
オートロック、ディンプルキー |
| 収納 |
収納スペース、クローゼット |
| 設備・サービス |
室内洗濯機置場、給湯、フローリング、プロパンガス、エアコン、複層ガラス |
| TV・通信 |
ケーブルTV、BS端子 |
| その他 |
バルコニー、駐輪場 |
| 契約期間 |
2年 |
現況 |
居住中 |
| 条件等 |
- |
入居可能時期 |
2026年5月中旬予定 |
| 更新料 |
新賃料 1ヶ月 |
物件番号 |
1121434223 |
| 情報公開日 |
2026年3月27日 |
次回更新予定日 |
2026年4月11日 |
| ケータイ用バーコード |
- スマートフォンでこの物件を見る
- スマートフォンからもこの物件をご覧になれます。
|
※「-」と表示されている項目については、情報提供会社にご確認ください。
| 周辺施設 |
グランベリーパーク |
| 距離 |
660m |
写真を見る |
| 周辺施設 |
山口白山公園 |
| 距離 |
1161m |
写真を見る |
| 周辺施設 |
すずかけ台駅(東急 田園都市線) |
| 距離 |
850m |
| 周辺施設 |
カルディコーヒーファームグランベリーパーク店 |
| 距離 |
620m |
| 周辺施設 |
セブンイレブン町田街道鶴間店 |
| 距離 |
210m |
ここから簡単にお問い合わせをすることができます。
(SSLでの暗号化での送信を希望されるお客さまは
こちら
よりお問い合わせください)
お問い合わせを行う前に
「個人情報の取り扱いについて」を必ずお読みください。
「個人情報の取り扱いについて」に同意いただいた場合は「上記にご同意の上 確認画面へ進む」のボタンをクリックしてください。
個人情報の取り扱いについて
皆さまが送付された個人情報はアットホーム(株)のサーバを経由し、お問い合わせ先の不動産会社にメールまたはFAXにて転送されるためアットホーム(株)にも保管されます。アットホーム(株)で保管された個人情報の取り扱いについては、【こちら】をご覧ください。
また、本画面でご記入いただいた個人情報は、お問い合わせ先の不動産会社でも保管します。 お問い合わせ先の不動産会社が保管する個人情報の取り扱いについては、不動産会社に直接お問い合わせください。
神奈川県知事免許(9)第16250号 |
|---|
- 交通:
- 東急田園都市線/溝の口駅 徒歩5分
- 神奈川県川崎市高津区溝口1丁目18-6 溝ノ口第7三信ビル3F
- TEL:
- 044-829-1231
- FAX:
- 044-829-1232
- 所属団体:
- (公社)神奈川県宅地建物取引業協会会員
取引態様:仲介  - 00102731
|
- スマートフォンで
この不動産会社を見る

|
- 提携サイト等より掲載されている物件情報につきましては、不動産会社詳細情報にリンクされていないものがあります。
- 物件に関するお問合せは、物件詳細ページの「情報提供会社」に表示されている不動産会社へ直接お願いいたします。
- 間取図は、現況を優先させていただきます。
- 映像は物件の一部を撮影したものです。物件の契約にあたっての最終判断はご自身の判断に基づいて行ってください。
- 仲介手数料について

アットホームは物件情報の適正化に努めております。
内容に誤りがある場合にはこちらへご連絡ください。