東京都目黒区目黒本町2丁目(学芸大学駅)の賃貸:物件詳細
交通 所在地 |
駅徒歩 |
賃料 管理費等 |
敷金/保証金 礼金 |
間取り 面積 |
物件種目 築年月 |
|
東急東横線/学芸大学
東京都目黒区目黒本町2丁目
|
16分
|
25.9万円
10,000円
|
なし / なし
なし
|
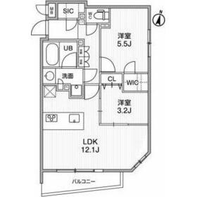
2LDK
50.44m²
|
賃貸マンション
2024年8月(築1年7ヶ月)
|
フリーレント、角部屋、最上階、南向き、二人入居可、24時間換気システム、保証人不要
|
|
間取図
|
外観
|
<
その他の画像
>
|
| 交通 | 東急東横線 学芸大学駅 徒歩16分 |
|---|
| その他の交通 | 東急目黒線 武蔵小山駅 徒歩16分 東急目黒線 西小山駅 徒歩17分 |
| 所在地 |
東京都目黒区目黒本町2丁目
|
| 物件種目 |
賃貸マンション |
| 賃料 |
25.9万円 |
管理費等 |
10,000円 |
| 敷金 / 保証金 |
なし / なし |
礼金 |
なし |
| 敷引 |
- |
保証金償却 |
- |
| その他一時金 |
Goodプレミアムα(24Hサポートのみ):16,500円、Goodプレミアムα登録料:3,300円、鍵交換代等:24,200円~ |
保険等 |
要 2年 28,000円 |
| 維持費等 |
- |
クレジットカード決済 |
初期費用可 |
| 間取り |
2LDK(LDK12.1、洋5.5、洋3.2) |
専有面積 |
50.44m² |
| 築年月 |
2024年8月(築1年7ヶ月)
|
階建 / 階 |
4階建 / 4階 |
| 建物構造 |
RC |
総戸数 |
- |
| 主要採光面 |
南 |
駐車場 |
- |
| バイク置き場 |
- |
駐輪場 |
- |
| 建物名・部屋番号 |
ルネサンスコート学芸大学 |
ペット |
-
|
| リフォーム履歴 |
- |
| リノベーション履歴 |
- |
| 備考 |
賃貸保証等:加入要(エポスカード 月次(FIS保険)東京初回保証料60%+月次1%(フレックス少額短期保険代保証))
管理形態/管理員の勤務形態:-/-
フリーレント:1ヶ月
新生活応援CP♪ご成約で5000円分アマギフかスタバカード♪
【豪徳寺駅・三軒茶屋駅・中目黒駅・下高井戸駅の4店舗で営業中♪】お部屋探しはファニーホーム♪地域密着店だから出来るお家賃交渉や当社独自の物件情報がございます!他社様掲載物件のお調べ・ご紹介が可能です♪
|
| エネルギー消費性能 |
- |
| 断熱性能 |
- |
| 目安光熱費 |
- |
| バス・トイレ |
バス・トイレ別、浴室乾燥機、追焚機能、洗面所独立、洗面所、洗面台、温水洗浄便座、トイレ |
| キッチン |
カウンターキッチン、システムキッチン、3口以上コンロ、ガスコンロ可 |
| セキュリティー |
モニター付オートロック、オートロック、モニター付インターホン、防犯カメラ |
| 収納 |
ウォークインクローゼット、収納スペース、クローゼット、シューズボックス |
| 設備・サービス |
室内洗濯機置場、洗濯機置場、都市ガス給湯、給湯、フローリング、都市ガス、エアコン |
| TV・通信 |
インターネット対応、インターネット使用料無料、光ファイバー、CS、BS端子 |
| その他 |
宅配BOX、バルコニー、エレベーター |
| 契約期間 |
2年 |
現況 |
居住中 |
| 条件等 |
- |
入居可能時期 |
2026年4月中旬予定 |
| 更新料 |
新賃料 1ヶ月 |
物件番号 |
1121508422 |
| 情報公開日 |
2026年1月28日 |
次回更新予定日 |
2026年2月11日 |
| ケータイ用バーコード |
- スマートフォンでこの物件を見る
- スマートフォンからもこの物件をご覧になれます。
|
※「-」と表示されている項目については、情報提供会社にご確認ください。
| 周辺施設 |
目黒サレジオ幼稚園 |
| 距離 |
791m |
写真を見る |
| 周辺施設 |
目黒本町保育園 |
| 距離 |
272m |
写真を見る |
| 周辺施設 |
目黒区立月光原小学校 |
| 距離 |
319m |
写真を見る |
| 周辺施設 |
セブンイレブン 清水池店 |
| 距離 |
132m |
写真を見る |
| 周辺施設 |
ファミリーマート 目黒本町三丁目店 |
| 距離 |
497m |
写真を見る |
ここから簡単にお問い合わせをすることができます。
(SSLでの暗号化での送信を希望されるお客さまは
こちら
よりお問い合わせください)
お問い合わせを行う前に
「個人情報の取り扱いについて」を必ずお読みください。
「個人情報の取り扱いについて」に同意いただいた場合は「上記にご同意の上 確認画面へ進む」のボタンをクリックしてください。
個人情報の取り扱いについて
皆さまが送付された個人情報はアットホーム(株)のサーバを経由し、お問い合わせ先の不動産会社にメールまたはFAXにて転送されるためアットホーム(株)にも保管されます。アットホーム(株)で保管された個人情報の取り扱いについては、【こちら】をご覧ください。
また、本画面でご記入いただいた個人情報は、お問い合わせ先の不動産会社でも保管します。 お問い合わせ先の不動産会社が保管する個人情報の取り扱いについては、不動産会社に直接お問い合わせください。
東京都知事免許(2)第103922号 |
|---|
- 交通:
- 東急東横線/中目黒駅 徒歩2分
- 東京都目黒区上目黒2丁目6-9 稲垣ビル201
- TEL:
- 03-6712-2182
- 所属団体:
- (公社)東京都宅地建物取引業協会会員(公社)首都圏不動産公正取引協議会加盟
取引態様:仲介  - 00273767
|
- スマートフォンで
この不動産会社を見る

|
- 提携サイト等より掲載されている物件情報につきましては、不動産会社詳細情報にリンクされていないものがあります。
- 物件に関するお問合せは、物件詳細ページの「情報提供会社」に表示されている不動産会社へ直接お願いいたします。
- 間取図は、現況を優先させていただきます。
- 映像は物件の一部を撮影したものです。物件の契約にあたっての最終判断はご自身の判断に基づいて行ってください。
- 仲介手数料について

アットホームは物件情報の適正化に努めております。
内容に誤りがある場合にはこちらへご連絡ください。