神奈川県川崎市中原区新丸子町(武蔵小杉駅)の賃貸:物件詳細
交通 所在地 |
駅徒歩 |
賃料 管理費等 |
敷金/保証金 礼金 |
間取り 面積 |
物件種目 築年月 |
|
東急東横線/武蔵小杉
神奈川県川崎市中原区新丸子町
|
7分
|
8.47万円
7,300円
|
1ヶ月 / なし
1ヶ月
|
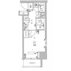
1K
20.09m²
|
賃貸マンション
2012年2月(築13年9ヶ月)
|
常時ゴミ出し可能、角部屋、最上階、2面採光、24時間換気システム、保証人不要
|
|
間取図
間取りです。
|
外観
外観です。
|
<
その他の画像
>
|
| 交通 | 東急東横線 武蔵小杉駅 徒歩7分 |
|---|
| その他の交通 | 東急東横線 新丸子駅 徒歩3分 JR南武線 向河原駅 徒歩16分 |
| 所在地 |
神奈川県川崎市中原区新丸子町
|
| 物件種目 |
賃貸マンション |
| 賃料 |
8.47万円 |
管理費等 |
7,300円 |
| 敷金 / 保証金 |
1ヶ月 / なし |
礼金 |
1ヶ月 |
| 敷引 |
- |
保証金償却 |
- |
| その他一時金 |
消火剤:5,500円、鍵交換代等:29,700円~ |
保険等 |
要 |
| 維持費等 |
24時間サポート:1,650円/月、保険料:1,000円/月 |
クレジットカード決済 |
初期費用可 |
| 間取り |
1K(洋6、K2) |
専有面積 |
20.09m² |
| 築年月 |
2012年2月(築13年9ヶ月)
|
階建 / 階 |
9階建 / 9階 |
| 建物構造 |
RC |
総戸数 |
- |
| 主要採光面 |
西 |
駐車場 |
- |
| バイク置き場 |
- |
駐輪場 |
- |
| 建物名・部屋番号 |
スカイコート武蔵小杉壱番館 |
ペット |
-
|
| アピールポイント |
初期費用の分割・クレジットカード決済可能です。お気軽にご相談下さい。 |
| リフォーム履歴 |
- |
| リノベーション履歴 |
- |
| 備考 |
賃貸保証等:加入要(初回保証料:総賃料50% 月額保証料:総賃料1.4%)
管理形態/管理員の勤務形態:-/-
単身者限定
契約金のお見積もりや室内写真のご希望など、ご質問・ご要望はお気軽にお問い合わせください。【初期費用の分割・クレジットカード決済可能です】
退去時精算:室内クリーニング費用借主負担、解約事務手数料13200円。
1年未満の短期解約時違約金として総賃料の1ヶ月。
契約金のお見積もりや室内写真のご希望など、ご質問・ご要望はお気軽にお問い合わせください。【初期費用の分割・クレジットカード決済可能です】
退去時精算:室内クリーニング費用借主負担、解約事務手数料13200円。
1年未満の短期解約時違約金として総賃料の1ヶ月。
|
| エネルギー消費性能 |
- |
| 断熱性能 |
- |
| 目安光熱費 |
- |
| バス・トイレ |
バス・トイレ別、浴室乾燥機、洗面台、シャワー、温水洗浄便座、トイレ |
| キッチン |
システムキッチン、2口コンロ、ガスコンロ可、グリル |
| セキュリティー |
モニター付オートロック、オートロック、モニター付インターホン、防犯カメラ |
| 収納 |
収納スペース、クローゼット、シューズボックス |
| 設備・サービス |
室内洗濯機置場、洗濯機置場、都市ガス給湯、給湯、フローリング、都市ガス、エアコン、冷房、照明器具 |
| TV・通信 |
インターネット対応、光ファイバー、ケーブルTV、CS、BS端子 |
| その他 |
宅配BOX、バルコニー、エレベーター |
| 契約期間 |
2年 |
現況 |
空家 |
| 条件等 |
- |
入居可能時期 |
2025年11月中旬予定 |
| 更新料 |
新賃料 1.5ヶ月 |
物件番号 |
1122175815 |
| 情報公開日 |
2025年9月28日 |
次回更新予定日 |
2025年11月9日 |
| ケータイ用バーコード |
- スマートフォンでこの物件を見る
- スマートフォンからもこの物件をご覧になれます。
|
※「-」と表示されている項目については、情報提供会社にご確認ください。
| 周辺施設 |
武蔵中原駅 |
| 距離 |
2003m |
写真を見る |
ここから簡単にお問い合わせをすることができます。
(SSLでの暗号化での送信を希望されるお客さまは
こちら
よりお問い合わせください)
お問い合わせを行う前に
「個人情報の取り扱いについて」を必ずお読みください。
「個人情報の取り扱いについて」に同意いただいた場合は「上記にご同意の上 確認画面へ進む」のボタンをクリックしてください。
個人情報の取り扱いについて
皆さまが送付された個人情報はアットホーム(株)のサーバを経由し、お問い合わせ先の不動産会社にメールまたはFAXにて転送されるためアットホーム(株)にも保管されます。アットホーム(株)で保管された個人情報の取り扱いについては、【こちら】をご覧ください。
また、本画面でご記入いただいた個人情報は、お問い合わせ先の不動産会社でも保管します。 お問い合わせ先の不動産会社が保管する個人情報の取り扱いについては、不動産会社に直接お問い合わせください。
東京都知事免許(1)第106608号 |
|---|
- 交通:
- JR京浜東北線/蒲田駅 徒歩1分
- 東京都大田区西蒲田8丁目1-7 グランタウンビル9階
- TEL:
- 03-5711-7311
- FAX:
- 03-5711-7312
- 所属団体:
- (公社)全日本不動産協会会員(公社)首都圏不動産公正取引協議会加盟
取引態様:仲介  - 00277527
|
- スマートフォンで
この不動産会社を見る

|
- 提携サイト等より掲載されている物件情報につきましては、不動産会社詳細情報にリンクされていないものがあります。
- 物件に関するお問合せは、物件詳細ページの「情報提供会社」に表示されている不動産会社へ直接お願いいたします。
- 間取図は、現況を優先させていただきます。
- 映像は物件の一部を撮影したものです。物件の契約にあたっての最終判断はご自身の判断に基づいて行ってください。
- 仲介手数料について

アットホームは物件情報の適正化に努めております。
内容に誤りがある場合にはこちらへご連絡ください。