埼玉県さいたま市南区大字太田窪(南浦和駅)の賃貸:物件詳細
交通 所在地 |
駅徒歩 |
賃料 管理費等 |
敷金/保証金 礼金 |
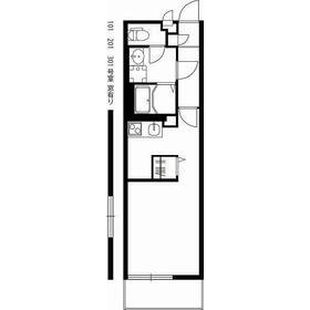
間取り 面積 |
物件種目 築年月 |
|
JR京浜東北線/南浦和
埼玉県さいたま市南区大字太田窪
|
15分
|
6.9万円
4,000円
|
なし / なし
1ヶ月
|
1K
26.08m²
|
賃貸マンション
2012年4月(築13年11ヶ月)
|
最上階、24時間セキュリティー、IT重説対応物件
|
|
間取図
|
外観
|
<
その他の画像
>
|
| 交通 | JR京浜東北線 南浦和駅 徒歩15分 |
| 所在地 |
埼玉県さいたま市南区大字太田窪
|
| 物件種目 |
賃貸マンション |
| 賃料 |
6.9万円 |
管理費等 |
4,000円 |
| 敷金 / 保証金 |
なし / なし |
礼金 |
1ヶ月 |
| 敷引 |
- |
保証金償却 |
- |
| その他一時金 |
消毒費:16,500円、リブリクラブ入会費:7,700円、室内清掃費用:41,800円、鍵交換代等:24,200円~ |
保険等 |
要 19,000円 |
| 維持費等 |
- |
| 間取り |
1K |
専有面積 |
26.08m² |
| 築年月 |
2012年4月(築13年11ヶ月)
|
階建 / 階 |
3階建 / 3階 |
| 建物構造 |
鉄骨造 |
総戸数 |
- |
| 主要採光面 |
南西 |
駐車場 |
無 |
| バイク置き場 |
有 2,200円/月 |
駐輪場 |
有 |
| 建物名・部屋番号 |
リブリ・アイレクス 304 |
ペット |
-
|
| アピールポイント |
留守中に注文した商品が届くので、配送時間を気にせず注文ができる宅配ボックスが共用部に付いています。室内設備は洗面化粧台・浴室乾燥機など大変充実しております。顔が見える安心のTVインターホン付きです。収納はクロゼット・シューズボックスなど豊富なので、衣類や履き物の整理がしやすく便利です。新しい日々を送るにふさわしい、きれいな室内です。インターネットの使用が可能な物件です。こちらのマンションの家賃は6.9万です。快適な生活を送ることのできる、エアコン付きのマンションです。照明付きの物件です。2口コンロが付いているので複数の料理を作る時でも同時にサッと料理出来ます。こだわり条件であるフローリングの洋室があるマンションです。 |
| リフォーム履歴 |
- |
| リノベーション履歴 |
- |
| 備考 |
賃貸保証等:加入要(保証人代行会社名:株式会社スマートクレジット(プランP)基本料:月額支払合計の100% 、月額料:月額支払合計の1.1%、口振手数料:330円\\/月)
管理形態/管理員の勤務形態:-/-
IT重説対応物件
さいたま市エリアや京浜東北線、埼京線沿線でお部屋探しをするなら、当社にお任せください。
室内設備は洗面化粧台・浴室乾燥機など豊富に揃っており、過ごしやすいお部屋になっております。収納はシューズボックス・クロゼットなど豊富なので、衣類や履き物の整理がしやすく便利です。宅配業者に家まで上がってきて欲しくないと思っている人でも、宅配ボックスがあるので防犯上の安全が確保できます。TVインターホン付きなので、部屋から訪問者の顔を確認できます。こちらのお部屋で新しい生活を始めてみませんか。こだわり条件であるフローリングの洋室があるマンションです。お手入れや収納がしやすいシステムキッチン付きです。このマンションはバルコニー付きです。新たな回線工事が必要ない、経済的なネット回線工事済み物件です。駐輪場付きのマンションです。家賃10万円以下のマンションをお探しのお客様におすすめの物件です。
|
| エネルギー消費性能 |
- |
| 断熱性能 |
- |
| 目安光熱費 |
- |
| バス・トイレ |
バス・トイレ別、浴室乾燥機、洗面所独立、洗面所、洗面台、シャワー、温水洗浄便座、トイレ |
| キッチン |
システムキッチン、2口コンロ |
| セキュリティー |
モニター付インターホン |
| 収納 |
収納スペース、クローゼット、シューズボックス |
| 設備・サービス |
室内洗濯機置場、洗濯機置場、プロパンガス給湯、給湯、フローリング、プロパンガス、エアコン、冷房、照明器具 |
| TV・通信 |
インターネット対応 |
| その他 |
宅配BOX、バイク置き場、バルコニー、駐輪場 |
| 契約期間 |
2年 |
現況 |
居住中 |
| 条件等 |
定期借家 |
入居可能時期 |
2026年2月下旬予定 |
| 仲介手数料 |
1.1ヶ月 |
|
|
| 更新料 |
- |
物件番号 |
1122386622 |
| 情報公開日 |
2026年1月29日 |
次回更新予定日 |
2026年2月12日 |
| ケータイ用バーコード |
- スマートフォンでこの物件を見る
- スマートフォンからもこの物件をご覧になれます。
|
※「-」と表示されている項目については、情報提供会社にご確認ください。
| 周辺施設 |
コモディイイダ 南浦和東口店 |
| 距離 |
953m |
写真を見る |
| 周辺施設 |
ビッグ・エーさいたま大谷口店 |
| 距離 |
1125m |
写真を見る |
| 周辺施設 |
ファミリーマート さいたま太田窪店 |
| 距離 |
50m |
写真を見る |
| 周辺施設 |
セブン-イレブン さいたま大谷場店 |
| 距離 |
352m |
写真を見る |
| 周辺施設 |
セブン-イレブン さいたま太田窪店 |
| 距離 |
491m |
写真を見る |
| 周辺施設 |
まるひろ南浦和店 |
| 距離 |
1608m |
写真を見る |
| 周辺施設 |
まるひろ 南浦和店 |
| 距離 |
1667m |
写真を見る |
| 周辺施設 |
サミットストア 太田窪店 |
| 距離 |
1312m |
写真を見る |
ここから簡単にお問い合わせをすることができます。
(SSLでの暗号化での送信を希望されるお客さまは
こちら
よりお問い合わせください)
お問い合わせを行う前に
「個人情報の取り扱いについて」を必ずお読みください。
「個人情報の取り扱いについて」に同意いただいた場合は「上記にご同意の上 確認画面へ進む」のボタンをクリックしてください。
個人情報の取り扱いについて
皆さまが送付された個人情報はアットホーム(株)のサーバを経由し、お問い合わせ先の不動産会社にメールまたはFAXにて転送されるためアットホーム(株)にも保管されます。アットホーム(株)で保管された個人情報の取り扱いについては、【こちら】をご覧ください。
また、本画面でご記入いただいた個人情報は、お問い合わせ先の不動産会社でも保管します。 お問い合わせ先の不動産会社が保管する個人情報の取り扱いについては、不動産会社に直接お問い合わせください。
国土交通大臣免許(4)第7400号 |
|---|
- 交通:
- JR京浜東北線/南浦和駅 徒歩1分
- 埼玉県さいたま市南区南浦和2丁目38-5 太陽ビル
- TEL:
- 048-762-9000
- FAX:
- 048-762-9001
- 所属団体:
- (公社)全日本不動産協会会員(公社)首都圏不動産公正取引協議会加盟
取引態様:仲介  - 00281061
|
- スマートフォンで
この不動産会社を見る

|
- 提携サイト等より掲載されている物件情報につきましては、不動産会社詳細情報にリンクされていないものがあります。
- 物件に関するお問合せは、物件詳細ページの「情報提供会社」に表示されている不動産会社へ直接お願いいたします。
- 間取図は、現況を優先させていただきます。
- 映像は物件の一部を撮影したものです。物件の契約にあたっての最終判断はご自身の判断に基づいて行ってください。
- 仲介手数料について

アットホームは物件情報の適正化に努めております。
内容に誤りがある場合にはこちらへご連絡ください。