東京都練馬区石神井町3丁目(石神井公園駅)の賃貸:物件詳細
交通 所在地 |
駅徒歩 |
賃料 管理費等 |
敷金/保証金 礼金 |
間取り 面積 |
物件種目 築年月 |
|
西武池袋線/石神井公園
東京都練馬区石神井町3丁目
|
1分
|
18.7万円
10,000円
|
1ヶ月 / なし
なし
|
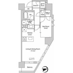
1LDK
45.44m²
|
賃貸マンション
2017年1月(築9年4ヶ月)
|
角部屋、IT重説対応物件
|
|
間取図
|
外観
|
その他の画像
|
| 交通 | 西武池袋線 石神井公園駅 徒歩1分 |
|---|
| その他の交通 | 西武池袋線 練馬高野台駅 徒歩17分 西武池袋線 大泉学園駅 徒歩26分 |
| 所在地 |
東京都練馬区石神井町3丁目
|
| 物件種目 |
賃貸マンション |
| 賃料 |
18.7万円 |
管理費等 |
10,000円 |
| 敷金 / 保証金 |
1ヶ月 / なし |
礼金 |
なし |
| 敷引 |
- |
保証金償却 |
- |
| その他一時金 |
なし、鍵交換代等:16,500円~ |
保険等 |
要 2年 39,240円 |
| 維持費等 |
- |
クレジットカード決済 |
初期費用可 |
| 間取り |
1LDK(LDK14、洋4.6) |
専有面積 |
45.44m² |
| 築年月 |
2017年1月(築9年4ヶ月)
|
階建 / 階 |
14階建 / 6階 |
| 建物構造 |
SRC |
総戸数 |
- |
| 主要採光面 |
東 |
駐車場 |
空無 |
| バイク置き場 |
有 5,500円/月 |
駐輪場 |
有 |
| 建物名・部屋番号 |
エミリブ石神井公園 614 |
ペット |
-
|
| リフォーム履歴 |
- |
| リノベーション履歴 |
- |
| 備考 |
賃貸保証等:加入要(初回保証料40% 1年毎10,000円(賃料15万円以上は14,000円) 利用料も保証料算出賃料に含まれます。)
管理形態/管理員の勤務形態:-/-
IT重説対応物件
買い物に便利なショッピングセンター「ピアレス石神井公園」まで267mです。
定期借家3年契約(再契約料:新賃料の1か月)。清掃代39600円(20平米以上は+1375/平米加算)。エアコン洗浄代16500円/台。
|
| エネルギー消費性能 |
- |
| 断熱性能 |
- |
| 目安光熱費 |
- |
| バス・トイレ |
バス・トイレ別、浴室乾燥機、洗面所独立、洗面所、洗面台、温水洗浄便座、トイレ |
| キッチン |
カウンターキッチン、システムキッチン、ガスコンロ可 |
| セキュリティー |
モニター付オートロック、オートロック、モニター付インターホン、防犯カメラ |
| 収納 |
ウォークインクローゼット、収納スペース、クローゼット、シューズボックス |
| 設備・サービス |
洗濯機置場、都市ガス給湯、給湯、フローリング、都市ガス、エアコン |
| TV・通信 |
インターネット対応、インターネット使用料無料、ケーブルTV、CS、BS端子 |
| その他 |
宅配BOX、バイク置き場、バルコニー、駐輪場、エレベーター |
| 契約期間 |
3年 |
現況 |
居住中 |
| 条件等 |
定期借家 |
入居可能時期 |
2026年4月下旬予定 |
| 仲介手数料 |
1.1ヶ月 |
|
|
| 更新料 |
- |
物件番号 |
1122550125 |
| 情報公開日 |
2026年4月4日 |
次回更新予定日 |
2026年5月7日 |
| ケータイ用バーコード |
- スマートフォンでこの物件を見る
- スマートフォンからもこの物件をご覧になれます。
|
※「-」と表示されている項目については、情報提供会社にご確認ください。
| 周辺施設 |
順天堂練馬病院 |
| 距離 |
1193m |
写真を見る |
ここから簡単にお問い合わせをすることができます。
(SSLでの暗号化での送信を希望されるお客さまは
こちら
よりお問い合わせください)
お問い合わせを行う前に
「個人情報の取り扱いについて」を必ずお読みください。
「個人情報の取り扱いについて」に同意いただいた場合は「上記にご同意の上 確認画面へ進む」のボタンをクリックしてください。
個人情報の取り扱いについて
皆さまが送付された個人情報はアットホーム(株)のサーバを経由し、お問い合わせ先の不動産会社にメールまたはFAXにて転送されるためアットホーム(株)にも保管されます。アットホーム(株)で保管された個人情報の取り扱いについては、【こちら】をご覧ください。
また、本画面でご記入いただいた個人情報は、お問い合わせ先の不動産会社でも保管します。 お問い合わせ先の不動産会社が保管する個人情報の取り扱いについては、不動産会社に直接お問い合わせください。
国土交通大臣免許(4)第7400号 |
|---|
- 交通:
- 都営三田線/志村坂上駅 徒歩1分
- 東京都板橋区志村1丁目14-11 1F
- TEL:
- 03-5915-2525
- FAX:
- 03-5915-2555
- 所属団体:
- (公社)全日本不動産協会会員(公社)首都圏不動産公正取引協議会加盟
取引態様:仲介  - 00277087
|
- スマートフォンで
この不動産会社を見る

|
- 提携サイト等より掲載されている物件情報につきましては、不動産会社詳細情報にリンクされていないものがあります。
- 物件に関するお問合せは、物件詳細ページの「情報提供会社」に表示されている不動産会社へ直接お願いいたします。
- 間取図は、現況を優先させていただきます。
- 映像は物件の一部を撮影したものです。物件の契約にあたっての最終判断はご自身の判断に基づいて行ってください。
- 仲介手数料について

アットホームは物件情報の適正化に努めております。
内容に誤りがある場合にはこちらへご連絡ください。