大阪府大阪市東淀川区菅原1丁目(淡路駅)の賃貸:物件詳細
交通 所在地 |
駅徒歩 |
賃料 管理費等 |
敷金/保証金 礼金 |
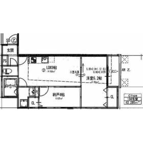
間取り 面積 |
物件種目 築年月 |
|
阪急千里線/淡路
大阪府大阪市東淀川区菅原1丁目
|
14分
|
8.6万円
7,000円
|
なし / なし
10万円
|
1SLDK
43.27m²
|
賃貸アパート
2023年8月(築2年9ヶ月)
|
角部屋、二人入居可、保証人不要
|
|
間取図
|
外観
|
<
その他の画像
>
|
| 交通 | 阪急千里線 淡路駅 徒歩14分 |
|---|
| その他の交通 | 阪急千里線 下新庄駅 徒歩19分 JRおおさか東線 城北公園通駅 徒歩37分 |
| 所在地 |
大阪府大阪市東淀川区菅原1丁目
|
| 物件種目 |
賃貸アパート |
| 賃料 |
8.6万円 |
管理費等 |
7,000円 |
| 敷金 / 保証金 |
なし / なし |
礼金 |
10万円 |
| 敷引 |
- |
保証金償却 |
- |
| その他一時金 |
契約事務手数料 契約時:22,000円、エアコン洗浄代 退去時:16,500円、室内清掃費用 退去時:38,500円、カギ交換費用 退去時:33,000円 |
保険等 |
要 |
| 維持費等 |
生活安心サポート費用:550円/月、保険:2,490円/月 |
クレジットカード決済 |
初期費用可 |
| 間取り |
1SLDK |
専有面積 |
43.27m² |
| 築年月 |
2023年8月(築2年9ヶ月)
|
階建 / 階 |
3階建 / 1階 |
| 建物構造 |
木造 |
総戸数 |
12戸 |
| 主要採光面 |
東 |
駐車場 |
空無 |
| バイク置き場 |
有 3,300円/月 |
駐輪場 |
有 330円/月 |
| 建物名・部屋番号 |
菅原1丁目ハイツ |
ペット |
-
|
| アピールポイント |
システムキッチンなのでお料理の際に便利です。TVモニターフォンついております。 |
| リフォーム履歴 |
- |
| リノベーション履歴 |
- |
| 備考 |
賃貸保証等:加入要(初回保証料:総賃料の100% 月額2,490円(引落し手数料、火災保険、24時間緊急駆けつけサポート帯) 年間保証料:10,000円)
管理形態/管理員の勤務形態:-/-
システムキッチンなのでお料理の際に便利です。TVモニターフォンついております。
|
| エネルギー消費性能 |
- |
| 断熱性能 |
- |
| 目安光熱費 |
- |
| バス・トイレ |
バス・トイレ別、浴室乾燥機、追焚機能、シャワー付洗面化粧台、洗面所独立、温水洗浄便座、トイレ |
| キッチン |
システムキッチン、IHクッキングヒーター、2口コンロ |
| セキュリティー |
オートロック、モニター付インターホン、ディンプルキー、防犯カメラ |
| 収納 |
収納スペース、クローゼット、シューズボックス |
| 設備・サービス |
室内洗濯機置場、都市ガス給湯、給湯、フローリング、都市ガス、エアコン |
| TV・通信 |
インターネット対応、インターネット使用料無料、ケーブルTV |
| その他 |
バイク置き場、バルコニー、駐輪場 |
| 契約期間 |
2年 |
現況 |
居住中 |
| 条件等 |
- |
入居可能時期 |
2026年5月下旬予定 |
| 仲介手数料 |
0.55ヶ月 |
|
|
| 更新料 |
44,000円 |
物件番号 |
1122670323 |
| 情報公開日 |
2026年3月29日 |
次回更新予定日 |
2026年4月12日 |
| ケータイ用バーコード |
- スマートフォンでこの物件を見る
- スマートフォンからもこの物件をご覧になれます。
|
※「-」と表示されている項目については、情報提供会社にご確認ください。
| 周辺施設 |
ソフトバンク淡路駅前 |
| 距離 |
1400m |
写真を見る |
| 周辺施設 |
天下一品淡路店 |
| 距離 |
650m |
写真を見る |
| 周辺施設 |
セブンイレブン東淡路1丁目店 |
| 距離 |
400m |
写真を見る |
| 周辺施設 |
ライフ東淡路店 |
| 距離 |
550m |
写真を見る |
| 周辺施設 |
大阪市東淀川区役所 |
| 距離 |
640m |
写真を見る |
| 周辺施設 |
医療法人医誠会医誠会病院 |
| 距離 |
480m |
写真を見る |
| 周辺施設 |
JR淡路駅(JR西日本 おおさか東線) |
| 距離 |
960m |
写真を見る |
ここから簡単にお問い合わせをすることができます。
(SSLでの暗号化での送信を希望されるお客さまは
こちら
よりお問い合わせください)
お問い合わせを行う前に
「個人情報の取り扱いについて」を必ずお読みください。
「個人情報の取り扱いについて」に同意いただいた場合は「上記にご同意の上 確認画面へ進む」のボタンをクリックしてください。
個人情報の取り扱いについて
皆さまが送付された個人情報はアットホーム(株)のサーバを経由し、お問い合わせ先の不動産会社にメールまたはFAXにて転送されるためアットホーム(株)にも保管されます。アットホーム(株)で保管された個人情報の取り扱いについては、【こちら】をご覧ください。
また、本画面でご記入いただいた個人情報は、お問い合わせ先の不動産会社でも保管します。 お問い合わせ先の不動産会社が保管する個人情報の取り扱いについては、不動産会社に直接お問い合わせください。
国土交通大臣免許(7)第5206号 |
|---|
- 交通:
- JR東海道本線/吹田駅 徒歩3分
- 大阪府吹田市朝日町14-9 サンセール吹田1F
- TEL:
- 0120-958-133
- FAX:
- 06-6317-0007
- 所属団体:
- (一社)大阪府宅地建物取引業協会会員(公社)近畿地区不動産公正取引協議会加盟
取引態様:仲介  - 50111703
|
- スマートフォンで
この不動産会社を見る

|
- 提携サイト等より掲載されている物件情報につきましては、不動産会社詳細情報にリンクされていないものがあります。
- 物件に関するお問合せは、物件詳細ページの「情報提供会社」に表示されている不動産会社へ直接お願いいたします。
- 間取図は、現況を優先させていただきます。
- 映像は物件の一部を撮影したものです。物件の契約にあたっての最終判断はご自身の判断に基づいて行ってください。
- 仲介手数料について

アットホームは物件情報の適正化に努めております。
内容に誤りがある場合にはこちらへご連絡ください。