神奈川県横浜市中区石川町5丁目(石川町駅)の賃貸:物件詳細
交通 所在地 |
駅徒歩 |
賃料 管理費等 |
敷金/保証金 礼金 |
間取り 面積 |
物件種目 築年月 |
|
JR京浜東北線/石川町
神奈川県横浜市中区石川町5丁目
|
7分
|
22.9万円
30,000円
|
なし / なし
なし
|
3LDK
92.82m²
|
賃貸一戸建て
2022年3月(築4年)
|
ペット相談、楽器相談、分譲タイプ、角部屋、最上階、南向き、2面採光、閑静な住宅街、外観タイル張り
|
|
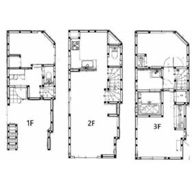
間取図
|
外観
|
<
その他の画像
>
|
| 交通 | JR京浜東北線 石川町駅 徒歩7分 |
|---|
| その他の交通 | ブルーライン 伊勢佐木長者町駅 徒歩10分 JR根岸線 関内駅 徒歩15分 |
| 所在地 |
神奈川県横浜市中区石川町5丁目
|
| 物件種目 |
賃貸一戸建て |
| 賃料 |
22.9万円 |
管理費等 |
30,000円 |
| 敷金 / 保証金 |
なし / なし |
礼金 |
なし |
| 敷引 |
- |
保証金償却 |
- |
| その他一時金 |
事務手数料:5,500円、除菌抗菌代:27,500円 |
保険等 |
要 2年 25,000円 |
| 維持費等 |
24サポート:1,100円/月 |
| 間取り |
3LDK(洋6.6、洋5.1、洋5、LDK16) |
専有面積 |
92.82m² |
| 築年月 |
2022年3月(築4年)
|
階建 / 階 |
3階建 |
| 建物構造 |
木造 |
総戸数 |
- |
| 主要採光面 |
南 |
駐車場 |
有 無料 |
| バイク置き場 |
有 無料 |
駐輪場 |
有 無料 |
| 建物名・部屋番号 |
|
ペット |
相談 |
| アピールポイント |
ご相談いただければ楽器演奏の可能な物件を紹介します。令和4年築のコチラの物件は、落ち着きのある室内が魅力的です。魅力的な駅近の物件で、駅まで徒歩7分です。閑静な住宅地にある物件です。駐車スペースももちろんご用意しております。モニター越しに来訪者を確認し、インターホンを通じて室内から会話することができます。室内設備は浴室乾燥機・洗面所独立・食器洗乾燥機などが揃っているので、快適に過ごしやすいお部屋になります。収納はクロゼット・シューズボックスなど豊富なので、衣類や履き物の整理がしやすく便利です。こちらは家賃22.9万円の物件です。こだわりポイント満載の石川町戸建て。 |
| リフォーム履歴 |
- |
| リノベーション履歴 |
- |
| 備考 |
賃貸保証等:加入要(いえらぶ安心保証 いえらぶ安心保証、初回保証料:60%、更新手数料:16500円(税込)/年、引落送金手数料:550円(税込)/月)
管理形態/管理員の勤務形態:-/-
非喫煙者限定
便利なスーパー「まいばすけっと 横浜長者町2丁目店」まで352mです。こちらは家賃22.9万円の物件です。新生活を失敗せず、スタートさせたいならこちらの「石川町戸建て」はいかがでしょうか。ここに戻ってくると、心と体が癒される。そんな環境があれば日々の生活も充実してくると思いませんか。これから一緒に素敵な住まいを探しましょう。
光熱費の節約にもなる、あたたかい床下暖房機能が備わった家です。駐輪場付きの物件です。楽器が使える楽しいお住まい、楽器の相談にも応じます。閑静な住宅地にある一戸建てです。入浴時間がバラバラな家族には、追い焚き機能付のお風呂が役立ちます。玄関先まで覗き穴を覗きに行かなくてもインターホン越しに誰が来たのかを確認できるので防犯対策につながります。室内設備は浴室乾燥機・洗面所独立・食器洗乾燥機などが揃っており、とても充実しています。収納はシューズボックス・クロゼットなど豊富なので、広々と空間を利用することも可能です。こちらは賃料22.9万円の一戸建てです。ぜひ一度見ていただきたい、「石川町戸建て」です。
|
| エネルギー消費性能 |
- |
| 断熱性能 |
- |
| 目安光熱費 |
- |
| バス・トイレ |
バス・トイレ別、浴室乾燥機、追焚機能、洗面所独立、洗面所、洗面台、シャワー、温水洗浄便座、トイレ2ヶ所、トイレ |
| キッチン |
システムキッチン、食器洗浄乾燥機、2口コンロ、ガスコンロ可、グリル |
| セキュリティー |
モニター付インターホン |
| 収納 |
収納スペース、クローゼット、シューズボックス |
| 設備・サービス |
床暖房、室内洗濯機置場、洗濯機置場、全居室フローリング、フローリング、都市ガス、エアコン、暖房 |
| TV・通信 |
- |
| その他 |
バイク置き場、バルコニー、駐輪場 |
| 契約期間 |
2年 |
現況 |
空家 |
| 条件等 |
- |
入居可能時期 |
即時 |
| 更新料 |
新賃料 1.5ヶ月 |
物件番号 |
1122726115 |
| 情報公開日 |
2025年9月29日 |
次回更新予定日 |
2026年2月14日 |
| ケータイ用バーコード |
- スマートフォンでこの物件を見る
- スマートフォンからもこの物件をご覧になれます。
|
※「-」と表示されている項目については、情報提供会社にご確認ください。
| 周辺施設 |
横浜市立石川小学校 |
| 距離 |
373m |
写真を見る |
| 周辺施設 |
私立横浜共立学園高校 |
| 距離 |
350m |
写真を見る |
| 周辺施設 |
食品館あおば 元町店 |
| 距離 |
651m |
写真を見る |
ここから簡単にお問い合わせをすることができます。
(SSLでの暗号化での送信を希望されるお客さまは
こちら
よりお問い合わせください)
お問い合わせを行う前に
「個人情報の取り扱いについて」を必ずお読みください。
「個人情報の取り扱いについて」に同意いただいた場合は「上記にご同意の上 確認画面へ進む」のボタンをクリックしてください。
個人情報の取り扱いについて
皆さまが送付された個人情報はアットホーム(株)のサーバを経由し、お問い合わせ先の不動産会社にメールまたはFAXにて転送されるためアットホーム(株)にも保管されます。アットホーム(株)で保管された個人情報の取り扱いについては、【こちら】をご覧ください。
また、本画面でご記入いただいた個人情報は、お問い合わせ先の不動産会社でも保管します。 お問い合わせ先の不動産会社が保管する個人情報の取り扱いについては、不動産会社に直接お問い合わせください。
神奈川県知事免許(5)第24544号 |
|---|
- 交通:
- JR京浜東北線/石川町駅 【バス】18分 本牧元町 停歩1分
- 神奈川県横浜市中区本牧元町33-1 松喜ビル1F
- TEL:
- 045-622-9736
- FAX:
- 045-622-9827
- 所属団体:
- (公社)神奈川県宅地建物取引業協会会員(公社)首都圏不動産公正取引協議会加盟
取引態様:仲介  - 00611865
|
- スマートフォンで
この不動産会社を見る

|
- 提携サイト等より掲載されている物件情報につきましては、不動産会社詳細情報にリンクされていないものがあります。
- 物件に関するお問合せは、物件詳細ページの「情報提供会社」に表示されている不動産会社へ直接お願いいたします。
- 間取図は、現況を優先させていただきます。
- 映像は物件の一部を撮影したものです。物件の契約にあたっての最終判断はご自身の判断に基づいて行ってください。
- 仲介手数料について

アットホームは物件情報の適正化に努めております。
内容に誤りがある場合にはこちらへご連絡ください。