東京都品川区西中延2丁目(旗の台駅)の賃貸:物件詳細
交通 所在地 |
駅徒歩 |
賃料 管理費等 |
敷金/保証金 礼金 |
間取り 面積 |
物件種目 築年月 |
|
東急大井町線/旗の台
東京都品川区西中延2丁目
|
5分
|
10万円
8,000円
|
1ヶ月 / なし
1ヶ月
|
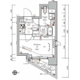
1K
20.56m²
|
賃貸マンション
2019年8月(築6年5ヶ月)
|
角部屋、24時間換気システム、IT重説対応物件
|
|
間取図
AXAS旗の台
|
外観
AXAS旗の台
|
<
その他の画像
>
|
| 交通 | 東急大井町線 旗の台駅 徒歩5分 |
|---|
| その他の交通 | 東急池上線 荏原中延駅 徒歩7分 東急大井町線 荏原町駅 徒歩10分 |
| 所在地 |
東京都品川区西中延2丁目
|
| 物件種目 |
賃貸マンション |
| 賃料 |
10万円 |
管理費等 |
8,000円 |
| 敷金 / 保証金 |
1ヶ月 / なし |
礼金 |
1ヶ月 |
| 敷引 |
- |
保証金償却 |
- |
| その他一時金 |
なし、鍵交換代等:28,600円~ |
保険等 |
要 15,000円 |
| 維持費等 |
- |
クレジットカード決済 |
初期費用可 |
| 間取り |
1K(洋6) |
専有面積 |
20.56m² |
| 築年月 |
2019年8月(築6年5ヶ月)
|
階建 / 階 |
11階建 / 5階 |
| 建物構造 |
RC |
総戸数 |
- |
| 主要採光面 |
東 |
駐車場 |
- |
| バイク置き場 |
無 |
駐輪場 |
無 |
| 建物名・部屋番号 |
AXAS旗の台 504 |
ペット |
-
|
| アピールポイント |
ホームセンター「コーナン 品川旗の台店」まで、徒歩4分。こちらの物件にはエレベーターが付いています。おかずや汁物など何品も作りたい人におすすめな2口コンロを備え付けております。駅まで5分と、駅近でアクセスも良好な物件です。こちらのマンションの家賃は9.8万です。令和7年8月入居可能予定です。そこから新たな生活が始まります。共用部には宅配ボックスが備え付けられているため、非対面で荷物を受け取れます。収納はクロゼット・シューズボックスなど豊富なので、広々と空間を利用することも可能です。セキュリティ面は、TVインターホン・オートロックなどを備え付けているので安心して暮らせます。室内設備は浴室乾燥機・洗面所独立などが揃っているので、快適に過ごしやすいお部屋になります。「AXAS旗の台」の物件情報をお探しならお気軽にお問い合わせ下さい。 |
| リフォーム履歴 |
- |
| リノベーション履歴 |
- |
| 備考 |
賃貸保証等:加入要(ご相談などございましたらお気軽にご質問くださいませ。 詳細は担当者までお問い合わせをお願いいたします。)
管理形態/管理員の勤務形態:-/-
IT重説対応物件
【AXAS旗の台】 来店不要!!内見~契約までオンラインで完結!★Vポイントキャンペーン★三都市アース旗の台店で賃貸物件のご契約の方にVポイントをプレゼント!最大で4000ptが貰えるチャンス★☆★Googleマップ口コミ地域評価1番!★地域密着の不動産屋★ 東京全域はもちろん網羅しておりますが、特に品川区、目黒区、大田区の賃貸物件不動産情報は【三都市アース旗の台店】へお任せ下さい★ 地域や物件に詳しいベテランスタッフでご対応しますので、安心してお部屋探しをお任せください。 おすすめ 不動産屋 旗の台 賃貸で日々頑張っています★★三都市アース旗の台店は、東急大井町線「旗の台駅」徒歩1分 東急池上線「旗の台駅」徒歩5秒 昭和大学・昭和大学病院方面 東口通り商店街にございます。 各種ポータルサイトに掲載していない非公開物件も多数お取り扱いがございますので、お部屋探しご条件をお聞かせ下さい。 全力でお客様のお部屋探しをサポートさせて頂きます。 LINEでスムーズにお部屋探しのご対応も可能です。 初期費用はクレジットカードでの分割払いもお支払い可能です。 どんなことでもお気軽にご相談下さい!
|
| エネルギー消費性能 |
- |
| 断熱性能 |
- |
| 目安光熱費 |
- |
| バス・トイレ |
バス・トイレ別、浴室乾燥機、洗面所独立、洗面所、洗面台、シャワー、温水洗浄便座、トイレ |
| キッチン |
システムキッチン、独立型キッチン、2口コンロ、ガスコンロ可 |
| セキュリティー |
モニター付オートロック、オートロック、モニター付インターホン、ディンプルキー |
| 収納 |
収納スペース、クローゼット、シューズボックス |
| 設備・サービス |
床暖房、室内洗濯機置場、洗濯機置場、都市ガス給湯、給湯、全居室フローリング、フローリング、都市ガス、エアコン、暖房、冷房 |
| TV・通信 |
- |
| その他 |
宅配BOX、バルコニー、エレベーター |
| 契約期間 |
2年 |
現況 |
居住中 |
| 条件等 |
- |
入居可能時期 |
相談 |
| 更新料 |
- |
物件番号 |
1122854812 |
| 情報公開日 |
2025年12月28日 |
次回更新予定日 |
2026年1月11日 |
| ケータイ用バーコード |
- スマートフォンでこの物件を見る
- スマートフォンからもこの物件をご覧になれます。
|
※「-」と表示されている項目については、情報提供会社にご確認ください。
| 周辺施設 |
木曽路旗の台店 |
| 距離 |
76m |
写真を見る |
| 周辺施設 |
ポポラマーマ 旗の台店 |
| 距離 |
313m |
写真を見る |
| 周辺施設 |
日高屋旗の台店 |
| 距離 |
358m |
写真を見る |
| 周辺施設 |
サイゼリヤ旗の台店 |
| 距離 |
40m |
写真を見る |
| 周辺施設 |
松屋 旗の台店 |
| 距離 |
358m |
写真を見る |
| 周辺施設 |
ドトールコーヒーショップ 旗の台中原街道店 |
| 距離 |
250m |
写真を見る |
| 周辺施設 |
モスバーガー旗の台店 |
| 距離 |
254m |
写真を見る |
| 周辺施設 |
ケンタッキーフライドチキン旗の台店 |
| 距離 |
470m |
写真を見る |
ここから簡単にお問い合わせをすることができます。
(SSLでの暗号化での送信を希望されるお客さまは
こちら
よりお問い合わせください)
お問い合わせを行う前に
「個人情報の取り扱いについて」を必ずお読みください。
「個人情報の取り扱いについて」に同意いただいた場合は「上記にご同意の上 確認画面へ進む」のボタンをクリックしてください。
個人情報の取り扱いについて
皆さまが送付された個人情報はアットホーム(株)のサーバを経由し、お問い合わせ先の不動産会社にメールまたはFAXにて転送されるためアットホーム(株)にも保管されます。アットホーム(株)で保管された個人情報の取り扱いについては、【こちら】をご覧ください。
また、本画面でご記入いただいた個人情報は、お問い合わせ先の不動産会社でも保管します。 お問い合わせ先の不動産会社が保管する個人情報の取り扱いについては、不動産会社に直接お問い合わせください。
東京都知事免許(4)第88296号 |
|---|
- 交通:
- 東急池上線/旗の台駅 徒歩1分
- 東京都品川区旗の台2丁目13-16 2階
- TEL:
- 03-3782-3100
- FAX:
- 03-3782-3099
- 所属団体:
- (公社)全日本不動産協会会員(公社)首都圏不動産公正取引協議会加盟
取引態様:仲介  - 00265433
|
- スマートフォンで
この不動産会社を見る

|
- 提携サイト等より掲載されている物件情報につきましては、不動産会社詳細情報にリンクされていないものがあります。
- 物件に関するお問合せは、物件詳細ページの「情報提供会社」に表示されている不動産会社へ直接お願いいたします。
- 間取図は、現況を優先させていただきます。
- 映像は物件の一部を撮影したものです。物件の契約にあたっての最終判断はご自身の判断に基づいて行ってください。
- 仲介手数料について

アットホームは物件情報の適正化に努めております。
内容に誤りがある場合にはこちらへご連絡ください。