神奈川県横浜市南区榎町1丁目(蒔田駅)の賃貸:物件詳細
交通 所在地 |
駅徒歩 |
賃料 管理費等 |
敷金/保証金 礼金 |
間取り 面積 |
物件種目 築年月 |
|
ブルーライン/蒔田
神奈川県横浜市南区榎町1丁目
|
7分
|
9.8万円
10,000円
|
なし / なし
1ヶ月
|
1LDK
42.46m²
|
賃貸マンション
2008年3月(築17年9ヶ月)
|
ペット相談、常時ゴミ出し可能、南向き、二人入居可、24時間セキュリティー、24時間換気システム、IT重説対応物件、保証人不要
|
|
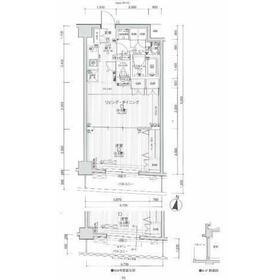
間取図
|
その他
|
その他の画像
|
| 交通 | ブルーライン 蒔田駅 徒歩7分 |
|---|
| その他の交通 | 京急本線 南太田駅 徒歩11分 ブルーライン 吉野町駅 徒歩9分 |
| 所在地 |
神奈川県横浜市南区榎町1丁目
|
| 物件種目 |
賃貸マンション |
| 賃料 |
9.8万円 |
管理費等 |
10,000円 |
| 敷金 / 保証金 |
なし / なし |
礼金 |
1ヶ月 |
| 敷引 |
- |
保証金償却 |
- |
| その他一時金 |
消毒代:22,000円、鍵交換代等:38,500円~ |
保険等 |
不要 |
| 維持費等 |
- |
クレジットカード決済 |
初期費用可 |
| 間取り |
1LDK(洋6.5、LDK10) |
専有面積 |
42.46m² |
| 築年月 |
2008年3月(築17年9ヶ月)
|
階建 / 階 |
7階建 / 5階 |
| 建物構造 |
RC |
総戸数 |
- |
| 主要採光面 |
南 |
駐車場 |
近有 20,000円/月 |
| バイク置き場 |
- |
駐輪場 |
- |
| 建物名・部屋番号 |
日神デュオステージ蒔田 |
ペット |
相談 |
| アピールポイント |
ペット飼育相談可能で大切なペットと一緒にお過ごしいただけます
スーパー・コンビニ近くにありお買い物も楽々☆
オートロック完備で女性の一人暮らしでも安心です♪
初期費用のクレジット決済など、その他条件お気軽にご相談ください。 |
| リフォーム履歴 |
- |
| リノベーション履歴 |
- |
| 備考 |
賃貸保証等:加入要(初回・総賃料の80パーセント。月額保証料・総賃料の1パーセント。)
管理形態/管理員の勤務形態:-/-
IT重説対応物件
初期費用をクレジット決済可能(分割も可)
短期解約時違約金あり ペット飼育相談可能:礼金1ヶ月追加 24時間サポート:2.200円/月 初期費用を分割可能です!(スムーズ・クレジット決済)
|
| エネルギー消費性能 |
- |
| 断熱性能 |
- |
| 目安光熱費 |
- |
| バス・トイレ |
バス・トイレ別、浴室乾燥機、追焚機能、洗面所独立、洗面所、洗面台、シャワー、温水洗浄便座、トイレ |
| キッチン |
システムキッチン、IHクッキングヒーター、2口コンロ |
| セキュリティー |
モニター付オートロック、オートロック、モニター付インターホン、ダブルロックドア、防犯カメラ |
| 収納 |
収納スペース、クローゼット、シューズボックス |
| 設備・サービス |
室内洗濯機置場、洗濯機置場、全居室フローリング、フローリング、都市ガス、エアコン |
| TV・通信 |
インターネット対応、光ファイバー、ケーブルTV、CS、BS端子 |
| その他 |
宅配BOX、バルコニー、エレベーター |
| 契約期間 |
2年 |
現況 |
居住中 |
| 条件等 |
- |
入居可能時期 |
相談 |
| 更新料 |
新賃料 1.5ヶ月 |
物件番号 |
1123010415 |
| 情報公開日 |
2025年11月3日 |
次回更新予定日 |
2025年11月17日 |
| ケータイ用バーコード |
- スマートフォンでこの物件を見る
- スマートフォンからもこの物件をご覧になれます。
|
※「-」と表示されている項目については、情報提供会社にご確認ください。
| 周辺施設 |
ローソンストア100 横浜宮元町店 |
| 距離 |
232m |
写真を見る |
| 周辺施設 |
セブンイレブン 横浜宮元町2丁目店 |
| 距離 |
273m |
写真を見る |
| 周辺施設 |
いなげや 横浜東蒔田店 |
| 距離 |
371m |
写真を見る |
| 周辺施設 |
カシワバ薬局 共進町店 |
| 距離 |
454m |
写真を見る |
| 周辺施設 |
ドンドン商店街 |
| 距離 |
1037m |
写真を見る |
ここから簡単にお問い合わせをすることができます。
(SSLでの暗号化での送信を希望されるお客さまは
こちら
よりお問い合わせください)
お問い合わせを行う前に
「個人情報の取り扱いについて」を必ずお読みください。
「個人情報の取り扱いについて」に同意いただいた場合は「上記にご同意の上 確認画面へ進む」のボタンをクリックしてください。
個人情報の取り扱いについて
皆さまが送付された個人情報はアットホーム(株)のサーバを経由し、お問い合わせ先の不動産会社にメールまたはFAXにて転送されるためアットホーム(株)にも保管されます。アットホーム(株)で保管された個人情報の取り扱いについては、【こちら】をご覧ください。
また、本画面でご記入いただいた個人情報は、お問い合わせ先の不動産会社でも保管します。 お問い合わせ先の不動産会社が保管する個人情報の取り扱いについては、不動産会社に直接お問い合わせください。
神奈川県知事免許(10)第14677号 |
|---|
- 交通:
- JR京浜東北線/関内駅 徒歩3分
- 神奈川県横浜市中区翁町1丁目1-6 産友パークビル2F
- TEL:
- 045-227-5755
- FAX:
- 045-227-5756
- 所属団体:
- (公社)神奈川県宅地建物取引業協会会員(公社)首都圏不動産公正取引協議会加盟
取引態様:仲介  - 00105631
|
- スマートフォンで
この不動産会社を見る

|
- 提携サイト等より掲載されている物件情報につきましては、不動産会社詳細情報にリンクされていないものがあります。
- 物件に関するお問合せは、物件詳細ページの「情報提供会社」に表示されている不動産会社へ直接お願いいたします。
- 間取図は、現況を優先させていただきます。
- 映像は物件の一部を撮影したものです。物件の契約にあたっての最終判断はご自身の判断に基づいて行ってください。
- 仲介手数料について

アットホームは物件情報の適正化に努めております。
内容に誤りがある場合にはこちらへご連絡ください。