大阪府大阪市東成区深江南3丁目(新深江駅)の賃貸:物件詳細
交通 所在地 |
駅徒歩 |
賃料 管理費等 |
敷金/保証金 礼金 |
間取り 面積 |
物件種目 築年月 |
地下鉄千日前線/新深江
大阪府大阪市東成区深江南3丁目
|
8分
|
8.1万円
10,000円
|
なし / なし
なし
|
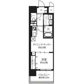
1DK
30.60m²
|
賃貸マンション
2025年9月
|
ペット相談、デザイナーズ、常時ゴミ出し可能、角部屋、南向き、振分、二人入居可、24時間換気システム、IT重説対応物件
|
間取図
|
外観
|
<
その他の画像
>
|
交通 | 地下鉄千日前線 新深江駅 徒歩8分 |
---|
その他の交通 | 近鉄大阪線 布施駅 徒歩7分 地下鉄千日前線 小路駅 徒歩15分 |
所在地 |
大阪府大阪市東成区深江南3丁目
|
物件種目 |
賃貸マンション |
賃料 |
8.1万円 |
管理費等 |
10,000円 |
敷金 / 保証金 |
なし / なし |
礼金 |
なし |
敷引 |
- |
保証金償却 |
- |
その他一時金 |
なし |
保険等 |
要 2年 18,000円 |
維持費等 |
- |
クレジットカード決済 |
初期費用可 |
間取り |
1DK(DK6.5、洋4) |
専有面積 |
30.60m² |
築年月 |
2025年9月
|
階建 / 階 |
12階建 / 11階 |
建物構造 |
RC |
総戸数 |
- |
主要採光面 |
南 |
駐車場 |
近有 18,000円/月 |
バイク置き場 |
有 800円/月 |
駐輪場 |
有 200円/月 |
建物名・部屋番号 |
|
ペット |
相談 |
アピールポイント |
弊社公式LINEにてその他物件のご紹介も可能です。条件のご共有をいただけましたら、リアルタイムでどこよりも早い新着物件の送付をいたします!公式LINE登録は当店ホームページからお願いします。 |
リフォーム履歴 |
- |
リノベーション履歴 |
- |
備考 |
賃貸保証等:加入要(初回保証料総賃料50%、年間保証料1万円。法人契約ご希望の際は06-6795-4535までお電話ください。)
管理形態/管理員の勤務形態:-/巡回
IT重説対応物件、管理人巡回
物件現地集合・オンライン内覧・その他物件のお探しも可能でございます!掲載元が当店でない物件もまとめてご案内可能でございます。
初期費用のクレジット決済・郵送でのご契約も承っておりますのでご相談ください。
お問い合わせ:アスモ不動産上本町店
【06-6795-4535】
|
エネルギー消費性能 |
- |
断熱性能 |
- |
目安光熱費 |
- |
バス・トイレ |
バス・トイレ別、浴室乾燥機、シャワー付洗面化粧台、洗面所独立、洗面所、温水洗浄便座、トイレ |
キッチン |
システムキッチン、独立型キッチン、2口コンロ、ガスコンロ可 |
セキュリティー |
モニター付オートロック、オートロック、モニター付インターホン、防犯カメラ |
収納 |
収納スペース、クローゼット、シューズボックス |
設備・サービス |
室内洗濯機置場、洗濯機置場、全居室フローリング、フローリング、クッションフロア、都市ガス、エアコン、ダウンライト、間接照明、照明器具 |
TV・通信 |
インターネット対応、インターネット使用料無料、光ファイバー、CATVインターネット、ケーブルTV、CS、BS端子 |
その他 |
バイク置き場、バルコニー、駐輪場、エレベーター |
契約期間 |
2年 |
現況 |
空家 |
条件等 |
- |
入居可能時期 |
即時 |
更新料 |
10,000円 |
物件番号 |
1123072715 |
情報公開日 |
2025年9月30日 |
次回更新予定日 |
2025年10月27日 |
ケータイ用バーコード |
- スマートフォンでこの物件を見る
- スマートフォンからもこの物件をご覧になれます。
|
※「-」と表示されている項目については、情報提供会社にご確認ください。
周辺施設 |
ライフ 新深江店 |
距離 |
928m |
写真を見る |
周辺施設 |
さくら薬局 大阪深江南店 |
距離 |
682m |
写真を見る |
周辺施設 |
MEGAドン・キホーテ深江橋店 |
距離 |
1190m |
写真を見る |
周辺施設 |
ノムラクリーニング コインランドリー 深江橋店 |
距離 |
1259m |
写真を見る |
周辺施設 |
エディオン 北巽店 |
距離 |
1996m |
写真を見る |
周辺施設 |
やよい軒 JR森ノ宮店 |
距離 |
3485m |
写真を見る |
周辺施設 |
大阪公立大学 森之宮キャンパス |
距離 |
3990m |
写真を見る |
ここから簡単にお問い合わせをすることができます。
(SSLでの暗号化での送信を希望されるお客さまは
こちら
よりお問い合わせください)
お問い合わせを行う前に
「個人情報の取り扱いについて」を必ずお読みください。
「個人情報の取り扱いについて」に同意いただいた場合は「上記にご同意の上 確認画面へ進む」のボタンをクリックしてください。
個人情報の取り扱いについて
皆さまが送付された個人情報はアットホーム(株)のサーバを経由し、お問い合わせ先の不動産会社にメールまたはFAXにて転送されるためアットホーム(株)にも保管されます。アットホーム(株)で保管された個人情報の取り扱いについては、【こちら】をご覧ください。
また、本画面でご記入いただいた個人情報は、お問い合わせ先の不動産会社でも保管します。 お問い合わせ先の不動産会社が保管する個人情報の取り扱いについては、不動産会社に直接お問い合わせください。
大阪府知事免許(1)第62969号 |
---|
- 交通:
- 近鉄奈良線/大阪上本町駅 徒歩2分
- 大阪府大阪市天王寺区上汐3丁目3-23 ライオンズマンション上六第二
- TEL:
- 06-6795-4535
- FAX:
- 06-6795-4536
- 所属団体:
- (一社)大阪府宅地建物取引業協会会員(公社)近畿地区不動産公正取引協議会加盟
取引態様:仲介  - 50110539
|
- スマートフォンで
この不動産会社を見る

|
- 提携サイト等より掲載されている物件情報につきましては、不動産会社詳細情報にリンクされていないものがあります。
- 物件に関するお問合せは、物件詳細ページの「情報提供会社」に表示されている不動産会社へ直接お願いいたします。
- 間取図は、現況を優先させていただきます。
- 映像は物件の一部を撮影したものです。物件の契約にあたっての最終判断はご自身の判断に基づいて行ってください。
- 仲介手数料について

アットホームは物件情報の適正化に努めております。
内容に誤りがある場合にはこちらへご連絡ください。