東京都新宿区新宿1丁目(新宿御苑前駅)の賃貸:物件詳細
交通 所在地 |
駅徒歩 |
賃料 管理費等 |
敷金/保証金 礼金 |
間取り 面積 |
物件種目 築年月 |
|
東京メトロ丸ノ内線/新宿御苑前
東京都新宿区新宿1丁目
|
7分
|
17.1万円
15,000円
|
1ヶ月 / なし
なし
|
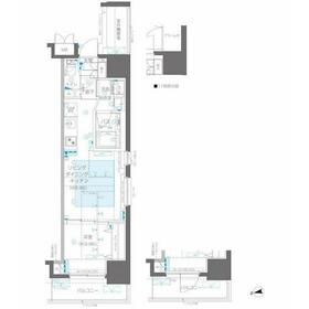
1LDK
30.92m²
|
賃貸マンション
2024年9月(築1年3ヶ月)
|
ペット相談、デザイナーズ、常時ゴミ出し可能、角部屋、二人入居可、2面採光、24時間換気システム、閑静な住宅街、保証人不要
|
|
間取図
|
外観
|
<
その他の画像
>
|
| 交通 | 東京メトロ丸ノ内線 新宿御苑前駅 徒歩7分 |
|---|
| その他の交通 | 東京メトロ丸ノ内線 四谷三丁目駅 徒歩12分 東京メトロ丸ノ内線 新宿三丁目駅 徒歩12分 |
| 所在地 |
東京都新宿区新宿1丁目
|
| 物件種目 |
賃貸マンション |
| 賃料 |
17.1万円 |
管理費等 |
15,000円 |
| 敷金 / 保証金 |
1ヶ月 / なし |
礼金 |
なし |
| 敷引 |
- |
保証金償却 |
- |
| その他一時金 |
なし、鍵交換代等:33,000円~ |
保険等 |
要 2年 18,000円 |
| 維持費等 |
家財保険+付帯サービス:1,835円/月 |
| 間取り |
1LDK(LDK8.4、洋3.3) |
専有面積 |
30.92m² |
| 築年月 |
2024年9月(築1年3ヶ月)
|
階建 / 階 |
15階建 / 11階 |
| 建物構造 |
RC |
総戸数 |
- |
| 主要採光面 |
西 |
駐車場 |
- |
| バイク置き場 |
有 |
駐輪場 |
有 |
| 建物名・部屋番号 |
ZOOM新宿御苑前 |
ペット |
相談 |
| リフォーム履歴 |
- |
| リノベーション履歴 |
- |
| 備考 |
賃貸保証等:加入要(オリコフォレントインシュア 初回保証委託料:月額賃料等の50%、月次保証料:賃料等の1%詳細はお問い合わせください。)
管理形態/管理員の勤務形態:-/日勤
管理人日勤
☆駅まで徒歩7分!ペット相談可◎ネット無料◎設備充実◎
初期費用分割払い可能☆最大24ヶ月払い☆カード決済も対応しております!!
遠方の方や忙しい方向けオンライン内見実施中☆
|
| エネルギー消費性能 |
- |
| 断熱性能 |
- |
| 目安光熱費 |
- |
| バス・トイレ |
バス・トイレ別、浴室乾燥機、オートバス、追焚機能、洗面所独立、洗面所、温水洗浄便座、トイレ |
| キッチン |
システムキッチン、2口コンロ、ガスコンロ可 |
| セキュリティー |
モニター付オートロック、オートロック、モニター付インターホン、ディンプルキー、ダブルロックドア、防犯カメラ、防犯用ガラス |
| 収納 |
収納スペース、クローゼット、シューズボックス |
| 設備・サービス |
床暖房、室内洗濯機置場、洗濯機置場、出窓、全居室フローリング、都市ガス、エアコン、暖房、冷房、人感センサー付照明 |
| TV・通信 |
インターネット対応、インターネット使用料無料、ケーブルTV、CS、BS端子 |
| その他 |
宅配BOX、バイク置き場、バルコニー、駐輪場、エレベーター |
| 契約期間 |
2年 |
現況 |
空家 |
| 条件等 |
- |
入居可能時期 |
即時 |
| 更新料 |
新賃料 1ヶ月 |
物件番号 |
1123229515 |
| 情報公開日 |
2025年10月31日 |
次回更新予定日 |
2025年11月14日 |
| ケータイ用バーコード |
- スマートフォンでこの物件を見る
- スマートフォンからもこの物件をご覧になれます。
|
※「-」と表示されている項目については、情報提供会社にご確認ください。
| 周辺施設 |
ローソン 新宿一丁目店 |
| 距離 |
27m |
写真を見る |
| 周辺施設 |
ファミリーマート 四谷四丁目店 |
| 距離 |
585m |
写真を見る |
| 周辺施設 |
ローソン H新宿御苑北店 |
| 距離 |
558m |
写真を見る |
ここから簡単にお問い合わせをすることができます。
(SSLでの暗号化での送信を希望されるお客さまは
こちら
よりお問い合わせください)
お問い合わせを行う前に
「個人情報の取り扱いについて」を必ずお読みください。
「個人情報の取り扱いについて」に同意いただいた場合は「上記にご同意の上 確認画面へ進む」のボタンをクリックしてください。
個人情報の取り扱いについて
皆さまが送付された個人情報はアットホーム(株)のサーバを経由し、お問い合わせ先の不動産会社にメールまたはFAXにて転送されるためアットホーム(株)にも保管されます。アットホーム(株)で保管された個人情報の取り扱いについては、【こちら】をご覧ください。
また、本画面でご記入いただいた個人情報は、お問い合わせ先の不動産会社でも保管します。 お問い合わせ先の不動産会社が保管する個人情報の取り扱いについては、不動産会社に直接お問い合わせください。
東京都知事免許(1)第107647号 |
|---|
- 交通:
- 東京メトロ銀座線/青山一丁目駅 徒歩1分
- 東京都港区北青山1丁目3-3
- TEL:
- 03-6809-3842
- 所属団体:
- (公社)東京都宅地建物取引業協会会員(公社)首都圏不動産公正取引協議会加盟
取引態様:仲介  - 00272535
|
- スマートフォンで
この不動産会社を見る

|
- 提携サイト等より掲載されている物件情報につきましては、不動産会社詳細情報にリンクされていないものがあります。
- 物件に関するお問合せは、物件詳細ページの「情報提供会社」に表示されている不動産会社へ直接お願いいたします。
- 間取図は、現況を優先させていただきます。
- 映像は物件の一部を撮影したものです。物件の契約にあたっての最終判断はご自身の判断に基づいて行ってください。
- 仲介手数料について

アットホームは物件情報の適正化に努めております。
内容に誤りがある場合にはこちらへご連絡ください。