兵庫県神戸市中央区八雲通6丁目(春日野道駅)の賃貸:物件詳細
交通 所在地 |
駅徒歩 |
賃料 管理費等 |
敷金/保証金 礼金 |
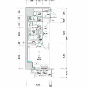
間取り 面積 |
物件種目 築年月 |
阪急神戸線/春日野道
兵庫県神戸市中央区八雲通6丁目
|
9分
|
5.84万円
4,600円
|
なし / なし
11.68万円
|
1K
25.83m²
|
賃貸マンション
2009年10月(築16年1ヶ月)
|
ペット相談
|
間取図
|
外観
きれいな外観です
|
<
その他の画像
>
|
交通 | 阪急神戸線 春日野道駅 徒歩9分 |
---|
その他の交通 | JR東海道本線 三ノ宮駅 徒歩11分 阪神本線 春日野道駅 徒歩9分 |
所在地 |
兵庫県神戸市中央区八雲通6丁目
|
物件種目 |
賃貸マンション |
賃料 |
5.84万円 |
管理費等 |
4,600円 |
敷金 / 保証金 |
なし / なし |
礼金 |
11.68万円 |
敷引 |
- |
保証金償却 |
- |
その他一時金 |
カギ費用:27,500円、ハウスクリーニング費用:33,000円、スマサポコンシェル入会金:5,500円 |
保険等 |
要 2年 22,000円 |
維持費等 |
スマサポコンシェル:1,320円/月 |
間取り |
1K(洋6.3) |
専有面積 |
25.83m² |
築年月 |
2009年10月(築16年1ヶ月)
|
階建 / 階 |
10階建 / 8階 |
建物構造 |
RC |
総戸数 |
- |
主要採光面 |
北東 |
駐車場 |
- |
バイク置き場 |
- |
駐輪場 |
- |
建物名・部屋番号 |
アドバンス三宮Ⅱライズ 0805 |
ペット |
相談 |
アピールポイント |
浴室乾燥機付きの物件なので、浴室乾燥機をつけて湿気を除去すればカビの発生を予防できます。収納はクロゼット・シューズボックスなど豊富なので、広々と空間を利用することも可能です。セキュリティ面は、TVインターホン・オートロックなどを備え付けているので安心して暮らせます。共用部には宅配ボックスが備え付けられているため、忙しくて在宅時間が少なくても荷物を受け取れます。駐輪場付きのマンションです。駅まで徒歩9分なので、アクセスの良い物件です。エアコンが設置されている物件です。人がいなくなれば自動で消灯する人感照明センサーが付いています。賃料を10万円以下に抑えたい方におすすめです。こちらはペット相談可の物件です。お気軽にご相談ください。バルコニー付きのマンションで、用途に合わせて利用できおすすめです。 |
リフォーム履歴 |
- |
リノベーション履歴 |
- |
備考 |
賃貸保証等:加入要(株式会社ルームバンクインシュア ※大手法人相談可)
管理形態/管理員の勤務形態:-/-
バルコニー:3m²
六甲道駅徒歩1分!神戸・六甲道・神戸大学周辺の賃貸はワンプラス六甲道本店。地域密着&未公開物件で理想のお部屋探しを全力サポート!
セキュリティ面は、TVインターホン・オートロックなど充実しているので安心して生活できます。
|
エネルギー消費性能 |
- |
断熱性能 |
- |
目安光熱費 |
- |
バス・トイレ |
ミストサウナ、バス・トイレ別、浴室乾燥機、トイレ |
キッチン |
2口コンロ |
セキュリティー |
モニター付オートロック、オートロック、モニター付インターホン、ディンプルキー、ダブルロックドア、防犯カメラ |
収納 |
収納スペース、クローゼット、シューズボックス |
設備・サービス |
室内洗濯機置場、洗濯機置場、エアコン、人感センサー付照明 |
TV・通信 |
- |
その他 |
宅配BOX、バルコニー、エレベーター |
契約期間 |
2年 |
現況 |
空家 |
条件等 |
- |
入居可能時期 |
2025年11月28日予定 |
更新料 |
- |
物件番号 |
1123489315 |
情報公開日 |
2025年9月30日 |
次回更新予定日 |
2025年10月27日 |
ケータイ用バーコード |
- スマートフォンでこの物件を見る
- スマートフォンからもこの物件をご覧になれます。
|
※「-」と表示されている項目については、情報提供会社にご確認ください。
周辺施設 |
セブンイレブン 神戸三宮旭通店 |
距離 |
278m |
写真を見る |
周辺施設 |
業務スーパー 大安亭店 |
距離 |
290m |
写真を見る |
周辺施設 |
ファミリーマート 神戸日暮通店 |
距離 |
381m |
写真を見る |
周辺施設 |
ローソン 神戸若菜通五丁目店 |
距離 |
398m |
写真を見る |
周辺施設 |
キリン堂 吾妻通店 |
距離 |
601m |
写真を見る |
周辺施設 |
阪急OASIS(オアシス) 神戸旭通店 |
距離 |
600m |
写真を見る |
周辺施設 |
神戸クアハウス |
距離 |
658m |
写真を見る |
ここから簡単にお問い合わせをすることができます。
(SSLでの暗号化での送信を希望されるお客さまは
こちら
よりお問い合わせください)
お問い合わせを行う前に
「個人情報の取り扱いについて」を必ずお読みください。
「個人情報の取り扱いについて」に同意いただいた場合は「上記にご同意の上 確認画面へ進む」のボタンをクリックしてください。
個人情報の取り扱いについて
皆さまが送付された個人情報はアットホーム(株)のサーバを経由し、お問い合わせ先の不動産会社にメールまたはFAXにて転送されるためアットホーム(株)にも保管されます。アットホーム(株)で保管された個人情報の取り扱いについては、【こちら】をご覧ください。
また、本画面でご記入いただいた個人情報は、お問い合わせ先の不動産会社でも保管します。 お問い合わせ先の不動産会社が保管する個人情報の取り扱いについては、不動産会社に直接お問い合わせください。
兵庫県知事免許(3)第11688号 |
---|
- 交通:
- JR東海道本線/六甲道駅 徒歩1分
- 兵庫県神戸市灘区永手町3丁目2-16 有本ビル
- TEL:
- 078-846-3833
- FAX:
- 078-846-3834
- 所属団体:
- (公社)全日本不動産協会会員(公社)近畿地区不動産公正取引協議会加盟
取引態様:仲介  - 50102484
|
- スマートフォンで
この不動産会社を見る

|
- 提携サイト等より掲載されている物件情報につきましては、不動産会社詳細情報にリンクされていないものがあります。
- 物件に関するお問合せは、物件詳細ページの「情報提供会社」に表示されている不動産会社へ直接お願いいたします。
- 間取図は、現況を優先させていただきます。
- 映像は物件の一部を撮影したものです。物件の契約にあたっての最終判断はご自身の判断に基づいて行ってください。
- 仲介手数料について

アットホームは物件情報の適正化に努めております。
内容に誤りがある場合にはこちらへご連絡ください。