東京都台東区上野3丁目(御徒町駅)の賃貸:物件詳細
交通 所在地 |
駅徒歩 |
賃料 管理費等 |
敷金/保証金 礼金 |
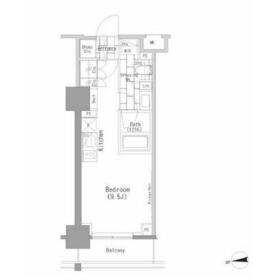
間取り 面積 |
物件種目 築年月 |
|
JR山手線/御徒町
東京都台東区上野3丁目
|
2分
|
13.7万円
10,000円
|
1ヶ月 / なし
1ヶ月
|
ワンルーム
25.54m²
|
賃貸マンション
2015年10月(築10年7ヶ月)
|
ペット相談、楽器相談、外観タイル張り、保証人不要
|
|
間取図
|
外観
|
<
その他の画像
>
|
| 交通 | JR山手線 御徒町駅 徒歩2分 |
|---|
| その他の交通 | 東京メトロ日比谷線 仲御徒町駅 徒歩3分 都営大江戸線 上野御徒町駅 徒歩4分 |
| 所在地 |
東京都台東区上野3丁目
|
| 物件種目 |
賃貸マンション |
| 賃料 |
13.7万円 |
管理費等 |
10,000円 |
| 敷金 / 保証金 |
1ヶ月 / なし |
礼金 |
1ヶ月 |
| 敷引 |
- |
保証金償却 |
- |
| その他一時金 |
なし、鍵交換代等:33,000円~ |
保険等 |
要 |
| 維持費等 |
- |
| 間取り |
ワンルーム(洋室9.5帖) |
専有面積 |
25.54m² |
| 築年月 |
2015年10月(築10年7ヶ月)
|
階建 / 階 |
12階建 / 3階 |
| 建物構造 |
RC |
総戸数 |
- |
| 主要採光面 |
西 |
駐車場 |
有 33,000円/月 |
| バイク置き場 |
無 |
駐輪場 |
有 440円/月 |
| 建物名・部屋番号 |
ザ・パークハビオ上野レジデンス 307 |
ペット |
相談 |
| アピールポイント |
御徒町駅徒歩2分 ペット・楽器相談可 追焚 独立洗面台 浴室乾燥 2口コンロ 宅配BOX 防犯カメラ |
| リフォーム履歴 |
- |
| リノベーション履歴 |
- |
| 備考 |
賃貸保証等:加入要(初回保証料:総賃料の40% 1年毎8000円)
管理形態/管理員の勤務形態:-/-
解約予告2ヶ月前 室内クリーニング費用・エアコン洗浄費用借主負担
|
| エネルギー消費性能 |
- |
| 断熱性能 |
- |
| 目安光熱費 |
- |
| バス・トイレ |
バス・トイレ別、浴室乾燥機、オートバス、追焚機能、洗面所独立、洗面台、シャワー、温水洗浄便座、トイレ |
| キッチン |
システムキッチン、2口コンロ、ガスコンロ付 |
| セキュリティー |
オートロック、モニター付インターホン、防犯カメラ |
| 収納 |
全居室収納、クローゼット、シューズボックス |
| 設備・サービス |
室内洗濯機置場、フローリング、都市ガス、エアコン、暖房、冷房、照明器具 |
| TV・通信 |
光ファイバー、ケーブルTV、CS、BS端子 |
| その他 |
宅配BOX、バルコニー、駐輪場、エレベーター |
| 契約期間 |
2年 |
現況 |
居住中 |
| 条件等 |
- |
入居可能時期 |
2026年5月下旬予定 |
| 更新料 |
新賃料 1ヶ月 |
物件番号 |
1123742423 |
| 情報公開日 |
2026年3月31日 |
次回更新予定日 |
2026年4月1日 |
| ケータイ用バーコード |
- スマートフォンでこの物件を見る
- スマートフォンからもこの物件をご覧になれます。
|
※「-」と表示されている項目については、情報提供会社にご確認ください。
| 周辺施設 |
仲御徒町駅(東京メトロ 日比谷線) |
| 距離 |
360m |
写真を見る |
| 周辺施設 |
肉のハナマサ秋葉原店 |
| 距離 |
290m |
写真を見る |
| 周辺施設 |
ローソン上野五丁目店 |
| 距離 |
50m |
写真を見る |
| 周辺施設 |
東都文京病院 |
| 距離 |
750m |
写真を見る |
| 周辺施設 |
台東区立黒門小学校 |
| 距離 |
490m |
写真を見る |
| 周辺施設 |
ほっぺるランド外神田 |
| 距離 |
360m |
写真を見る |
ここから簡単にお問い合わせをすることができます。
(SSLでの暗号化での送信を希望されるお客さまは
こちら
よりお問い合わせください)
お問い合わせを行う前に
「個人情報の取り扱いについて」を必ずお読みください。
「個人情報の取り扱いについて」に同意いただいた場合は「上記にご同意の上 確認画面へ進む」のボタンをクリックしてください。
個人情報の取り扱いについて
皆さまが送付された個人情報はアットホーム(株)のサーバを経由し、お問い合わせ先の不動産会社にメールまたはFAXにて転送されるためアットホーム(株)にも保管されます。アットホーム(株)で保管された個人情報の取り扱いについては、【こちら】をご覧ください。
また、本画面でご記入いただいた個人情報は、お問い合わせ先の不動産会社でも保管します。 お問い合わせ先の不動産会社が保管する個人情報の取り扱いについては、不動産会社に直接お問い合わせください。
東京都知事免許(6)第76891号 |
|---|
- 交通:
- 都営大江戸線/蔵前駅 徒歩1分
- 東京都台東区蔵前3丁目17-4 蔵前妙見屋ビル4F
- TEL:
- 03-6228-4882
- FAX:
- 03-5829-3586
- 所属団体:
- (公社)全日本不動産協会会員(公社)首都圏不動産公正取引協議会加盟
取引態様:仲介  - 00275543
|
- スマートフォンで
この不動産会社を見る

|
- 提携サイト等より掲載されている物件情報につきましては、不動産会社詳細情報にリンクされていないものがあります。
- 物件に関するお問合せは、物件詳細ページの「情報提供会社」に表示されている不動産会社へ直接お願いいたします。
- 間取図は、現況を優先させていただきます。
- 映像は物件の一部を撮影したものです。物件の契約にあたっての最終判断はご自身の判断に基づいて行ってください。
- 仲介手数料について

アットホームは物件情報の適正化に努めております。
内容に誤りがある場合にはこちらへご連絡ください。