東京都江東区深川1丁目(門前仲町駅)の賃貸:物件詳細
交通 所在地 |
駅徒歩 |
賃料 管理費等 |
敷金/保証金 礼金 |
間取り 面積 |
物件種目 築年月 |
東京メトロ東西線/門前仲町
東京都江東区深川1丁目
|
6分
|
10万円
10,000円
|
1ヶ月 / なし
なし
|
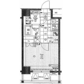
1K
25.74m²
|
賃貸マンション
2010年2月(築15年9ヶ月)
|
デザイナーズ、分譲タイプ、常時ゴミ出し可能、24時間換気システム、外観タイル張り、保証人不要
|
間取図
|
外観
|
<
その他の画像
>
|
交通 | 東京メトロ東西線 門前仲町駅 徒歩6分 |
---|
その他の交通 | 東京メトロ半蔵門線 清澄白河駅 徒歩8分 JR京葉線 越中島駅 徒歩15分 |
所在地 |
東京都江東区深川1丁目
|
物件種目 |
賃貸マンション |
賃料 |
10万円 |
管理費等 |
10,000円 |
敷金 / 保証金 |
1ヶ月 / なし |
礼金 |
なし |
敷引 |
- |
保証金償却 |
解約時1ヶ月 |
その他一時金 |
24時間駆けつけサービス:16,500円、入居時抗菌費用:13,200円、鍵交換代等:33,000円~ |
保険等 |
要 2年 20,000円 |
維持費等 |
- |
クレジットカード決済 |
初期費用可 |
間取り |
1K(K2、洋7.2) |
専有面積 |
25.74m² |
築年月 |
2010年2月(築15年9ヶ月)
|
階建 / 階 |
10階建 / 7階 |
建物構造 |
RC |
総戸数 |
- |
主要採光面 |
南東 |
駐車場 |
- |
バイク置き場 |
- |
駐輪場 |
- |
建物名・部屋番号 |
|
ペット |
-
|
リフォーム履歴 |
- |
リノベーション履歴 |
- |
備考 |
賃貸保証等:加入要(初回保証料:総賃料の50%)
管理形態/管理員の勤務形態:-/-
江東・墨田のお部屋探し
ROOTS 03-5638-8866
お持ちのクレジットカードで決済が可能、初期費用の分割払いもできます。
|
エネルギー消費性能 |
- |
断熱性能 |
- |
目安光熱費 |
- |
バス・トイレ |
バス・トイレ別、浴室乾燥機、シャワー付洗面化粧台、洗面所独立、洗面所、洗面台、シャワールーム、シャワー、温水洗浄便座、トイレ |
キッチン |
システムキッチン、独立型キッチン、2口コンロ、ガスコンロ可 |
セキュリティー |
モニター付オートロック、オートロック、モニター付インターホン、ディンプルキー、ダブルロックドア、防犯カメラ |
収納 |
全居室収納、収納スペース、クローゼット、シューズボックス |
設備・サービス |
全居室エアコン、室内洗濯機置場、洗濯機置場、都市ガス給湯、給湯、全居室フローリング、フローリング、都市ガス、エアコン、冷房、照明器具 |
TV・通信 |
インターネット対応、CS、BS端子 |
その他 |
宅配BOX、ワイドバルコニー、バルコニー、エレベーター |
契約期間 |
2年 |
現況 |
居住中 |
条件等 |
- |
入居可能時期 |
2025年11月中旬予定 |
更新料 |
新賃料 1ヶ月 |
物件番号 |
1123995715 |
情報公開日 |
2025年10月1日 |
次回更新予定日 |
2025年10月15日 |
ケータイ用バーコード |
- スマートフォンでこの物件を見る
- スマートフォンからもこの物件をご覧になれます。
|
※「-」と表示されている項目については、情報提供会社にご確認ください。
周辺施設 |
赤札堂 深川店 |
距離 |
458m |
写真を見る |
周辺施設 |
キャンドゥ 赤札堂深川店 |
距離 |
461m |
写真を見る |
周辺施設 |
ローソン 深川一丁目店 |
距離 |
78m |
写真を見る |
周辺施設 |
ファミリーマート江東福住一丁目店 |
距離 |
344m |
写真を見る |
周辺施設 |
コーナン 江東深川店 |
距離 |
293m |
写真を見る |
周辺施設 |
らーめん こうかいぼう |
距離 |
318m |
写真を見る |
周辺施設 |
モスバーガー 門前仲町店 |
距離 |
402m |
写真を見る |
周辺施設 |
京橋千疋屋製造 直売所 |
距離 |
81m |
写真を見る |
ここから簡単にお問い合わせをすることができます。
(SSLでの暗号化での送信を希望されるお客さまは
こちら
よりお問い合わせください)
お問い合わせを行う前に
「個人情報の取り扱いについて」を必ずお読みください。
「個人情報の取り扱いについて」に同意いただいた場合は「上記にご同意の上 確認画面へ進む」のボタンをクリックしてください。
個人情報の取り扱いについて
皆さまが送付された個人情報はアットホーム(株)のサーバを経由し、お問い合わせ先の不動産会社にメールまたはFAXにて転送されるためアットホーム(株)にも保管されます。アットホーム(株)で保管された個人情報の取り扱いについては、【こちら】をご覧ください。
また、本画面でご記入いただいた個人情報は、お問い合わせ先の不動産会社でも保管します。 お問い合わせ先の不動産会社が保管する個人情報の取り扱いについては、不動産会社に直接お問い合わせください。
東京都知事免許(3)第97304号 |
---|
- 交通:
- 都営大江戸線/森下駅 徒歩2分
- 東京都江東区新大橋2丁目7-4
- TEL:
- 03-5638-8866
- FAX:
- 03-6666-9992
- 所属団体:
- (公社)東京都宅地建物取引業協会会員(公社)首都圏不動産公正取引協議会加盟
取引態様:仲介  - 00162542
|
- スマートフォンで
この不動産会社を見る

|
- 提携サイト等より掲載されている物件情報につきましては、不動産会社詳細情報にリンクされていないものがあります。
- 物件に関するお問合せは、物件詳細ページの「情報提供会社」に表示されている不動産会社へ直接お願いいたします。
- 間取図は、現況を優先させていただきます。
- 映像は物件の一部を撮影したものです。物件の契約にあたっての最終判断はご自身の判断に基づいて行ってください。
- 仲介手数料について

アットホームは物件情報の適正化に努めております。
内容に誤りがある場合にはこちらへご連絡ください。