東京都杉並区高円寺南2丁目(東高円寺駅)の賃貸:物件詳細
交通 所在地 |
駅徒歩 |
賃料 管理費等 |
敷金/保証金 礼金 |
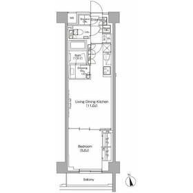
間取り 面積 |
物件種目 築年月 |
|
東京メトロ丸ノ内線/東高円寺
東京都杉並区高円寺南2丁目
|
8分
|
18.1万円
15,000円
|
1ヶ月 / なし
1ヶ月
|
1LDK
40.31m²
|
賃貸マンション
2021年8月(築4年3ヶ月)
|
ペット相談、楽器相談、常時ゴミ出し可能、南向き、高齢者相談、二人入居可、保証人不要
|
|
間取図
|
外観
外観も気になるポイント
|
<
その他の画像
>
|
| 交通 | 東京メトロ丸ノ内線 東高円寺駅 徒歩8分 |
|---|
| その他の交通 | JR中央線 高円寺駅 徒歩10分 JR総武線 中野駅 徒歩18分 |
| 所在地 |
東京都杉並区高円寺南2丁目
|
| 物件種目 |
賃貸マンション |
| 賃料 |
18.1万円 |
管理費等 |
15,000円 |
| 敷金 / 保証金 |
1ヶ月 / なし |
礼金 |
1ヶ月 |
| 敷引 |
- |
保証金償却 |
- |
| その他一時金 |
M-REALプレミアム会費(2年):19,800円、鍵交換代等:33,000円~ |
保険等 |
要 2年 31,000円 |
| 維持費等 |
- |
| 間取り |
1LDK(LDK11、洋5) |
専有面積 |
40.31m² |
| 築年月 |
2021年8月(築4年3ヶ月)
|
階建 / 階 |
地上10階地下1階建 / 2階 |
| 建物構造 |
RC |
総戸数 |
- |
| 主要採光面 |
南 |
駐車場 |
近有 40,000円/月 |
| バイク置き場 |
有 |
駐輪場 |
有 |
| 建物名・部屋番号 |
ザ・パークハビオ高円寺レジデンス |
ペット |
相談 |
| アピールポイント |
室内設備は洗面所独立・浴室乾燥機など豊富に揃っており、過ごしやすいお部屋になっております。共用部にはゴミ出し24時間OK・宅配ボックスなどが備わっておりとても充実しています。セキュリティ面は、オートロック・TVインターホンなど充実しているので安心して生活できます。収納はクロゼット・シューズWICなど豊富なので、衣類や履き物の整理がしやすく便利です。こちらの物件は2025年9月の入居日指定だという事もお忘れなくご確認ください。快適に暮らせる陽当たりが良い物件へのお引越しはいかがですか。一人暮らしの安心できる物件、防犯対策でカメラがついています。10階建てで快適な物件。近隣には駐車場もあり、近くに駐車できる安心感があります。設備条件が充実した月々18.1万円台のお部屋です。広さはなんと40.31㎡。 |
| リフォーム履歴 |
- |
| リノベーション履歴 |
- |
| 備考 |
賃貸保証等:加入要(当社指定:初期費用は賃料等の40%、月次保証料は賃料等の1%、保証会社条件有)
管理形態/管理員の勤務形態:-/日勤
管理人日勤
セキュリティ面は、TVインターホン・オートロックなどを設置しているので安全面でも優れております。共用部には宅配ボックス・ゴミ出し24時間OKなどが備わっておりとても充実しています。室内設備は洗面化粧台・浴室乾燥機などが揃っているので、快適に過ごしやすいお部屋になります。収納はクロゼット・シューズWICなどが備え付けられているので、衣類や日用品の収納に重宝します。毎日のテレビ生活が楽しくなるBS・CS付マンション。夜更かしのし過ぎには注意しましょう。ぜひご覧いただきたい賃貸物件です。必要なものは決断だけ。毎月18.1万円で至高の生活を手に入れましょう。周辺環境も良好で、魅力的な住環境のある、令和3年築の物件です。この物件はお風呂に追い焚き機能が付いています。兄弟で暮らすかたにもオススメの物件で、快適な1LDKです。入居時からインターネット環境が整っており、調べものをするためにすぐにインターネットを使いたいという方にもおすすめです。
|
| エネルギー消費性能 |
- |
| 断熱性能 |
- |
| 目安光熱費 |
- |
| バス・トイレ |
バス・トイレ別、浴室乾燥機、オートバス、追焚機能、洗面所独立、洗面所、温水洗浄便座、トイレ |
| キッチン |
システムキッチン、独立型キッチン、3口以上コンロ、ガスコンロ可、グリル |
| セキュリティー |
モニター付オートロック、オートロック、モニター付インターホン、ディンプルキー、ダブルロックドア、防犯カメラ |
| 収納 |
収納スペース、シューズインクローゼット、クローゼット |
| 設備・サービス |
全居室エアコン、エアコン2台以上、室内洗濯機置場、洗濯機置場、全居室フローリング、フローリング、都市ガス、エアコン、冷房 |
| TV・通信 |
インターネット対応、インターネット使用料無料、CS、BS端子 |
| その他 |
宅配BOX、バイク置き場、バルコニー、駐輪場、エレベーター |
| 契約期間 |
2年 |
現況 |
居住中 |
| 条件等 |
- |
入居可能時期 |
相談 |
| 更新料 |
新賃料 1ヶ月 |
物件番号 |
1124289412 |
| 情報公開日 |
2025年10月19日 |
次回更新予定日 |
2025年11月2日 |
| ケータイ用バーコード |
- スマートフォンでこの物件を見る
- スマートフォンからもこの物件をご覧になれます。
|
※「-」と表示されている項目については、情報提供会社にご確認ください。
| 周辺施設 |
セブンイレブン 杉並馬橋通り店 |
| 距離 |
1075m |
写真を見る |
| 周辺施設 |
ビッグ・エー杉並阿佐谷南店 |
| 距離 |
1227m |
写真を見る |
| 周辺施設 |
miniピアゴ中野中央5丁目店 |
| 距離 |
1388m |
写真を見る |
| 周辺施設 |
きらぼし銀行阿佐ヶ谷支店 |
| 距離 |
1386m |
写真を見る |
| 周辺施設 |
中央鈴薬局 |
| 距離 |
1396m |
写真を見る |
| 周辺施設 |
まいばすけっと 新中野駅前店 |
| 距離 |
1463m |
写真を見る |
ここから簡単にお問い合わせをすることができます。
(SSLでの暗号化での送信を希望されるお客さまは
こちら
よりお問い合わせください)
お問い合わせを行う前に
「個人情報の取り扱いについて」を必ずお読みください。
「個人情報の取り扱いについて」に同意いただいた場合は「上記にご同意の上 確認画面へ進む」のボタンをクリックしてください。
個人情報の取り扱いについて
皆さまが送付された個人情報はアットホーム(株)のサーバを経由し、お問い合わせ先の不動産会社にメールまたはFAXにて転送されるためアットホーム(株)にも保管されます。アットホーム(株)で保管された個人情報の取り扱いについては、【こちら】をご覧ください。
また、本画面でご記入いただいた個人情報は、お問い合わせ先の不動産会社でも保管します。 お問い合わせ先の不動産会社が保管する個人情報の取り扱いについては、不動産会社に直接お問い合わせください。
東京都知事免許(1)第107337号 |
|---|
- 交通:
- JR山手線/新宿駅 徒歩1分
- 東京都新宿区西新宿1丁目3-3 品川ステーションビル新宿5F
- TEL:
- 03-6258-0867
- 所属団体:
- (公社)東京都宅地建物取引業協会会員(公社)首都圏不動産公正取引協議会加盟
取引態様:仲介  - 00278932
|
- スマートフォンで
この不動産会社を見る

|
- 提携サイト等より掲載されている物件情報につきましては、不動産会社詳細情報にリンクされていないものがあります。
- 物件に関するお問合せは、物件詳細ページの「情報提供会社」に表示されている不動産会社へ直接お願いいたします。
- 間取図は、現況を優先させていただきます。
- 映像は物件の一部を撮影したものです。物件の契約にあたっての最終判断はご自身の判断に基づいて行ってください。
- 仲介手数料について

アットホームは物件情報の適正化に努めております。
内容に誤りがある場合にはこちらへご連絡ください。