東京都墨田区墨田5丁目(鐘ヶ淵駅)の賃貸:物件詳細
交通 所在地 |
駅徒歩 |
賃料 管理費等 |
敷金/保証金 礼金 |
間取り 面積 |
物件種目 築年月 |
|
東武伊勢崎線/鐘ヶ淵
東京都墨田区墨田5丁目
|
2分
|
10.5万円
18,000円
|
なし / なし
なし
|
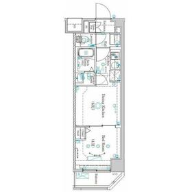
1DK
26.39m²
|
賃貸マンション
2022年3月(築3年10ヶ月)
|
ペット相談、フリーレント、分譲タイプ、二人入居可、24時間換気システム、外観タイル張り、IT重説対応物件、保証人不要
|
|
間取図
|
外観
|
<
その他の画像
>
|
| 交通 | 東武伊勢崎線 鐘ヶ淵駅 徒歩2分 |
|---|
| その他の交通 | 京成押上線 八広駅 徒歩18分 東武伊勢崎線 東向島駅 徒歩14分 |
| 所在地 |
東京都墨田区墨田5丁目
|
| 物件種目 |
賃貸マンション |
| 賃料 |
10.5万円 |
管理費等 |
18,000円 |
| 敷金 / 保証金 |
なし / なし |
礼金 |
なし |
| 敷引 |
- |
保証金償却 |
- |
| その他一時金 |
なし |
保険等 |
要 |
| 維持費等 |
- |
クレジットカード決済 |
初期費用可 |
| 間取り |
1DK(洋室4.3帖 DK6.8帖) |
専有面積 |
26.39m² |
| 築年月 |
2022年3月(築3年10ヶ月)
|
階建 / 階 |
7階建 / 1階 |
| 建物構造 |
RC |
総戸数 |
- |
| 主要採光面 |
東 |
駐車場 |
- |
| バイク置き場 |
- |
駐輪場 |
有 |
| 建物名・部屋番号 |
ラフィスタ墨田5丁目II 107 |
ペット |
小型犬可・ 猫可 |
| アピールポイント |
☆初期費用・設備の詳細情報、ご来店予約をお急ぎのお客様は03-6859-2555までお気軽にお電話下さいませ♪ご提案、内見手配、ご契約まで女性専任スタッフによる安心安全のお部屋探しも実施しております☆ |
| リフォーム履歴 |
- |
| リノベーション履歴 |
- |
| 備考 |
賃貸保証等:加入要(初回総賃料の30%~50%。1年毎に10000円。)
管理形態/管理員の勤務形態:-/-
フリーレント:1ヶ月(賃料のみ)
IT重説対応物件
フリーレント1ヶ月分(賃料のみ)。要保険加入。鍵交換代22000円。ペット飼育時:犬の場合は共益費+3000円、猫の場合は共益費+10000円※犬・猫いずれか1匹(成長時50cm以下、10kg以下)。1年未満の解約で総賃料1ヶ月分+フリーレント分の違約金。ペット飼育時礼金25000円増額。
|
| エネルギー消費性能 |
- |
| 断熱性能 |
- |
| 目安光熱費 |
- |
| バス・トイレ |
バス・トイレ別、浴室乾燥機、洗面所独立、洗面台、シャワー、温水洗浄便座、トイレ |
| キッチン |
システムキッチン、2口コンロ、ガスコンロ付、ガスコンロ可 |
| セキュリティー |
モニター付オートロック、オートロック、モニター付インターホン |
| 収納 |
収納スペース、クローゼット、シューズボックス |
| 設備・サービス |
室内洗濯機置場、給湯、フローリング、都市ガス、エアコン |
| TV・通信 |
インターネット対応、インターネット使用料無料、光ファイバー、CS、BS端子 |
| その他 |
宅配BOX、バルコニー、駐輪場、エレベーター |
| 契約期間 |
2年 |
現況 |
空家 |
| 条件等 |
- |
入居可能時期 |
即時 |
| 更新料 |
新賃料 1.5ヶ月 |
物件番号 |
1124420609 |
| 情報公開日 |
2025年12月13日 |
次回更新予定日 |
2025年12月27日 |
| ケータイ用バーコード |
- スマートフォンでこの物件を見る
- スマートフォンからもこの物件をご覧になれます。
|
※「-」と表示されている項目については、情報提供会社にご確認ください。
| 周辺施設 |
まいばすけっと堤通2丁目店 |
| 距離 |
320m |
写真を見る |
| 周辺施設 |
ファミリーマート/鐘ヶ淵駅前店 |
| 距離 |
70m |
写真を見る |
| 周辺施設 |
ララテラス南千住 |
| 距離 |
2760m |
写真を見る |
| 周辺施設 |
東京リバーサイド病院 |
| 距離 |
2190m |
写真を見る |
| 周辺施設 |
あおやぎ保育園 |
| 距離 |
1020m |
写真を見る |
| 周辺施設 |
墨田区立隅田小学校 |
| 距離 |
380m |
写真を見る |
| 周辺施設 |
鐘ヶ淵駅前交番 |
| 距離 |
100m |
写真を見る |
ここから簡単にお問い合わせをすることができます。
(SSLでの暗号化での送信を希望されるお客さまは
こちら
よりお問い合わせください)
お問い合わせを行う前に
「個人情報の取り扱いについて」を必ずお読みください。
「個人情報の取り扱いについて」に同意いただいた場合は「上記にご同意の上 確認画面へ進む」のボタンをクリックしてください。
個人情報の取り扱いについて
皆さまが送付された個人情報はアットホーム(株)のサーバを経由し、お問い合わせ先の不動産会社にメールまたはFAXにて転送されるためアットホーム(株)にも保管されます。アットホーム(株)で保管された個人情報の取り扱いについては、【こちら】をご覧ください。
また、本画面でご記入いただいた個人情報は、お問い合わせ先の不動産会社でも保管します。 お問い合わせ先の不動産会社が保管する個人情報の取り扱いについては、不動産会社に直接お問い合わせください。
国土交通大臣免許(2)第9556号 |
|---|
- 交通:
- 東京メトロ半蔵門線/押上駅 徒歩1分
- 東京都墨田区押上1丁目23-2 ForestVillage1階
- TEL:
- 03-6859-2555
- FAX:
- 03-6859-2556
- 所属団体:
- (公財)日本賃貸住宅管理協会会員(公社)全日本不動産協会会員(公社)首都圏不動産公正取引協議会加盟
取引態様:仲介  - 00275928
|
- スマートフォンで
この不動産会社を見る

|
- 提携サイト等より掲載されている物件情報につきましては、不動産会社詳細情報にリンクされていないものがあります。
- 物件に関するお問合せは、物件詳細ページの「情報提供会社」に表示されている不動産会社へ直接お願いいたします。
- 間取図は、現況を優先させていただきます。
- 映像は物件の一部を撮影したものです。物件の契約にあたっての最終判断はご自身の判断に基づいて行ってください。
- 仲介手数料について

アットホームは物件情報の適正化に努めております。
内容に誤りがある場合にはこちらへご連絡ください。