東京都千代田区神田東松下町(神田駅)の賃貸:物件詳細
交通 所在地 |
駅徒歩 |
賃料 管理費等 |
敷金/保証金 礼金 |
間取り 面積 |
物件種目 築年月 |
|
JR山手線/神田
東京都千代田区神田東松下町
|
6分
|
38万円
10,000円
|
1ヶ月 / なし
1ヶ月
|
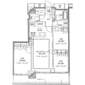
3LDK
67.09m²
|
賃貸マンション
2018年4月(築8年)
|
分譲タイプ、フロントサービス、常時ゴミ出し可能、24時間セキュリティー、24時間換気システム、IT重説対応物件
|
|
間取図
|
外観
|
<
その他の画像
>
|
| 交通 | JR山手線 神田駅 徒歩6分 |
|---|
| その他の交通 | JR総武線 秋葉原駅 徒歩5分 都営新宿線 岩本町駅 徒歩2分 |
| 所在地 |
東京都千代田区神田東松下町
|
| 物件種目 |
賃貸マンション |
| 賃料 |
38万円 |
管理費等 |
10,000円 |
| 敷金 / 保証金 |
1ヶ月 / なし |
礼金 |
1ヶ月 |
| 敷引 |
- |
保証金償却 |
- |
| その他一時金 |
鍵交換代:36,300円、管理サポート料:26,000円 |
保険等 |
要 2年 26,000円 |
| 維持費等 |
- |
クレジットカード決済 |
初期費用可 |
| 間取り |
3LDK(洋室6.6畳/洋室4.1畳/洋室4畳/LDK14.5畳) |
専有面積 |
67.09m² |
| 築年月 |
2018年4月(築8年)
|
階建 / 階 |
25階建 / 8階 |
| 建物構造 |
RC |
総戸数 |
- |
| 主要採光面 |
西 |
駐車場 |
- |
| バイク置き場 |
- |
駐輪場 |
有 |
| 建物名・部屋番号 |
アルファグランデ千桜タワー |
ペット |
-
|
| アピールポイント |
千代田小学校学区域/駐車場:要確認/東京の高級賃貸や高級不動産の仲介・管理・売買をお探しの方は、高級物件専門のプライムコーポレーションへお気軽にご相談下さい。分譲賃貸マンション、戸建、テラスハウス、タワーマンション、デザイナーズ物件などの豊富なファミリー物件情報を取り揃えております。海外転勤・国内転勤・条件交渉等お任せ下さい。オンライン内見・オンライン契約対応可能です。 |
| リフォーム履歴 |
- |
| リノベーション履歴 |
- |
| 備考 |
賃貸保証等:加入要(初回保証委託料:家賃総額の60%、継続保証委託料:年額12,000円)
管理形態/管理員の勤務形態:-/-
IT重説対応物件
|
| エネルギー消費性能 |
- |
| 断熱性能 |
- |
| 目安光熱費 |
- |
| バス・トイレ |
浴室乾燥機、追焚機能、洗面所独立、温水洗浄便座 |
| キッチン |
カウンターキッチン、システムキッチン、食器洗浄乾燥機、ディスポーザー、3口以上コンロ、ガスコンロ付 |
| セキュリティー |
モニター付オートロック、オートロック、モニター付インターホン、防犯カメラ |
| 収納 |
全居室収納、収納スペース、トランクルーム、シューズインクローゼット、シューズボックス |
| 設備・サービス |
室内洗濯機置場、フローリング、都市ガス、エアコン |
| TV・通信 |
インターネット使用料無料 |
| その他 |
宅配BOX、バルコニー、駐輪場、エレベーター |
| 契約期間 |
2年 |
現況 |
居住中 |
| 条件等 |
- |
入居可能時期 |
2026年4月中旬予定 |
| 更新料 |
新賃料 1ヶ月 |
物件番号 |
1124666917 |
| 情報公開日 |
2026年2月28日 |
次回更新予定日 |
2026年3月14日 |
| ケータイ用バーコード |
- スマートフォンでこの物件を見る
- スマートフォンからもこの物件をご覧になれます。
|
※「-」と表示されている項目については、情報提供会社にご確認ください。
| 周辺施設 |
千代田区立千代田小学校 |
| 距離 |
647m |
写真を見る |
| 周辺施設 |
まいばすけっと 岩本町駅南店 |
| 距離 |
62m |
写真を見る |
| 周辺施設 |
スリーエイト 神田東店 |
| 距離 |
110m |
写真を見る |
| 周辺施設 |
ミニストップ 神田富山町店 |
| 距離 |
139m |
写真を見る |
| 周辺施設 |
神田須田町郵便局 |
| 距離 |
156m |
写真を見る |
| 周辺施設 |
マツモトキヨシ 岩本町駅前店 |
| 距離 |
242m |
写真を見る |
ここから簡単にお問い合わせをすることができます。
(SSLでの暗号化での送信を希望されるお客さまは
こちら
よりお問い合わせください)
お問い合わせを行う前に
「個人情報の取り扱いについて」を必ずお読みください。
「個人情報の取り扱いについて」に同意いただいた場合は「上記にご同意の上 確認画面へ進む」のボタンをクリックしてください。
個人情報の取り扱いについて
皆さまが送付された個人情報はアットホーム(株)のサーバを経由し、お問い合わせ先の不動産会社にメールまたはFAXにて転送されるためアットホーム(株)にも保管されます。アットホーム(株)で保管された個人情報の取り扱いについては、【こちら】をご覧ください。
また、本画面でご記入いただいた個人情報は、お問い合わせ先の不動産会社でも保管します。 お問い合わせ先の不動産会社が保管する個人情報の取り扱いについては、不動産会社に直接お問い合わせください。
東京都知事免許(4)第86964号 |
|---|
- 交通:
- JR山手線/新橋駅 徒歩4分
- 東京都港区新橋3丁目7-3 ステージ新橋4階
- TEL:
- 03-5157-2525
- FAX:
- 03-5157-2526
- 所属団体:
- (公社)東京都宅地建物取引業協会会員(公社)首都圏不動産公正取引協議会加盟
取引態様:仲介  - 00265554
|
- スマートフォンで
この不動産会社を見る

|
- 提携サイト等より掲載されている物件情報につきましては、不動産会社詳細情報にリンクされていないものがあります。
- 物件に関するお問合せは、物件詳細ページの「情報提供会社」に表示されている不動産会社へ直接お願いいたします。
- 間取図は、現況を優先させていただきます。
- 映像は物件の一部を撮影したものです。物件の契約にあたっての最終判断はご自身の判断に基づいて行ってください。
- 仲介手数料について

アットホームは物件情報の適正化に努めております。
内容に誤りがある場合にはこちらへご連絡ください。