不動産 賃貸 マンション等の住宅情報:埼玉住まい情報


東京都文京区千石4丁目(千石駅)の賃貸:物件詳細

  • 物件詳細
  • 情報の見方
  • 印刷用画面
交通
所在地
駅徒歩 賃料
管理費等
敷金/保証金
礼金
間取り
面積
物件種目
築年月

都営三田線/千石

東京都文京区千石4丁目

6分

15.9万円

18,000円

なし / なし

なし

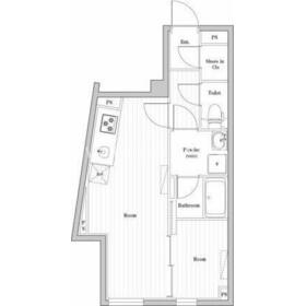
1LDK

29.63m²

賃貸マンション

2025年11月
新築 

おすすめPOINTペット相談、フリーレント、IT重説対応物件、保証人不要

おすすめコメント  スタッフ: E.Y

収納はクロゼット・シューズボックスなど豊富なので、広々と空間を利用することも可能です。洗面化粧台がついており、効率よく身だしなみを整えられます。

間取図

間取図

外観

外観

<
その他の画像
  • エントランス
  • 設備
  • その他
  • 収納
  • 室内
  • リビング
  • キッチン
  • バス/シャワー
  • 玄関
  • トイレ
  • 洗面
  • 収納
  • その他
  • 販売店
  • ショッピング施設
  • コンビニ
  • その他
  • 公園
>
    • とりあえず保存
    • お問い合わせ
    交通

    都営三田線 千石駅 徒歩6分

    その他の交通

    JR山手線 巣鴨駅 徒歩8分

    東京メトロ南北線 駒込駅 徒歩15分

    所在地 東京都文京区千石4丁目
    物件種目 賃貸マンション
    賃料 15.9万円 管理費等 18,000円
    敷金 / 保証金 なし / なし 礼金 なし
    敷引 保証金償却
    その他一時金 なし 保険等 要 2年 23,000円
    維持費等
    間取り 1LDK 専有面積 29.63m²
    築年月 2025年11月 新築  階建 / 階 5階建 / 1階
    建物構造 RC 総戸数
    主要採光面 北西 駐車場
    バイク置き場 駐輪場
    建物名・部屋番号 EDIT文京千石Ⅱ 101 ペット 相談
    リフォーム履歴
    リノベーション履歴
    備考
    賃貸保証等:加入要(初回保証料:50%から(最低5万円) 更新保証料:10000円から 口座振替手数料:660円)
    管理形態/管理員の勤務形態:-/-
    フリーレント:1ヶ月(フリーレント1ヶ月)
    IT重説対応物件
    お車でご案内いたします。お気軽にお問い合わせください。
    ◆退去時の室内清掃費用・エアコン洗浄費用は借主様の実費負担になります◆フリーレント1ヶ月◆引越し業者指定有・引越しに関する特約事項あり◆6か月未満解約の場合、総賃料の1か月分及びFR相当分、1年未満解約の場合総賃料の1か月分の短期解約違約金あり◆ペット相談可:敷金1ヶ月追加(預り)※犬・猫いずれか1匹(成長時体長50cm以下、体重10kg以下)◆解約予告2か月前
    エネルギー消費性能
    断熱性能
    目安光熱費
    バス・トイレ バス・トイレ別、シャワー、温水洗浄便座、トイレ
    キッチン システムキッチン、IHクッキングヒーター、3口以上コンロ
    セキュリティー モニター付オートロック、オートロック、モニター付インターホン
    収納 収納スペース、シューズインクローゼット、クローゼット、シューズボックス
    設備・サービス エアコン2台以上、室内洗濯機置場、洗濯機置場、都市ガス給湯、給湯、全居室フローリング、フローリング、都市ガス、エアコン
    TV・通信 インターネット対応、インターネット使用料無料、CS、BS端子
    その他 宅配BOX、駐輪場、エレベーター
    契約期間 2年 現況 空家
    条件等 入居可能時期 即時
    更新料 新賃料 1ヶ月 物件番号 1124984219
    情報公開日 2025年12月7日 次回更新予定日 2026年3月31日
    ケータイ用バーコード

    QRコード

    スマートフォンでこの物件を見る
    スマートフォンからもこの物件をご覧になれます。
    ※「-」と表示されている項目については、情報提供会社にご確認ください。

    この物件の周辺情報

    周辺施設 maruetsu(マルエツ) プチ 千石店
    距離 424m
    周辺施設 アトレヴィ巣鴨
    距離 685m
    周辺施設 ローソンストア100 LS文京千石四丁目店
    距離 242m
    周辺施設 護国寺
    距離 2052m
    周辺施設 千石緑地
    距離 350m

    クイックお問い合わせ

    ここから簡単にお問い合わせをすることができます。
    (SSLでの暗号化での送信を希望されるお客さまは こちら よりお問い合わせください)

    お問い合わせ内容(必須)
    お名前(必須) 姓  名 
    メールアドレス(必須)
    ※携帯電話のメールアドレスをご入力される方はこちらをご確認ください
    電話番号(必須)
    - -

    ※入力いただいた電話番号へSMSまたは音声でパスワードをご連絡します。

    携帯電話の番号をご入力の方へ

    携帯電話の番号をご入力の方へ
    確認画面にて送信ボタンをクリックするとSMSが携帯電話に届きます。
    そのSMSに記載のパスワード(認証番号)を入力し、お問い合わせを完了してください。
    尚、SMSの送信者番号は 0005 202 760 となります。
    これはアットホームの固定番号です。

    備考欄 希望条件、物件案内希望日、質問などがございましたらご記入ください。
    お問い合わせを行う前に「個人情報の取り扱いについて」を必ずお読みください。
    「個人情報の取り扱いについて」に同意いただいた場合は「上記にご同意の上 確認画面へ進む」のボタンをクリックしてください。

    個人情報の取り扱いについて

    皆さまが送付された個人情報はアットホーム(株)のサーバを経由し、お問い合わせ先の不動産会社にメールまたはFAXにて転送されるためアットホーム(株)にも保管されます。アットホーム(株)で保管された個人情報の取り扱いについては、【こちら】をご覧ください。
    また、本画面でご記入いただいた個人情報は、お問い合わせ先の不動産会社でも保管します。 お問い合わせ先の不動産会社が保管する個人情報の取り扱いについては、不動産会社に直接お問い合わせください。

    情報提供会社

    情報提供会社

    ハウス・トゥ・ハウス・ネットサービス(株) 駒込店

    国土交通大臣免許(4)第7400号

    交通:
    JR山手線/駒込駅 徒歩1分
    東京都文京区本駒込6丁目24-4 アヴァンツァーレ文京本駒込
    TEL:
    03-5981-7077
    FAX:
    03-5981-7078
    所属団体:
    (公社)全日本不動産協会会員
    (公社)首都圏不動産公正取引協議会加盟

    取引態様:仲介

    • 会社情報
    • 00277080
    スマートフォンで
    この不動産会社を見る
    QRコード
    • とりあえず保存
    • お問い合わせ
    • 提携サイト等より掲載されている物件情報につきましては、不動産会社詳細情報にリンクされていないものがあります。
    • 物件に関するお問合せは、物件詳細ページの「情報提供会社」に表示されている不動産会社へ直接お願いいたします。
    • 間取図は、現況を優先させていただきます。
    • 映像は物件の一部を撮影したものです。物件の契約にあたっての最終判断はご自身の判断に基づいて行ってください。
    • 仲介手数料について仲介手数料

    アットホームは物件情報の適正化に努めております。 内容に誤りがある場合にはこちらへご連絡ください。

    【埼玉住まい情報】では、日本全国の物件から賃貸マンションや賃貸アパート・賃貸一戸建て等の賃貸住宅情報、新築マンション・分譲マンションや中古マンション等の売買マンション情報、新築一戸建てや中古一戸建てなどの戸建住宅、 土地など、総合的な不動産住宅情報検索サービスを提供致します。
    【埼玉住まい情報】から、選りすぐりの不動産物件を探してみましょう。

    【免責事項】
    このコーナーの運営はアットホーム株式会社(https://www.athome.co.jp/)が行っています。
    このコーナーに掲載している物件情報は、「アットホーム不動産情報ネットワーク」に加盟する不動産会社等(情報提供元)から提供されています。信頼性の高い情報提供が行えるよう、最大限の努力をしておりますが、その内容を保証するものではありません。 利用者のみなさまと各情報提供元との取引に起因する損害および情報が掲載されたことに起因する損害等については、株式会社イーシティ埼玉、およびアットホームは一切責任を負いません。
    各物件情報の内容や画像等はすべて現況を優先させていただきます。
    お取引等(お取引の準備、資金調達等を含みます)の際には、内容や契約条件等について、各情報提供元より十分な説明を受け、ご自身でご確認の上、判断してください。
    このコーナーへの物件情報のご掲載、その他不動産業務ソリューション等についての不動産会社様のお問合せはこちらからお願いいたします。

    物件画像: