東京都中野区上高田1丁目(新井薬師前駅)の賃貸:物件詳細
交通 所在地 |
駅徒歩 |
賃料 管理費等 |
敷金/保証金 礼金 |
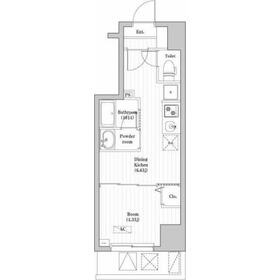
間取り 面積 |
物件種目 築年月 |
|
西武新宿線/新井薬師前
東京都中野区上高田1丁目
|
7分
|
12.9万円
9,000円
|
なし / なし
1ヶ月
|
1DK
26.01m²
|
賃貸マンション
2024年3月(築1年9ヶ月)
|
ペット相談、デザイナーズ、24時間換気システム、閑静な住宅街、外観タイル張り、IT重説対応物件、保証人不要
|
|
間取図
|
外観
|
<
その他の画像
>
|
| 交通 | 西武新宿線 新井薬師前駅 徒歩7分 |
|---|
| その他の交通 | 都営大江戸線 東中野駅 徒歩14分 東京メトロ東西線 落合駅 徒歩12分 |
| 所在地 |
東京都中野区上高田1丁目
|
| 物件種目 |
賃貸マンション |
| 賃料 |
12.9万円 |
管理費等 |
9,000円 |
| 敷金 / 保証金 |
なし / なし |
礼金 |
1ヶ月 |
| 敷引 |
- |
保証金償却 |
- |
| その他一時金 |
入居中サポート:16,500円、鍵交換代等:22,000円~ |
保険等 |
要 2年 23,000円 |
| 維持費等 |
- |
| 間取り |
1DK(洋室4.3帖 DK6.6帖) |
専有面積 |
26.01m² |
| 築年月 |
2024年3月(築1年9ヶ月)
|
階建 / 階 |
7階建 / 5階 |
| 建物構造 |
RC |
総戸数 |
- |
| 主要採光面 |
北 |
駐車場 |
無 |
| バイク置き場 |
無 |
駐輪場 |
有 |
| 建物名・部屋番号 |
中野新井薬師レジデンス 504 |
ペット |
相談 |
| アピールポイント |
杉並区・中野区・練馬区・武蔵野市・三鷹市周辺のエリアの情報が豊富にございます。ぜひお問い合わせをお待ちしております。 |
| リフォーム履歴 |
- |
| リノベーション履歴 |
- |
| 備考 |
賃貸保証等:利用可(賃貸保証料:0.30ヶ月 総賃料30%)
管理形態/管理員の勤務形態:-/-
IT重説対応物件
☆お部屋探しはタウンハウジングへ☆
*1年未満の解約の場合、違約金1か月。
|
| エネルギー消費性能 |
- |
| 断熱性能 |
- |
| 目安光熱費 |
- |
| バス・トイレ |
バス・トイレ別、浴室暖房、浴室乾燥機、シャワー付洗面化粧台、洗面所独立、洗面所、洗面台、シャワー、温水洗浄便座、トイレ |
| キッチン |
システムキッチン、2口コンロ、ガスコンロ付 |
| セキュリティー |
モニター付オートロック、オートロック、モニター付インターホン |
| 収納 |
収納スペース、クローゼット、シューズボックス |
| 設備・サービス |
室内洗濯機置場、全居室フローリング、フローリング、エアコン、照明器具 |
| TV・通信 |
インターネット対応、インターネット使用料無料、ケーブルTV、CS、BS端子 |
| その他 |
宅配BOX、バルコニー、駐輪場、エレベーター |
| 契約期間 |
2年 |
現況 |
居住中 |
| 条件等 |
- |
入居可能時期 |
指定有り2025年12月26日 |
| 仲介手数料 |
1.1ヶ月 |
|
|
| 更新料 |
新賃料 1ヶ月 |
物件番号 |
1125356202 |
| 情報公開日 |
2025年11月1日 |
次回更新予定日 |
2025年11月15日 |
| ケータイ用バーコード |
- スマートフォンでこの物件を見る
- スマートフォンからもこの物件をご覧になれます。
|
※「-」と表示されている項目については、情報提供会社にご確認ください。
| 周辺施設 |
マックスバリュエクスプレス落合駅前店 |
| 距離 |
1000m |
写真を見る |
| 周辺施設 |
コモディイイダ中野店 |
| 距離 |
370m |
写真を見る |
| 周辺施設 |
デイリーヤマザキ |
| 距離 |
260m |
写真を見る |
| 周辺施設 |
島忠中野店 |
| 距離 |
1030m |
写真を見る |
| 周辺施設 |
セブンイレブン中野上高田2丁目店 |
| 距離 |
290m |
写真を見る |
| 周辺施設 |
谷中銀座商店街 |
| 距離 |
8860m |
写真を見る |
| 周辺施設 |
ドラッグストアスマイル新井薬師店 |
| 距離 |
650m |
写真を見る |
ここから簡単にお問い合わせをすることができます。
(SSLでの暗号化での送信を希望されるお客さまは
こちら
よりお問い合わせください)
お問い合わせを行う前に
「個人情報の取り扱いについて」を必ずお読みください。
「個人情報の取り扱いについて」に同意いただいた場合は「上記にご同意の上 確認画面へ進む」のボタンをクリックしてください。
個人情報の取り扱いについて
皆さまが送付された個人情報はアットホーム(株)のサーバを経由し、お問い合わせ先の不動産会社にメールまたはFAXにて転送されるためアットホーム(株)にも保管されます。アットホーム(株)で保管された個人情報の取り扱いについては、【こちら】をご覧ください。
また、本画面でご記入いただいた個人情報は、お問い合わせ先の不動産会社でも保管します。 お問い合わせ先の不動産会社が保管する個人情報の取り扱いについては、不動産会社に直接お問い合わせください。
国土交通大臣免許(1)第9926号 |
|---|
- 交通:
- JR中央線/荻窪駅 徒歩3分
- 東京都杉並区荻窪5丁目14-13 101号室
- TEL:
- 03-3220-7700
- FAX:
- 03-3220-7701
- 所属団体:
- 所属団体未加入会員
取引態様:仲介  - 00268143
|
- スマートフォンで
この不動産会社を見る

|
- 提携サイト等より掲載されている物件情報につきましては、不動産会社詳細情報にリンクされていないものがあります。
- 物件に関するお問合せは、物件詳細ページの「情報提供会社」に表示されている不動産会社へ直接お願いいたします。
- 間取図は、現況を優先させていただきます。
- 映像は物件の一部を撮影したものです。物件の契約にあたっての最終判断はご自身の判断に基づいて行ってください。
- 仲介手数料について

アットホームは物件情報の適正化に努めております。
内容に誤りがある場合にはこちらへご連絡ください。