東京都文京区湯島3丁目(御茶ノ水駅)の賃貸:物件詳細
交通 所在地 |
駅徒歩 |
賃料 管理費等 |
敷金/保証金 礼金 |
間取り 面積 |
物件種目 築年月 |
JR中央線/御茶ノ水
東京都文京区湯島3丁目
|
8分
|
31.4万円
12,000円
|
1ヶ月 / なし
1ヶ月
|
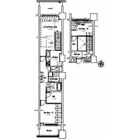
2SLDK
76.22m²
|
賃貸マンション
2006年2月(築19年9ヶ月)
|
ペット相談、楽器相談、常時ゴミ出し可能、高齢者相談、二人入居可、24時間換気システム、IT重説対応物件
|
間取図
|
外観
|
<
その他の画像
>
|
交通 | JR中央線 御茶ノ水駅 徒歩8分 |
---|
その他の交通 | JR山手線 秋葉原駅 徒歩13分 東京メトロ銀座線 末広町駅 徒歩6分 |
所在地 |
東京都文京区湯島3丁目
|
物件種目 |
賃貸マンション |
賃料 |
31.4万円 |
管理費等 |
12,000円 |
敷金 / 保証金 |
1ヶ月 / なし |
礼金 |
1ヶ月 |
敷引 |
- |
保証金償却 |
- |
その他一時金 |
室内清掃費用:142,531円、鍵交換代等:16,500円~ |
保険等 |
要 2年 20,000円 |
維持費等 |
口座振替事務手数料():110円/月 |
クレジットカード決済 |
初期費用可 |
間取り |
2SLDK |
専有面積 |
76.22m² |
築年月 |
2006年2月(築19年9ヶ月)
|
階建 / 階 |
地上13階地下2階建 / 1階 |
建物構造 |
RC |
総戸数 |
- |
主要採光面 |
北 |
駐車場 |
- |
バイク置き場 |
- |
駐輪場 |
- |
建物名・部屋番号 |
パークアクシス御茶ノ水ステージ |
ペット |
相談 |
アピールポイント |
室内設備はCATV・エアコン・追い焚きなど大変充実しております。ペットの飼育が可能かどうかを事前にご相談いただけます。楽器が使える楽しいお住まい、楽器の相談にも応じます。駐輪場付きのマンションです。洗濯物も自然乾燥ですぐ乾く通風良好な間取りのマンション。地上13階建てのマンションです。こちらのお部屋で新しい生活を始めてみませんか。不審者対策として心強い防犯カメラが備えられています。 |
リフォーム履歴 |
- |
リノベーション履歴 |
- |
備考 |
賃貸保証等:加入要([保証会社]加入要[保証会社名]レジデントアシスタンス株式会社[保証会社利用料]初回保証委託料(最低20,000円):月額賃料等の50%、 2年目以降:9,600円\\/年)
管理形態/管理員の勤務形態:-/日勤
IT重説対応物件、管理人日勤
※1年未満解約時違約金有★同タイプ・別階の内観写真を掲載している場合があります。図面と現況が異なる場合は現況を優先いたします。
収納はクロゼット・シューズボックス・全居室収納などが備え付けられているので、衣類や日用品の収納に重宝します。共用部にはゴミ出し24時間OK・宅配ボックスなどが揃っており、とても充実しています。室内設備は洗面化粧台・浴室乾燥機などが揃っているので、快適に過ごしやすいお部屋になります。セキュリティ面は、TVインターホン・オートロックなど充実しているので安心して生活できます。2025年12月という入居期日指定はあるものの、非常に好条件の物件となっております。システムキッチンはシンクやコンロ、作業台などが一体化しているので、掃除がしやすい構造になっています。是非ご覧ください13階建ての高層建築。全居室フローリングなので、水をこぼしても染みないのが魅力です。様々な番組が視聴できるBS・CSへの加入で、娯楽も充実します。このマンションはCATV対応の為、簡単な契約で視聴可能です。こちらの物件はマンションです。
|
エネルギー消費性能 |
- |
断熱性能 |
- |
目安光熱費 |
- |
バス・トイレ |
バス・トイレ別、浴室乾燥機、追焚機能、洗面所独立、洗面所、シャワー、温水洗浄便座、トイレ |
キッチン |
システムキッチン、独立型キッチン、3口以上コンロ、ガスコンロ可、グリル |
セキュリティー |
モニター付オートロック、オートロック、モニター付インターホン、ディンプルキー、ダブルロックドア、防犯カメラ |
収納 |
全居室収納、収納スペース、クローゼット、シューズボックス |
設備・サービス |
床暖房、室内洗濯機置場、洗濯機置場、全居室フローリング、フローリング、都市ガス、エアコン、暖房、冷房 |
TV・通信 |
インターネット対応、光ファイバー、ケーブルTV、CS、BS端子 |
その他 |
宅配BOX、エレベーター2基以上、バルコニー、エレベーター |
契約期間 |
2年 |
現況 |
居住中 |
条件等 |
- |
入居可能時期 |
2025年12月中旬予定 |
更新料 |
新賃料 1ヶ月 |
物件番号 |
1125620415 |
情報公開日 |
2025年10月3日 |
次回更新予定日 |
2025年10月17日 |
ケータイ用バーコード |
- スマートフォンでこの物件を見る
- スマートフォンからもこの物件をご覧になれます。
|
※「-」と表示されている項目については、情報提供会社にご確認ください。
周辺施設 |
ピーコックストア 神田妻恋坂店 |
距離 |
320m |
写真を見る |
周辺施設 |
セブンイレブン 文京湯島2丁目店 |
距離 |
82m |
写真を見る |
周辺施設 |
セブンイレブン 外神田2丁目妻恋坂店 |
距離 |
289m |
写真を見る |
周辺施設 |
ホームセンターコーナン ドイト後楽園店 |
距離 |
1675m |
写真を見る |
ここから簡単にお問い合わせをすることができます。
(SSLでの暗号化での送信を希望されるお客さまは
こちら
よりお問い合わせください)
お問い合わせを行う前に
「個人情報の取り扱いについて」を必ずお読みください。
「個人情報の取り扱いについて」に同意いただいた場合は「上記にご同意の上 確認画面へ進む」のボタンをクリックしてください。
個人情報の取り扱いについて
皆さまが送付された個人情報はアットホーム(株)のサーバを経由し、お問い合わせ先の不動産会社にメールまたはFAXにて転送されるためアットホーム(株)にも保管されます。アットホーム(株)で保管された個人情報の取り扱いについては、【こちら】をご覧ください。
また、本画面でご記入いただいた個人情報は、お問い合わせ先の不動産会社でも保管します。 お問い合わせ先の不動産会社が保管する個人情報の取り扱いについては、不動産会社に直接お問い合わせください。
東京都知事免許(1)第109763号 |
---|
- 交通:
- 東京メトロ有楽町線/銀座一丁目駅 徒歩3分
- 東京都中央区銀座1丁目5-1 Holon GinzaⅡ
- TEL:
- 03-5962-8933
- FAX:
- 03-5962-8933
- 所属団体:
- (公社)東京都宅地建物取引業協会会員(公社)首都圏不動産公正取引協議会加盟
取引態様:仲介  - 00275939
|
- スマートフォンで
この不動産会社を見る

|
- 提携サイト等より掲載されている物件情報につきましては、不動産会社詳細情報にリンクされていないものがあります。
- 物件に関するお問合せは、物件詳細ページの「情報提供会社」に表示されている不動産会社へ直接お願いいたします。
- 間取図は、現況を優先させていただきます。
- 映像は物件の一部を撮影したものです。物件の契約にあたっての最終判断はご自身の判断に基づいて行ってください。
- 仲介手数料について

アットホームは物件情報の適正化に努めております。
内容に誤りがある場合にはこちらへご連絡ください。