東京都文京区湯島3丁目(御茶ノ水駅)の賃貸:物件詳細
交通 所在地 |
駅徒歩 |
賃料 管理費等 |
敷金/保証金 礼金 |
間取り 面積 |
物件種目 築年月 |
|
JR中央線/御茶ノ水
東京都文京区湯島3丁目
|
8分
|
31.4万円
12,000円
|
1ヶ月 / なし
1ヶ月
|
2SLDK
76.22m²
|
賃貸マンション
2006年2月(築19年11ヶ月)
|
ペット相談、楽器相談、常時ゴミ出し可能、高齢者相談、24時間換気システム、IT重説対応物件
|
|
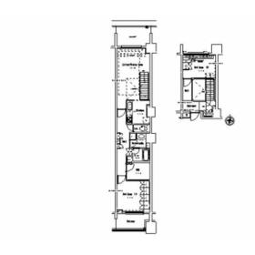
間取図
|
外観
外はこのようになっています
|
<
その他の画像
>
|
| 交通 | JR中央線 御茶ノ水駅 徒歩8分 |
|---|
| その他の交通 | JR山手線 秋葉原駅 徒歩13分 東京メトロ銀座線 末広町駅 徒歩6分 |
| 所在地 |
東京都文京区湯島3丁目
|
| 物件種目 |
賃貸マンション |
| 賃料 |
31.4万円 |
管理費等 |
12,000円 |
| 敷金 / 保証金 |
1ヶ月 / なし |
礼金 |
1ヶ月 |
| 敷引 |
- |
保証金償却 |
- |
| その他一時金 |
室内清掃費用:142,531円、鍵交換代等:16,500円~ |
保険等 |
要 |
| 維持費等 |
口座振替事務手数料:110円/月 |
| 間取り |
2SLDK(洋6.2、洋4.2、LDK16.6、S2.9) |
専有面積 |
76.22m² |
| 築年月 |
2006年2月(築19年11ヶ月)
|
階建 / 階 |
地上13階地下2階建 / 1階 |
| 建物構造 |
RC |
総戸数 |
- |
| 主要採光面 |
北 |
駐車場 |
近有 40,000円/月 |
| バイク置き場 |
- |
駐輪場 |
有 |
| 建物名・部屋番号 |
パークアクシス御茶ノ水ステージ |
ペット |
相談 |
| アピールポイント |
室内設備は浴室乾燥機・洗面所独立などが揃っており、とても充実しています。セキュリティ面は、オートロック・TVインターホンなど充実しているので安心して生活できます。共用部にはゴミ出し24時間OK・宅配ボックスなど様々な設備やサービスが揃っているので便利です。バルコニーの広さが6平米あるマンションです。このお部屋は76.22㎡です。ペットと一緒に暮らせるかどうかを事前にご相談いただける物件です。駅徒歩8分に駅が立地する物件なので、電車を多く利用する方にとって便利です。敷地内ごみ置き場が近くて便利。管理人さんがいることで空き巣等の犯罪防止につながるため、女性も安心して暮らすことができます。収納性に優れていてキッチン回りを綺麗に保ちやすくなるシステムキッチンが付いています。 |
| リフォーム履歴 |
- |
| リノベーション履歴 |
- |
| 備考 |
賃貸保証等:加入要(初回保証委託料(最低20,000円):月額賃料等の50%、 2年目以降:9,600円/年)
管理形態/管理員の勤務形態:-/日勤
バルコニー:6m²
IT重説対応物件、管理人日勤
共用部にはゴミ出し24時間OK・宅配ボックスなどが揃っております。セキュリティ面は、オートロック・TVインターホンなど充実しているので、防犯対策もばっちりです。室内設備は洗面化粧台・浴室乾燥機など充実した設備を備え付けています。共用部にゴミ置き場を備えているので、外部の人にごみを見られたりするリスクを減らせます。2025年12月の入居期日指定ですので、少々お待ちいただきます。清潔感を求める方に一押ししたい全居室フローリングです。楽しく快適に生活をしたい方は収納もたっぷりの2SLDKはいかがでしょうか。住みやすい環境が嬉しい賃貸物件です。周辺に駅が2つあるので電車での移動が便利です。バルコニー面積が6㎡の物件です。
|
| エネルギー消費性能 |
- |
| 断熱性能 |
- |
| 目安光熱費 |
- |
| バス・トイレ |
バス・トイレ別、浴室乾燥機、追焚機能、洗面所独立、洗面所、温水洗浄便座、トイレ |
| キッチン |
システムキッチン、独立型キッチン、ガスコンロ可、グリル |
| セキュリティー |
モニター付オートロック、オートロック、モニター付インターホン、防犯カメラ |
| 収納 |
収納スペース、クローゼット |
| 設備・サービス |
床暖房、室内洗濯機置場、洗濯機置場、全居室フローリング、フローリング、都市ガス、エアコン、暖房、冷房 |
| TV・通信 |
インターネット対応、CATVインターネット、ケーブルTV、CS、BS端子 |
| その他 |
宅配BOX、バルコニー、駐輪場、エレベーター |
| 契約期間 |
2年 |
現況 |
居住中 |
| 条件等 |
- |
入居可能時期 |
指定有り2025年12月15日 |
| 更新料 |
新賃料 1ヶ月 |
物件番号 |
1126437315 |
| 情報公開日 |
2025年10月17日 |
次回更新予定日 |
2025年12月12日 |
| ケータイ用バーコード |
- スマートフォンでこの物件を見る
- スマートフォンからもこの物件をご覧になれます。
|
※「-」と表示されている項目については、情報提供会社にご確認ください。
| 周辺施設 |
焼肉ジャンボ 本郷店 |
| 距離 |
716m |
写真を見る |
| 周辺施設 |
スターバックスコーヒー 本郷東大前店 |
| 距離 |
987m |
写真を見る |
| 周辺施設 |
肉のハナマサ 湯島店 |
| 距離 |
426m |
写真を見る |
| 周辺施設 |
WATERRAS COMMON(ワテラス コモン) |
| 距離 |
984m |
写真を見る |
| 周辺施設 |
大坪会(医療法人社団)東都文京病院 |
| 距離 |
59m |
写真を見る |
| 周辺施設 |
東京大学内郵便局 |
| 距離 |
949m |
写真を見る |
ここから簡単にお問い合わせをすることができます。
(SSLでの暗号化での送信を希望されるお客さまは
こちら
よりお問い合わせください)
お問い合わせを行う前に
「個人情報の取り扱いについて」を必ずお読みください。
「個人情報の取り扱いについて」に同意いただいた場合は「上記にご同意の上 確認画面へ進む」のボタンをクリックしてください。
個人情報の取り扱いについて
皆さまが送付された個人情報はアットホーム(株)のサーバを経由し、お問い合わせ先の不動産会社にメールまたはFAXにて転送されるためアットホーム(株)にも保管されます。アットホーム(株)で保管された個人情報の取り扱いについては、【こちら】をご覧ください。
また、本画面でご記入いただいた個人情報は、お問い合わせ先の不動産会社でも保管します。 お問い合わせ先の不動産会社が保管する個人情報の取り扱いについては、不動産会社に直接お問い合わせください。
東京都知事免許(1)第107337号 |
|---|
- 交通:
- JR山手線/新橋駅 徒歩5分
- 東京都中央区銀座8丁目11-1 GINZA GS BLD.2 7階
- TEL:
- 03-6281-4770
- FAX:
- 03-6281-4771
- 所属団体:
- (公社)東京都宅地建物取引業協会会員(公社)首都圏不動産公正取引協議会加盟
取引態様:仲介  - 00271811
|
- スマートフォンで
この不動産会社を見る

|
- 提携サイト等より掲載されている物件情報につきましては、不動産会社詳細情報にリンクされていないものがあります。
- 物件に関するお問合せは、物件詳細ページの「情報提供会社」に表示されている不動産会社へ直接お願いいたします。
- 間取図は、現況を優先させていただきます。
- 映像は物件の一部を撮影したものです。物件の契約にあたっての最終判断はご自身の判断に基づいて行ってください。
- 仲介手数料について

アットホームは物件情報の適正化に努めております。
内容に誤りがある場合にはこちらへご連絡ください。