東京都府中市是政1丁目(東府中駅)の賃貸:物件詳細
交通 所在地 |
駅徒歩 |
賃料 管理費等 |
敷金/保証金 礼金 |
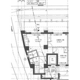
間取り 面積 |
物件種目 築年月 |
|
京王線/東府中
東京都府中市是政1丁目
|
10分
|
15.8万円
20,000円
|
なし / 1ヶ月
なし
|
2LDK
44.47m²
|
賃貸マンション
2026年3月
|
ペット相談、分譲タイプ、常時ゴミ出し可能、角部屋、最上階、ルームシェア可、二人入居可、2面採光、24時間換気システム、閑静な住宅街、IT重説対応物件、保証人不要
|
|
間取図
|
外観
|
<
その他の画像
>
|
| 交通 | 京王線 東府中駅 徒歩10分 |
|---|
| その他の交通 | 京王線 多磨霊園駅 徒歩13分 京王線 府中駅 徒歩25分 |
| 所在地 |
東京都府中市是政1丁目
|
| 物件種目 |
賃貸マンション |
| 賃料 |
15.8万円 |
管理費等 |
20,000円 |
| 敷金 / 保証金 |
なし / 1ヶ月 |
礼金 |
なし |
| 敷引 |
- |
保証金償却 |
- |
| その他一時金 |
なし |
保険等 |
不要 |
| 維持費等 |
- |
クレジットカード決済 |
初期費用可 |
| 間取り |
2LDK(洋室4畳/洋室5畳/LDK10畳) |
専有面積 |
44.47m² |
| 築年月 |
2026年3月
|
階建 / 階 |
6階建 / 6階 |
| 建物構造 |
RC |
総戸数 |
- |
| 主要採光面 |
西 |
駐車場 |
有 15,400円/月 |
| バイク置き場 |
有 |
駐輪場 |
有 |
| 建物名・部屋番号 |
|
ペット |
相談 |
| アピールポイント |
★京王線のペット可・デザイナーズ・保証人不要・敷0礼0など…諸条件なんでもご相談下さい。未公開物件・最新情報も弊社HPで随時公開中。レントハウス調布店までお問合せ下さい。042-490-5533★ |
| リフォーム履歴 |
- |
| リノベーション履歴 |
- |
| 備考 |
賃貸保証等:加入要(月額保証料 総賃料の1%(最低1000円)+決済サービス料500円(税別)初回保証料 総賃料の50% ※年間更新料なし)
管理形態/管理員の勤務形態:-/-
IT重説対応物件
(駐輪場 月/330円)
弊社が募集窓口ですので直接お問い合わせくださいませ★ペット飼育ご相談可、バイク置き場、機械式駐車場有(要問合せ)残りわずかです。お早目にお問い合わせくださいませ
|
| エネルギー消費性能 |
- |
| 断熱性能 |
- |
| 目安光熱費 |
- |
| バス・トイレ |
TV付浴室、バス・トイレ別、浴室乾燥機、オートバス、追焚機能、シャワー付洗面化粧台、洗面所独立、洗面台、シャワー、温水洗浄便座、トイレ |
| キッチン |
システムキッチン、3口以上コンロ、ガスコンロ付、グリル |
| セキュリティー |
モニター付オートロック、オートロック、モニター付インターホン、ディンプルキー、ダブルロックドア、防犯カメラ |
| 収納 |
収納スペース、クローゼット |
| 設備・サービス |
全居室エアコン、室内洗濯機置場、給湯、全居室フローリング、フローリング、都市ガス、エアコン、照明器具 |
| TV・通信 |
インターネット対応、インターネット使用料無料、光ファイバー、CS、BS端子 |
| その他 |
宅配BOX、バイク置き場、ルーフバルコニー、駐輪場、エレベーター |
| 契約期間 |
2年 |
現況 |
空家 |
| 条件等 |
- |
入居可能時期 |
即時 |
| 更新料 |
新賃料 1.5ヶ月 |
物件番号 |
1126609217 |
| 情報公開日 |
2026年3月5日 |
次回更新予定日 |
2026年4月2日 |
| ケータイ用バーコード |
- スマートフォンでこの物件を見る
- スマートフォンからもこの物件をご覧になれます。
|
※「-」と表示されている項目については、情報提供会社にご確認ください。
| 周辺施設 |
ファミリーマート 府中是政店 |
| 距離 |
196m |
写真を見る |
| 周辺施設 |
サミットストア 東府中店 |
| 距離 |
778m |
写真を見る |
| 周辺施設 |
ローソンストア100 LS府中清水が丘三丁目店 |
| 距離 |
980m |
写真を見る |
| 周辺施設 |
グリーン調剤薬局 |
| 距離 |
868m |
写真を見る |
| 周辺施設 |
府中市立府中第八小学校 |
| 距離 |
179m |
写真を見る |
| 周辺施設 |
府中白百合第二幼稚園 |
| 距離 |
145m |
写真を見る |
ここから簡単にお問い合わせをすることができます。
(SSLでの暗号化での送信を希望されるお客さまは
こちら
よりお問い合わせください)
お問い合わせを行う前に
「個人情報の取り扱いについて」を必ずお読みください。
「個人情報の取り扱いについて」に同意いただいた場合は「上記にご同意の上 確認画面へ進む」のボタンをクリックしてください。
個人情報の取り扱いについて
皆さまが送付された個人情報はアットホーム(株)のサーバを経由し、お問い合わせ先の不動産会社にメールまたはFAXにて転送されるためアットホーム(株)にも保管されます。アットホーム(株)で保管された個人情報の取り扱いについては、【こちら】をご覧ください。
また、本画面でご記入いただいた個人情報は、お問い合わせ先の不動産会社でも保管します。 お問い合わせ先の不動産会社が保管する個人情報の取り扱いについては、不動産会社に直接お問い合わせください。
東京都知事免許(6)第77443号 |
|---|
- 交通:
- 京王線/調布駅 徒歩1分
- 東京都調布市小島町2丁目51-9 高野ビル1F・4F
- TEL:
- 042-490-5533
- FAX:
- 042-490-5522
- 所属団体:
- (公社)東京都宅地建物取引業協会会員(公社)首都圏不動産公正取引協議会加盟
取引態様:仲介  - 00063168
|
- スマートフォンで
この不動産会社を見る

|
- 提携サイト等より掲載されている物件情報につきましては、不動産会社詳細情報にリンクされていないものがあります。
- 物件に関するお問合せは、物件詳細ページの「情報提供会社」に表示されている不動産会社へ直接お願いいたします。
- 間取図は、現況を優先させていただきます。
- 映像は物件の一部を撮影したものです。物件の契約にあたっての最終判断はご自身の判断に基づいて行ってください。
- 仲介手数料について

アットホームは物件情報の適正化に努めております。
内容に誤りがある場合にはこちらへご連絡ください。