東京都新宿区西新宿8丁目(西新宿駅)の賃貸:物件詳細
交通 所在地 |
駅徒歩 |
賃料 管理費等 |
敷金/保証金 礼金 |
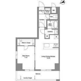
間取り 面積 |
物件種目 築年月 |
|
東京メトロ丸ノ内線/西新宿
東京都新宿区西新宿8丁目
|
5分
|
28.5万円
10,000円
|
1ヶ月 / なし
2ヶ月
|
1LDK
50.34m²
|
賃貸マンション
2025年8月
|
常時ゴミ出し可能、最上階、高齢者相談、二人入居可、24時間換気システム、IT重説対応物件
|
|
間取図
|
外観
|
<
その他の画像
>
|
| 交通 | 東京メトロ丸ノ内線 西新宿駅 徒歩5分 |
|---|
| その他の交通 | JR山手線 新宿駅 徒歩12分 都営大江戸線 新宿西口駅 徒歩11分 |
| 所在地 |
東京都新宿区西新宿8丁目
|
| 物件種目 |
賃貸マンション |
| 賃料 |
28.5万円 |
管理費等 |
10,000円 |
| 敷金 / 保証金 |
1ヶ月 / なし |
礼金 |
2ヶ月 |
| 敷引 |
- |
保証金償却 |
- |
| その他一時金 |
室内清掃費用:53,900円 |
保険等 |
要 2年 16,550円 |
| 維持費等 |
- |
クレジットカード決済 |
初期費用可 |
| 間取り |
1LDK(LDK13.8、洋7.2) |
専有面積 |
50.34m² |
| 築年月 |
2025年8月
|
階建 / 階 |
14階建 / 14階 |
| 建物構造 |
RC |
総戸数 |
- |
| 主要採光面 |
|
駐車場 |
無 |
| バイク置き場 |
無 |
駐輪場 |
有 |
| 建物名・部屋番号 |
PrimaStella |
ペット |
-
|
| アピールポイント |
室内設備は洗面所独立・浴室乾燥機など充実した設備を備え付けています。共用部には宅配ボックス・ゴミ出し24時間OKなどが備わっておりとても充実しています。セキュリティ面は、オートロック・TVインターホンなど充実しているので、防犯対策もばっちりです。収納はシューズボックス・クロゼットなど豊富なので、広々と空間を利用することも可能です。利便性の高い設備も充実の、快適に暮らすことのできる2025年築の物件です。駐輪場付きの物件です。多くの方にご好評の、BS対応の物件となっています。抗菌性に優れていて、扱いやすい材質のシステムキッチン付き。初期費用のカード決済ができます。14階建ての物件です。生活の安全を守ってくれる防犯カメラ付きの物件です。 |
| リフォーム履歴 |
- |
| リノベーション履歴 |
- |
| 備考 |
賃貸保証等:加入要(エポスカード(RP)保証料:賃料等の50%(最低2万)、月額保証料:賃料等の1%(更新料無))
管理形態/管理員の勤務形態:-/-
IT重説対応物件
★同タイプ・別階の内観写真を掲載している場合があります。図面と現況が異なる場合は現況を優先いたします。
室内設備は洗面所独立・浴室乾燥機など豊富に揃っており、過ごしやすいお部屋になっております。セキュリティ面は、オートロック・TVインターホンなどを備え付けているので安心して暮らせます。収納はウォークインクロゼット・シューズボックスなど豊富なので、衣類や履き物の整理がしやすく便利です。共用部には宅配ボックス・ゴミ出し24時間OKなどが揃っており、とても充実しています。全居室フローリングになっているので木の持つ風合いが楽しめます。清潔な敷地内ごみ置き場も用意されております。こちらでは14階のお部屋をご紹介しています。外装もおしゃれで快適な生活をおくることができるマンションです。防犯カメラが付いているので、犯罪の抑止や不法投棄などによる入居者同士のトラブルも防止できます。2025年築の物件で快適な住まいとなっています。バルコニー付きの物件でおすすめです。
|
| エネルギー消費性能 |
- |
| 断熱性能 |
- |
| 目安光熱費 |
- |
| バス・トイレ |
バス・トイレ別、浴室乾燥機、追焚機能、洗面所独立、洗面所、シャワー、温水洗浄便座、トイレ |
| キッチン |
カウンターキッチン、システムキッチン、3口以上コンロ、ガスコンロ可、グリル |
| セキュリティー |
モニター付オートロック、オートロック、モニター付インターホン、ダブルロックドア、防犯カメラ |
| 収納 |
ウォークインクローゼット、収納スペース、シューズインクローゼット、クローゼット、シューズボックス |
| 設備・サービス |
室内洗濯機置場、洗濯機置場、全居室フローリング、フローリング、都市ガス、エアコン、冷房 |
| TV・通信 |
インターネット対応、CS、BS端子 |
| その他 |
宅配BOX、バルコニー、駐輪場、エレベーター |
| 契約期間 |
2年 |
現況 |
空家 |
| 条件等 |
- |
入居可能時期 |
即時 |
| 更新料 |
- |
物件番号 |
1126707815 |
| 情報公開日 |
2025年10月4日 |
次回更新予定日 |
2025年10月27日 |
| ケータイ用バーコード |
- スマートフォンでこの物件を見る
- スマートフォンからもこの物件をご覧になれます。
|
※「-」と表示されている項目については、情報提供会社にご確認ください。
| 周辺施設 |
まいばすけっと 西新宿8丁目店 |
| 距離 |
143m |
写真を見る |
| 周辺施設 |
セブンイレブン 新宿グランドプラザ店 |
| 距離 |
382m |
写真を見る |
| 周辺施設 |
西新宿八郵便局 |
| 距離 |
201m |
写真を見る |
ここから簡単にお問い合わせをすることができます。
(SSLでの暗号化での送信を希望されるお客さまは
こちら
よりお問い合わせください)
お問い合わせを行う前に
「個人情報の取り扱いについて」を必ずお読みください。
「個人情報の取り扱いについて」に同意いただいた場合は「上記にご同意の上 確認画面へ進む」のボタンをクリックしてください。
個人情報の取り扱いについて
皆さまが送付された個人情報はアットホーム(株)のサーバを経由し、お問い合わせ先の不動産会社にメールまたはFAXにて転送されるためアットホーム(株)にも保管されます。アットホーム(株)で保管された個人情報の取り扱いについては、【こちら】をご覧ください。
また、本画面でご記入いただいた個人情報は、お問い合わせ先の不動産会社でも保管します。 お問い合わせ先の不動産会社が保管する個人情報の取り扱いについては、不動産会社に直接お問い合わせください。
東京都知事免許(1)第109763号 |
|---|
- 交通:
- 東京メトロ有楽町線/銀座一丁目駅 徒歩3分
- 東京都中央区銀座1丁目5-1 Holon GinzaⅡ
- TEL:
- 03-5962-8933
- FAX:
- 03-5962-8933
- 所属団体:
- (公社)東京都宅地建物取引業協会会員(公社)首都圏不動産公正取引協議会加盟
取引態様:仲介  - 00275939
|
- スマートフォンで
この不動産会社を見る

|
- 提携サイト等より掲載されている物件情報につきましては、不動産会社詳細情報にリンクされていないものがあります。
- 物件に関するお問合せは、物件詳細ページの「情報提供会社」に表示されている不動産会社へ直接お願いいたします。
- 間取図は、現況を優先させていただきます。
- 映像は物件の一部を撮影したものです。物件の契約にあたっての最終判断はご自身の判断に基づいて行ってください。
- 仲介手数料について

アットホームは物件情報の適正化に努めております。
内容に誤りがある場合にはこちらへご連絡ください。