兵庫県明石市大久保町西脇(大久保駅)の賃貸:物件詳細
交通 所在地 |
駅徒歩 |
賃料 管理費等 |
敷金/保証金 礼金 |
間取り 面積 |
物件種目 築年月 |
JR山陽本線/大久保
兵庫県明石市大久保町西脇
|
19分
|
7万円
5,000円
|
なし / なし
1ヶ月
|
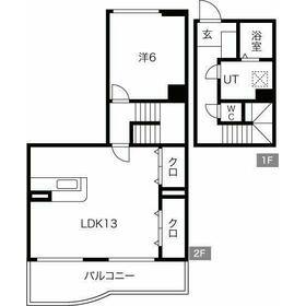
1LDK
57.92m²
|
賃貸マンション
2004年1月(築21年10ヶ月)
|
高齢者相談、二人入居可、24時間換気システム、メゾネット、IT重説対応物件
|
間取図
|
外観
おしゃれな外観です
|
<
その他の画像
>
|
交通 | JR山陽本線 大久保駅 徒歩19分 |
---|
その他の交通 | 山陽電鉄本線 江井ヶ島駅 徒歩29分 山陽電鉄本線 西江井ヶ島駅 徒歩34分 |
所在地 |
兵庫県明石市大久保町西脇
|
物件種目 |
賃貸マンション |
賃料 |
7万円 |
管理費等 |
5,000円 |
敷金 / 保証金 |
なし / なし |
礼金 |
1ヶ月 |
敷引 |
- |
保証金償却 |
- |
その他一時金 |
駐輪シール代 契約時:100円、グローバルコミュニティ・サポートクラブ 契約時:16,500円、室内清掃費用:33,000円、鍵交換代等:24,200円~ |
保険等 |
要 2年 26,000円 |
維持費等 |
- |
クレジットカード決済 |
初期費用可 |
間取り |
1LDK(LDK13、洋6) |
専有面積 |
57.92m² |
築年月 |
2004年1月(築21年10ヶ月)
|
階建 / 階 |
7階建 / メゾネット1階~2階部分 |
建物構造 |
RC |
総戸数 |
- |
主要採光面 |
南西 |
駐車場 |
有 8,800円/月 |
バイク置き場 |
- |
駐輪場 |
有 |
建物名・部屋番号 |
|
ペット |
-
|
アピールポイント |
こだわりポイント満載のクレモナ山手。セキュリティ面は、オートロック・TVインターホンなどを設置しているので安全面でも優れております。共用部には宅配ボックスが備え付けられているため、急なお出かけや不在の際にも荷物を受け取ることができます。収納はクロゼット・シューズボックスなど豊富なので、衣類や履き物の整理がしやすく便利です。室内設備は浴室乾燥機・洗面所独立などが揃っており、とても充実しています。3口コンロが付いているので、3つの料理を同時に進められて時短につながります。こちらは初期費用をカードでお支払いいただける物件です。インターネットが繋がっているマンションなので生活しやすくなっています。天板が一体となっているためコンロとシンクの間に隙間がなく、掃除がしやすいシステムキッチンがあります。車にいたずらされにくい、敷地内駐車場の空きがあります。簡単に温度管理できるエアコン付きのマンション。 |
リフォーム履歴 |
- |
リノベーション履歴 |
- |
備考 |
賃貸保証等:加入要(オリコ GC保証 初回保証料:総額賃料50%(最低2万)・更新料無・月額手数料1%オリコ口振)
管理形態/管理員の勤務形態:-/-
IT重説対応物件、外壁コンクリート
物件のお問い合わせはSumoSumoまで♪♪
1年未満の解約の際、短期違約金として総賃料1ヶ月分が必要です。室内設備は浴室乾燥機・洗面所独立などが揃っているので、快適に過ごしやすいお部屋になります。収納はシューズボックス・クロゼットなど豊富なので、広々と空間を利用することも可能です。セキュリティ面は、TVインターホン・オートロックなど充実しているので、防犯対策もばっちりです。留守中に注文した商品が届くので、配送時間を気にせず注文ができる宅配ボックスがあります。こちらは現在空家ですので、お早めのご案内・お引越しも可能です。お風呂には追い焚き機能が付いています。こちらの物件の駐車場は、現在空きがあり駐車可能です。マンションタイプのお部屋です。梅雨のジメジメした湿気も、エアコン付きのマンションなら安心です。毎日の生活が楽しくなるお家、1LDKで広くて落ち着きます。新たな回線工事の必要ない、インターネット付きの物件です。SumoSumoのオススメ物件です♪室内を見て頂ければきっと気に入って頂けると思います♪♪
|
エネルギー消費性能 |
- |
断熱性能 |
- |
目安光熱費 |
- |
バス・トイレ |
バス・トイレ別、浴室暖房、浴室乾燥機、追焚機能、シャワー付洗面化粧台、洗面所独立、洗面所、洗面台、シャワー、温水洗浄便座、トイレ |
キッチン |
カウンターキッチン、システムキッチン、3口以上コンロ、ガスコンロ可 |
セキュリティー |
モニター付オートロック、オートロック、モニター付インターホン、防犯カメラ |
収納 |
収納スペース、クローゼット、シューズボックス |
設備・サービス |
室内洗濯機置場、洗濯機置場、プロパンガス給湯、給湯、全居室フローリング、フローリング、プロパンガス、エアコン、冷房 |
TV・通信 |
インターネット対応 |
その他 |
宅配BOX、バルコニー、駐輪場、エレベーター |
契約期間 |
2年 |
現況 |
空家 |
条件等 |
- |
入居可能時期 |
相談 |
更新料 |
- |
物件番号 |
1127025415 |
情報公開日 |
2025年10月4日 |
次回更新予定日 |
2025年10月18日 |
ケータイ用バーコード |
- スマートフォンでこの物件を見る
- スマートフォンからもこの物件をご覧になれます。
|
※「-」と表示されている項目については、情報提供会社にご確認ください。
周辺施設 |
マックスバリュ 大久保西店 |
距離 |
564m |
写真を見る |
周辺施設 |
マルアイ大久保店 |
距離 |
1770m |
写真を見る |
周辺施設 |
ファミリーマート 明石大久保西店 |
距離 |
866m |
写真を見る |
周辺施設 |
セブンイレブン 明石大久保西店 |
距離 |
991m |
写真を見る |
周辺施設 |
ミニストップ 明石ゆりのき通店 |
距離 |
1471m |
写真を見る |
周辺施設 |
明石大久保郵便局 |
距離 |
1164m |
写真を見る |
ここから簡単にお問い合わせをすることができます。
(SSLでの暗号化での送信を希望されるお客さまは
こちら
よりお問い合わせください)
お問い合わせを行う前に
「個人情報の取り扱いについて」を必ずお読みください。
「個人情報の取り扱いについて」に同意いただいた場合は「上記にご同意の上 確認画面へ進む」のボタンをクリックしてください。
個人情報の取り扱いについて
皆さまが送付された個人情報はアットホーム(株)のサーバを経由し、お問い合わせ先の不動産会社にメールまたはFAXにて転送されるためアットホーム(株)にも保管されます。アットホーム(株)で保管された個人情報の取り扱いについては、【こちら】をご覧ください。
また、本画面でご記入いただいた個人情報は、お問い合わせ先の不動産会社でも保管します。 お問い合わせ先の不動産会社が保管する個人情報の取り扱いについては、不動産会社に直接お問い合わせください。
国土交通大臣免許(2)第9550号 |
---|
- 交通:
- JR山陽本線/垂水駅 徒歩1分
- 兵庫県神戸市垂水区神田町2-27
- TEL:
- 078-600-0540
- 所属団体:
- (公社)全日本不動産協会会員(公社)近畿地区不動産公正取引協議会加盟
取引態様:仲介  - 50111151
|
- スマートフォンで
この不動産会社を見る

|
- 提携サイト等より掲載されている物件情報につきましては、不動産会社詳細情報にリンクされていないものがあります。
- 物件に関するお問合せは、物件詳細ページの「情報提供会社」に表示されている不動産会社へ直接お願いいたします。
- 間取図は、現況を優先させていただきます。
- 映像は物件の一部を撮影したものです。物件の契約にあたっての最終判断はご自身の判断に基づいて行ってください。
- 仲介手数料について

アットホームは物件情報の適正化に努めております。
内容に誤りがある場合にはこちらへご連絡ください。