大阪府大阪市中央区博労町1丁目(堺筋本町駅)の賃貸:物件詳細
交通 所在地 |
駅徒歩 |
賃料 管理費等 |
敷金/保証金 礼金 |
間取り 面積 |
物件種目 築年月 |
|
地下鉄堺筋線/堺筋本町
大阪府大阪市中央区博労町1丁目
|
5分
|
16万円
12,000円
|
なし / なし
2ヶ月
|
1LDK
35.74m²
|
賃貸マンション
2026年1月
|
デザイナーズ、常時ゴミ出し可能、南向き、高齢者相談、二人入居可、24時間換気システム、バリアフリー、閑静な住宅街、IT重説対応物件
|
|
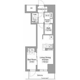
間取図
|
外観
|
その他の画像
|
| 交通 | 地下鉄堺筋線 堺筋本町駅 徒歩5分 |
|---|
| その他の交通 | 地下鉄長堀鶴見緑地線 長堀橋駅 徒歩5分 地下鉄御堂筋線 本町駅 徒歩13分 |
| 所在地 |
大阪府大阪市中央区博労町1丁目
|
| 物件種目 |
賃貸マンション |
| 賃料 |
16万円 |
管理費等 |
12,000円 |
| 敷金 / 保証金 |
なし / なし |
礼金 |
2ヶ月 |
| 敷引 |
- |
保証金償却 |
- |
| その他一時金 |
室内清掃費用:38,500円、鍵交換代等:22,000円~ |
保険等 |
要 2年 16,550円 |
| 維持費等 |
- |
| 間取り |
1LDK(LDK10.5、洋3) |
専有面積 |
35.74m² |
| 築年月 |
2026年1月
|
階建 / 階 |
15階建 / 14階 |
| 建物構造 |
RC |
総戸数 |
- |
| 主要採光面 |
南 |
駐車場 |
有 33,000円/月 |
| バイク置き場 |
有 3,300円/月 |
駐輪場 |
有 330円/月 |
| 建物名・部屋番号 |
コンフォリア・リヴ博労町一丁目Q |
ペット |
-
|
| アピールポイント |
収納はクロゼット・シューズボックスなど豊富なので、衣類や履き物の整理がしやすく便利です。共用部にはゴミ出し24時間OK・宅配ボックスなどが揃っております。室内設備は洗面所独立・浴室乾燥機などが揃っているので、快適に過ごしやすいお部屋になります。セキュリティ面は、オートロック・TVインターホンなど充実しているので安心して生活できます。暑い夏も寒い冬も、このエアコン付き物件なら安心です。利便性が高くお問い合わせの多い敷地内ゴミ置き場です。2026年1月入居可能予定です。そこから新たな生活が始まります。追い焚き機能付き浴室のある物件ならいつでも温かいお風呂を楽しめます。ぜひご覧になってください。14階のお部屋となっております。落ち着いた生活ができるリビングとダイニングのある充実設備の1LDK。駐輪場付きの物件です。 |
| リフォーム履歴 |
- |
| リノベーション履歴 |
- |
| 備考 |
賃貸保証等:加入要(エポスカード 保証料:賃料等の50%(最低2万)、月額保証料:賃料等の1%(更新料無)エポスカード(RP) 保証料:賃料等の50%(最低2万)、月額保証料:賃料等の1%(更新料無))
管理形態/管理員の勤務形態:-/巡回
IT重説対応物件、外壁コンクリート、管理人巡回
物件のお問い合わせはSumoSumoまで♪♪
共用部にはゴミ出し24時間OK・宅配ボックスなど様々な設備やサービスが揃っているので便利です。セキュリティ面は、オートロック・TVインターホンなどを設置しているので安全面でも優れております。収納はクロゼット・シューズボックスなど豊富なので、広々と空間を利用することも可能です。室内設備は洗面化粧台・浴室乾燥機など充実した設備を備え付けています。車所有の方にはうれしい、駐車場スペースがありの物件です。お使いいただける沿線は2つあり、便利な立地です。エアコン付きなので暑い日も寒い日も安心して過ごせます。14階にあるお部屋です、こちらはいかがでしょうか。高ニーズな駅近の物件で、徒歩5分で駅に行くことができます。きれいで気持ちがいい新築物件です。現在建築中の新築物件です。
|
| エネルギー消費性能 |
- |
| 断熱性能 |
- |
| 目安光熱費 |
- |
| バス・トイレ |
バス・トイレ別、浴室暖房、浴室乾燥機、追焚機能、シャワー付洗面化粧台、洗面所独立、洗面所、洗面台、シャワー、温水洗浄便座、トイレ |
| キッチン |
カウンターキッチン、システムキッチン |
| セキュリティー |
モニター付オートロック、オートロック、モニター付インターホン、ダブルロックドア、防犯カメラ |
| 収納 |
収納スペース、クローゼット、シューズボックス |
| 設備・サービス |
室内洗濯機置場、洗濯機置場、都市ガス給湯、給湯、フローリング、都市ガス、エアコン、冷房、人感センサー付照明、照明器具 |
| TV・通信 |
インターネット対応、インターネット使用料無料、光ファイバー、CATVインターネット、ケーブルTV、CS、BS端子 |
| その他 |
宅配BOX、バイク置き場、バルコニー、駐輪場、エレベーター |
| 契約期間 |
2年 |
現況 |
未完成 |
| 条件等 |
- |
入居可能時期 |
2026年1月下旬予定 |
| 更新料 |
- |
物件番号 |
1127034015 |
| 情報公開日 |
2025年10月4日 |
次回更新予定日 |
2025年12月31日 |
| ケータイ用バーコード |
- スマートフォンでこの物件を見る
- スマートフォンからもこの物件をご覧になれます。
|
※「-」と表示されている項目については、情報提供会社にご確認ください。
| 周辺施設 |
KOHYO(コーヨー) 南船場店 |
| 距離 |
159m |
写真を見る |
| 周辺施設 |
MISUGIYA(ミスギヤ) クリスタ長堀店 |
| 距離 |
436m |
写真を見る |
| 周辺施設 |
ファミリーマート 博労町一丁目店 |
| 距離 |
40m |
写真を見る |
| 周辺施設 |
ローソン 大阪南船場一丁目店 |
| 距離 |
133m |
写真を見る |
| 周辺施設 |
大阪南船場一郵便局 |
| 距離 |
157m |
写真を見る |
| 周辺施設 |
東警察署南久宝寺町交番 |
| 距離 |
340m |
写真を見る |
ここから簡単にお問い合わせをすることができます。
(SSLでの暗号化での送信を希望されるお客さまは
こちら
よりお問い合わせください)
お問い合わせを行う前に
「個人情報の取り扱いについて」を必ずお読みください。
「個人情報の取り扱いについて」に同意いただいた場合は「上記にご同意の上 確認画面へ進む」のボタンをクリックしてください。
個人情報の取り扱いについて
皆さまが送付された個人情報はアットホーム(株)のサーバを経由し、お問い合わせ先の不動産会社にメールまたはFAXにて転送されるためアットホーム(株)にも保管されます。アットホーム(株)で保管された個人情報の取り扱いについては、【こちら】をご覧ください。
また、本画面でご記入いただいた個人情報は、お問い合わせ先の不動産会社でも保管します。 お問い合わせ先の不動産会社が保管する個人情報の取り扱いについては、不動産会社に直接お問い合わせください。
大阪府知事免許(1)第62697号 |
|---|
- 交通:
- 地下鉄御堂筋線/心斎橋駅 徒歩3分
- 大阪府大阪市中央区南船場3丁目3-23 中和船場ビル102号
- TEL:
- 06-4400-6315
- FAX:
- 06-6258-3116
- 所属団体:
- (公社)全日本不動産協会会員(公社)近畿地区不動産公正取引協議会加盟
取引態様:仲介  - 50105934
|
- スマートフォンで
この不動産会社を見る

|
- 提携サイト等より掲載されている物件情報につきましては、不動産会社詳細情報にリンクされていないものがあります。
- 物件に関するお問合せは、物件詳細ページの「情報提供会社」に表示されている不動産会社へ直接お願いいたします。
- 間取図は、現況を優先させていただきます。
- 映像は物件の一部を撮影したものです。物件の契約にあたっての最終判断はご自身の判断に基づいて行ってください。
- 仲介手数料について

アットホームは物件情報の適正化に努めております。
内容に誤りがある場合にはこちらへご連絡ください。