大阪府大阪市西区川口1丁目(阿波座駅)の賃貸:物件詳細
交通 所在地 |
駅徒歩 |
賃料 管理費等 |
敷金/保証金 礼金 |
間取り 面積 |
物件種目 築年月 |
|
地下鉄中央線/阿波座
大阪府大阪市西区川口1丁目
|
6分
|
8.5万円
10,000円
|
なし / なし
なし
|
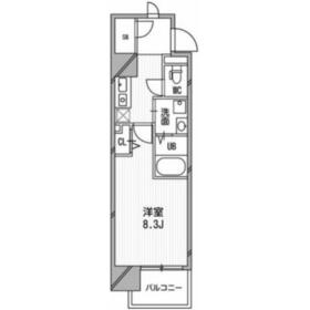
1K
26.00m²
|
賃貸マンション
2007年8月(築18年3ヶ月)
|
ペット相談、常時ゴミ出し可能、高齢者相談、二人入居可、事務所使用可、24時間換気システム、閑静な住宅街、外観タイル張り、IT重説対応物件、保証人不要
|
|
間取図
|
外観
|
<
その他の画像
>
|
| 交通 | 地下鉄中央線 阿波座駅 徒歩6分 |
|---|
| その他の交通 | 地下鉄千日前線 阿波座駅 徒歩6分 地下鉄中央線 九条駅 徒歩12分 |
| 所在地 |
大阪府大阪市西区川口1丁目
|
| 物件種目 |
賃貸マンション |
| 賃料 |
8.5万円 |
管理費等 |
10,000円 |
| 敷金 / 保証金 |
なし / なし |
礼金 |
なし |
| 敷引 |
- |
保証金償却 |
- |
| その他一時金 |
室内清掃費用:33,000円、鍵交換代等:17,600円~ |
保険等 |
要 2年 22,000円 |
| 維持費等 |
- |
クレジットカード決済 |
初期費用可 |
| 間取り |
1K(洋8.3) |
専有面積 |
26.00m² |
| 築年月 |
2007年8月(築18年3ヶ月)
|
階建 / 階 |
11階建 / 10階 |
| 建物構造 |
RC |
総戸数 |
- |
| 主要採光面 |
西 |
駐車場 |
近有 27,500円/月 |
| バイク置き場 |
有 |
駐輪場 |
有 |
| 建物名・部屋番号 |
1007 |
ペット |
小型犬可・ 猫可 |
| アピールポイント |
ハウスモ不動産西長堀・堀江店では経験豊富なスタッフが在籍しており、大阪府内全域でお部屋探しが可能です。インターネットに掲載している物件はごく一部ですので是非お気軽にお問い合わせ下さいませ。各種クレジットカードも利用可能です。賃貸、売買、事務所、店舗、全て対応可能ですのでお気軽にお尋ね下さいませ。全ての物件、現地待ち合わせ案内可能です。お気軽にご連絡下さい。06-6531-3511まで |
| リフォーム履歴 |
- |
| リノベーション履歴 |
- |
| 備考 |
賃貸保証等:加入要(保証会社に基づく)
管理形態/管理員の勤務形態:-/-
IT重説対応物件
☆ペット飼育可☆1階にペットの足洗い場有☆浴室乾燥機付き☆
はじめまして。「ハウスモ不動産西長堀・堀江店」の葉山英和です。当店にご来店いただいたお客様には、各種キャンペーンをご用意しております。当店は、地下鉄千日前線「西長堀」駅から徒歩1分。いつでも、お気軽にご来店下さい。西区はもちろん大阪府内全域、経験豊富なスタッフがご対応させて頂きます。お部屋探しについて何でもご相談下さい。尚、ライフライン・引越業者も提携しております。お部屋探しはハウスモ不動産西長堀・堀江店へお任せ下さい。
|
| エネルギー消費性能 |
- |
| 断熱性能 |
- |
| 目安光熱費 |
- |
| バス・トイレ |
バス・トイレ別、浴室乾燥機、シャワー付洗面化粧台、洗面所独立、洗面所、洗面台、シャワー、温水洗浄便座、トイレ |
| キッチン |
システムキッチン、独立型キッチン、2口コンロ、ガスコンロ可 |
| セキュリティー |
モニター付オートロック、オートロック、モニター付インターホン、ディンプルキー、ダブルロックドア、防犯カメラ |
| 収納 |
全居室収納、収納スペース、クローゼット、シューズボックス |
| 設備・サービス |
全居室エアコン、室内洗濯機置場、洗濯機置場、都市ガス給湯、給湯、全居室フローリング、フローリング、クッションフロア、都市ガス、エアコン、人感センサー付照明、ダウンライト、間接照明、照明器具 |
| TV・通信 |
インターネット対応、光ファイバー、ケーブルTV、CS、BS端子 |
| その他 |
宅配BOX、バイク置き場、ワイドバルコニー、バルコニー、駐輪場、エレベーター |
| 契約期間 |
2年 |
現況 |
空家 |
| 条件等 |
- |
入居可能時期 |
即時 |
| 更新料 |
旧賃料 1ヶ月 |
物件番号 |
1127179715 |
| 情報公開日 |
2025年10月18日 |
次回更新予定日 |
2025年11月1日 |
| ケータイ用バーコード |
- スマートフォンでこの物件を見る
- スマートフォンからもこの物件をご覧になれます。
|
※「-」と表示されている項目については、情報提供会社にご確認ください。
| 周辺施設 |
大阪市立本田小学校 |
| 距離 |
126m |
写真を見る |
| 周辺施設 |
西警察署 立売堀交番 |
| 距離 |
448m |
写真を見る |
| 周辺施設 |
大阪西郵便局 |
| 距離 |
428m |
写真を見る |
| 周辺施設 |
大阪本田郵便局 |
| 距離 |
353m |
写真を見る |
| 周辺施設 |
阪急オアシス新町店 |
| 距離 |
780m |
写真を見る |
| 周辺施設 |
大阪市西区役所 |
| 距離 |
925m |
写真を見る |
| 周辺施設 |
キッチンオリジン 阿波座店 |
| 距離 |
899m |
写真を見る |
ここから簡単にお問い合わせをすることができます。
(SSLでの暗号化での送信を希望されるお客さまは
こちら
よりお問い合わせください)
お問い合わせを行う前に
「個人情報の取り扱いについて」を必ずお読みください。
「個人情報の取り扱いについて」に同意いただいた場合は「上記にご同意の上 確認画面へ進む」のボタンをクリックしてください。
個人情報の取り扱いについて
皆さまが送付された個人情報はアットホーム(株)のサーバを経由し、お問い合わせ先の不動産会社にメールまたはFAXにて転送されるためアットホーム(株)にも保管されます。アットホーム(株)で保管された個人情報の取り扱いについては、【こちら】をご覧ください。
また、本画面でご記入いただいた個人情報は、お問い合わせ先の不動産会社でも保管します。 お問い合わせ先の不動産会社が保管する個人情報の取り扱いについては、不動産会社に直接お問い合わせください。
大阪府知事免許(3)第55965号 |
|---|
- 交通:
- 地下鉄千日前線/西長堀駅 徒歩1分
- 大阪府大阪市西区南堀江3丁目12-19
- TEL:
- 06-6531-3511
- 所属団体:
- (公社)全日本不動産協会会員(公社)近畿地区不動産公正取引協議会加盟
取引態様:仲介  - 50109122
|
- スマートフォンで
この不動産会社を見る

|
- 提携サイト等より掲載されている物件情報につきましては、不動産会社詳細情報にリンクされていないものがあります。
- 物件に関するお問合せは、物件詳細ページの「情報提供会社」に表示されている不動産会社へ直接お願いいたします。
- 間取図は、現況を優先させていただきます。
- 映像は物件の一部を撮影したものです。物件の契約にあたっての最終判断はご自身の判断に基づいて行ってください。
- 仲介手数料について

アットホームは物件情報の適正化に努めております。
内容に誤りがある場合にはこちらへご連絡ください。