埼玉県越谷市赤山町5丁目(越谷駅)の賃貸:物件詳細
交通 所在地 |
駅徒歩 |
賃料 管理費等 |
敷金/保証金 礼金 |
間取り 面積 |
物件種目 築年月 |
東武伊勢崎線/越谷
埼玉県越谷市赤山町5丁目
|
9分
|
16.8万円
なし
|
2ヶ月 / なし
2ヶ月
|
3LDK
144.25m²
|
賃貸一戸建て
1987年9月(築38年2ヶ月)
|
ペット相談、角部屋、ルームシェア可、二人入居可、事務所使用可、3面採光、閑静な住宅街、保証人不要
|
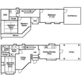
間取図
|
外観
外観
|
<
その他の画像
>
|
|
交通 | 東武伊勢崎線 越谷駅 徒歩9分 |
---|
その他の交通 | JR武蔵野線 南越谷駅 徒歩12分 東武伊勢崎線 新越谷駅 徒歩13分 |
所在地 |
埼玉県越谷市赤山町5丁目
|
物件種目 |
賃貸一戸建て |
賃料 |
16.8万円 |
管理費等 |
なし |
敷金 / 保証金 |
2ヶ月 / なし |
礼金 |
2ヶ月 |
敷引 |
- |
保証金償却 |
- |
その他一時金 |
なし |
保険等 |
要 |
維持費等 |
- |
クレジットカード決済 |
初期費用可 |
間取り |
3LDK(LDK20洋室11.2和室8.5和室7) |
専有面積 |
144.25m² |
築年月 |
1987年9月(築38年2ヶ月)
|
階建 / 階 |
2階建 |
建物構造 |
鉄骨造 |
総戸数 |
- |
主要採光面 |
南西 |
駐車場 |
有 無料 |
バイク置き場 |
有 無料 |
駐輪場 |
有 無料 |
建物名・部屋番号 |
越谷赤山戸建 |
ペット |
相談 |
アピールポイント |
☆当店の強みをお伝えします☆
①クレジットカードの初期費用分割払いを、喜んでお受けいたします(クレジットカード以外もOK)
②他社様がネットに掲載されている物件は、全てお調べし、【好条件】でご紹介いたします
他社様で「お申込み」された物件でも、【好条件】でご紹介できる場合がございます
③「審査が不安…」「保証人がいない…」「値段交渉をして欲しい…」などなど、
どのようなご条件でも、遠慮なくご相談いただけます
④ご検討されている「エリア」「沿線」が「広範囲」「複数」でも、一度で漏れなくお探しいただけます
ポータルサイトや他社サイトで気になるお部屋がございましたらお気軽にご相談ください
お客様のご来店を心よりお待ちしております |
リフォーム履歴 |
■その他:2017年1月 浴室全面リフォーム ※実施年月は最も古い履歴を表示 |
リノベーション履歴 |
- |
備考 |
賃貸保証等:加入要(月額賃料等の50%(初回保証料)2年目以降は1万円/年)
管理形態/管理員の勤務形態:-/-
室内清掃費用 198000円(退去時)/畳表替、障子、襖張替費用借主負担(退去時)/ペット飼育時、礼金積み増し1ヶ月、賃料176000円、2匹以上飼育の場合は、賃料180000円/構造:鉄骨造、一部木造/法人契約時、礼金積み増し1ヶ月/自治会費 単身150円、複数300円/事務所利用時、礼金積み増し1ヶ月/短期解約時違約金有(1年未満の解約は賃料の1ヶ月分)
|
エネルギー消費性能 |
- |
断熱性能 |
- |
目安光熱費 |
- |
バス・トイレ |
バス・トイレ別、追焚機能、洗面所独立、洗面台、シャワー、温水洗浄便座、トイレ2ヶ所、トイレ、浴室に窓あり |
キッチン |
システムキッチン、3口以上コンロ、ガスコンロ付、グリル |
セキュリティー |
- |
収納 |
ウォークインクローゼット、収納スペース、クローゼット、シューズボックス |
設備・サービス |
室内洗濯機置場、都市ガス給湯、給湯、出窓、フローリング、都市ガス |
TV・通信 |
インターネット対応、光ファイバー、CS、BS端子 |
その他 |
バイク置き場、ルーフバルコニー、二面バルコニー、バルコニー、駐輪場 |
契約期間 |
2年 |
現況 |
空家 |
条件等 |
- |
入居可能時期 |
即時 |
更新料 |
- |
物件番号 |
1127585113 |
情報公開日 |
2025年7月8日 |
次回更新予定日 |
2025年10月23日 |
ケータイ用バーコード |
- スマートフォンでこの物件を見る
- スマートフォンからもこの物件をご覧になれます。
|
※「-」と表示されている項目については、情報提供会社にご確認ください。
周辺施設 |
ヨークマート越谷赤山店 |
距離 |
431m |
写真を見る |
周辺施設 |
セブンイレブン南越谷店 |
距離 |
402m |
写真を見る |
周辺施設 |
マツモトキヨシ越谷赤山店 |
距離 |
458m |
写真を見る |
周辺施設 |
ALCo越谷ショッピングスクエア |
距離 |
635m |
写真を見る |
周辺施設 |
越谷市立南越谷小学校 |
距離 |
1047m |
写真を見る |
周辺施設 |
越谷市立富士中学校 |
距離 |
1019m |
写真を見る |
ここから簡単にお問い合わせをすることができます。
(SSLでの暗号化での送信を希望されるお客さまは
こちら
よりお問い合わせください)
お問い合わせを行う前に
「個人情報の取り扱いについて」を必ずお読みください。
「個人情報の取り扱いについて」に同意いただいた場合は「上記にご同意の上 確認画面へ進む」のボタンをクリックしてください。
個人情報の取り扱いについて
皆さまが送付された個人情報はアットホーム(株)のサーバを経由し、お問い合わせ先の不動産会社にメールまたはFAXにて転送されるためアットホーム(株)にも保管されます。アットホーム(株)で保管された個人情報の取り扱いについては、【こちら】をご覧ください。
また、本画面でご記入いただいた個人情報は、お問い合わせ先の不動産会社でも保管します。 お問い合わせ先の不動産会社が保管する個人情報の取り扱いについては、不動産会社に直接お問い合わせください。
国土交通大臣免許(3)第8522号 |
---|
- 交通:
- 東武伊勢崎線/新越谷駅 徒歩1分
- 埼玉県越谷市南越谷4丁目4-3 和田ビル 1階
- TEL:
- 048-990-7576
- 所属団体:
- (公社)全日本不動産協会会員(公社)首都圏不動産公正取引協議会加盟
取引態様:仲介  - 00785870
|
- スマートフォンで
この不動産会社を見る

|
- 提携サイト等より掲載されている物件情報につきましては、不動産会社詳細情報にリンクされていないものがあります。
- 物件に関するお問合せは、物件詳細ページの「情報提供会社」に表示されている不動産会社へ直接お願いいたします。
- 間取図は、現況を優先させていただきます。
- 映像は物件の一部を撮影したものです。物件の契約にあたっての最終判断はご自身の判断に基づいて行ってください。
- 仲介手数料について

アットホームは物件情報の適正化に努めております。
内容に誤りがある場合にはこちらへご連絡ください。