東京都中野区中央2丁目(中野坂上駅)の賃貸:物件詳細
交通 所在地 |
駅徒歩 |
賃料 管理費等 |
敷金/保証金 礼金 |
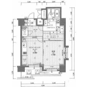
間取り 面積 |
物件種目 築年月 |
|
都営大江戸線/中野坂上
東京都中野区中央2丁目
|
3分
|
16.4万円
15,000円
|
1ヶ月 / なし
1ヶ月
|
1LDK
47.49m²
|
賃貸マンション
2005年9月(築20年2ヶ月)
|
ペット相談、分譲タイプ、常時ゴミ出し可能、角部屋、南向き、高齢者相談、二人入居可、2面採光、24時間換気システム、保証人不要
|
|
間取図
|
外観
外観です
|
<
その他の画像
>
|
| 交通 | 都営大江戸線 中野坂上駅 徒歩3分 |
|---|
| その他の交通 | JR総武線 東中野駅 徒歩12分 都営大江戸線 西新宿五丁目駅 徒歩17分 |
| 所在地 |
東京都中野区中央2丁目
|
| 物件種目 |
賃貸マンション |
| 賃料 |
16.4万円 |
管理費等 |
15,000円 |
| 敷金 / 保証金 |
1ヶ月 / なし |
礼金 |
1ヶ月 |
| 敷引 |
- |
保証金償却 |
- |
| その他一時金 |
SYLAプレミアムクラブ:24,200円、室内清掃費用:82,500円、鍵交換代等:55,000円~ |
保険等 |
要 2年 24,000円 |
| 維持費等 |
- |
| 間取り |
1LDK(洋7.9、LDK8) |
専有面積 |
47.49m² |
| 築年月 |
2005年9月(築20年2ヶ月)
|
階建 / 階 |
11階建 / 9階 |
| 建物構造 |
RC |
総戸数 |
- |
| 主要採光面 |
南 |
駐車場 |
近有 35,000円/月 |
| バイク置き場 |
- |
駐輪場 |
- |
| 建物名・部屋番号 |
ラグジュアリーアパートメント中野坂上 |
ペット |
相談 |
| アピールポイント |
室内設備は洗面所独立・浴室乾燥機などが揃っているので、快適に過ごしやすいお部屋になります。セキュリティ面は、オートロック・TVインターホンなどを備え付けているので安心して暮らせます。共用部には宅配ボックス・ゴミ出し24時間OKなどが備わっておりとても充実しています。収納はクロゼット・トランクルームなどが備え付けられているので、衣類や日用品の収納に重宝します。魅力溢れる角部屋は窓が多く風通しが良いので、満足いくと思います。こちらの物件にはエレベーターがあります。住みやすい環境が嬉しい賃貸物件です。犯罪の抑止力として効果がある防犯カメラが設置されています。ペットと離れたくない方にもご紹介したい、ペット相談可の物件です。追い焚き機能付き浴室のある物件ならいつでも温かいお風呂を楽しめます。周辺に2駅ありの電車通勤しやすい物件です。 |
| リフォーム履歴 |
- |
| リノベーション履歴 |
- |
| 備考 |
賃貸保証等:加入要(初回50%、月額保証料700円、月額事務手数料330円~外国籍の方:エポスGTNを利用。初回保証料60%、月額保証料2%、年間保証料無し)
管理形態/管理員の勤務形態:-/-
バルコニー:6.43m²
共用部には宅配ボックス・ゴミ出し24時間OKなどが揃っております。セキュリティ面は、TVインターホン・オートロックなどを設置しているので安全面でも優れております。室内設備は浴室乾燥機・洗面化粧台など大変充実しております。収納はウォークインクロゼット・トランクルームなどが備え付けられているので、衣類や日用品の収納に重宝します。片方にしか他の住戸が接していない角部屋ならば、隣人との騒音トラブルも起こりにくくなります。夏でも涼しい全居室フローリングのお住まいになります。1LDKの物件です。このお部屋の入居可能予定は令和7年12月ですのでお早目にご連絡お願いします。CATVは様々な番組を楽しめるので、この機会に是非対応物件へ。新たな回線工事が必要ない、経済的なネット回線工事済み物件です。通風良好で陽の当たる気持ちの良い物件をご提供いたします。
|
| エネルギー消費性能 |
- |
| 断熱性能 |
- |
| 目安光熱費 |
- |
| バス・トイレ |
バス・トイレ別、浴室乾燥機、オートバス、追焚機能、洗面所独立、洗面所、温水洗浄便座、トイレ |
| キッチン |
オープンキッチン、システムキッチン、2口コンロ、ガスコンロ可、グリル |
| セキュリティー |
モニター付オートロック、オートロック、モニター付インターホン、ディンプルキー、防犯カメラ |
| 収納 |
ウォークインクローゼット、収納スペース、トランクルーム、クローゼット |
| 設備・サービス |
室内洗濯機置場、洗濯機置場、全居室フローリング、フローリング、都市ガス、エアコン、冷房 |
| TV・通信 |
インターネット対応、インターネット使用料無料、ケーブルTV、CS、BS端子 |
| その他 |
宅配BOX、バルコニー、エレベーター |
| 契約期間 |
2年 |
現況 |
居住中 |
| 条件等 |
- |
入居可能時期 |
2025年12月中旬予定 |
| 更新料 |
新賃料 1ヶ月 |
物件番号 |
1127650015 |
| 情報公開日 |
2025年10月19日 |
次回更新予定日 |
2025年11月2日 |
| ケータイ用バーコード |
- スマートフォンでこの物件を見る
- スマートフォンからもこの物件をご覧になれます。
|
※「-」と表示されている項目については、情報提供会社にご確認ください。
| 周辺施設 |
タリーズコーヒー 新宿スクエアタワー店 |
| 距離 |
1119m |
写真を見る |
| 周辺施設 |
キッチンコート 東中野店 |
| 距離 |
1095m |
写真を見る |
| 周辺施設 |
ファミリーマート 東中野ギンザ通り店 |
| 距離 |
758m |
写真を見る |
| 周辺施設 |
西新宿小林クリニック |
| 距離 |
1169m |
写真を見る |
ここから簡単にお問い合わせをすることができます。
(SSLでの暗号化での送信を希望されるお客さまは
こちら
よりお問い合わせください)
お問い合わせを行う前に
「個人情報の取り扱いについて」を必ずお読みください。
「個人情報の取り扱いについて」に同意いただいた場合は「上記にご同意の上 確認画面へ進む」のボタンをクリックしてください。
個人情報の取り扱いについて
皆さまが送付された個人情報はアットホーム(株)のサーバを経由し、お問い合わせ先の不動産会社にメールまたはFAXにて転送されるためアットホーム(株)にも保管されます。アットホーム(株)で保管された個人情報の取り扱いについては、【こちら】をご覧ください。
また、本画面でご記入いただいた個人情報は、お問い合わせ先の不動産会社でも保管します。 お問い合わせ先の不動産会社が保管する個人情報の取り扱いについては、不動産会社に直接お問い合わせください。
東京都知事免許(1)第107337号 |
|---|
- 交通:
- JR山手線/新宿駅 徒歩1分
- 東京都新宿区西新宿1丁目3-3 品川ステーションビル新宿5F
- TEL:
- 03-6258-0867
- 所属団体:
- (公社)東京都宅地建物取引業協会会員(公社)首都圏不動産公正取引協議会加盟
取引態様:仲介  - 00278932
|
- スマートフォンで
この不動産会社を見る

|
- 提携サイト等より掲載されている物件情報につきましては、不動産会社詳細情報にリンクされていないものがあります。
- 物件に関するお問合せは、物件詳細ページの「情報提供会社」に表示されている不動産会社へ直接お願いいたします。
- 間取図は、現況を優先させていただきます。
- 映像は物件の一部を撮影したものです。物件の契約にあたっての最終判断はご自身の判断に基づいて行ってください。
- 仲介手数料について

アットホームは物件情報の適正化に努めております。
内容に誤りがある場合にはこちらへご連絡ください。