東京都中央区東日本橋1丁目(浜町駅)の賃貸:物件詳細
交通 所在地 |
駅徒歩 |
賃料 管理費等 |
敷金/保証金 礼金 |
間取り 面積 |
物件種目 築年月 |
|
都営新宿線/浜町
東京都中央区東日本橋1丁目
|
5分
|
24万円
なし
|
1ヶ月 / なし
なし
|
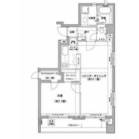
1LDK
52.73m²
|
賃貸マンション
2004年11月(築21年2ヶ月)
|
ペット相談、デザイナーズ、分譲タイプ、常時ゴミ出し可能、角部屋、高齢者相談、二人入居可、2面採光、24時間換気システム、外観タイル張り、IT重説対応物件、保証人不要
|
|
間取図
|
外観
外観も気になるポイント
|
<
その他の画像
>
|
| 交通 | 都営新宿線 浜町駅 徒歩5分 |
|---|
| その他の交通 | 都営浅草線 東日本橋駅 徒歩5分 JR総武本線 馬喰町駅 徒歩8分 |
| 所在地 |
東京都中央区東日本橋1丁目
|
| 物件種目 |
賃貸マンション |
| 賃料 |
24万円 |
管理費等 |
なし |
| 敷金 / 保証金 |
1ヶ月 / なし |
礼金 |
なし |
| 敷引 |
- |
保証金償却 |
- |
| その他一時金 |
なし |
保険等 |
要 2年 23,000円 |
| 維持費等 |
- |
| 間取り |
1LDK(LDK15.6、洋7.2) |
専有面積 |
52.73m² |
| 築年月 |
2004年11月(築21年2ヶ月)
|
階建 / 階 |
12階建 / 7階 |
| 建物構造 |
SRC |
総戸数 |
- |
| 主要採光面 |
南東 |
駐車場 |
近有 40,000円/月 |
| バイク置き場 |
- |
駐輪場 |
有 |
| 建物名・部屋番号 |
クレジデンス日本橋浜町 |
ペット |
相談 |
| アピールポイント |
共用部にはゴミ出し24時間OK・宅配ボックスなど様々な設備やサービスが揃っているので便利です。室内設備は洗面化粧台・浴室乾燥機などが揃っており、とても充実しています。セキュリティ面は、TVインターホン・オートロックなど充実しているので、防犯対策もばっちりです。駅まで5分と、駅近でアクセスも良好な物件です。こちらは1LDKの物件です。ご利用できる駅は3駅以上あり、交通の便がとても良い立地となっています。こちらの物件はエレベーター付きです。地上12階建てのマンションをご紹介。全居室フローリングなので静電気が発生しにくくなっています。ペットの飼育が可能かどうかを事前にご相談いただけます。 |
| リフォーム履歴 |
- |
| リノベーション履歴 |
- |
| 備考 |
賃貸保証等:加入要(初回 賃料等総額の40%~)
管理形態/管理員の勤務形態:-/-
IT重説対応物件
室内設備は洗面化粧台・浴室乾燥機など豊富に揃っており、過ごしやすいお部屋になっております。共用部には宅配ボックス・ゴミ出し24時間OKなどが揃っており、とても充実しています。セキュリティ面は、オートロック・TVインターホンなどを備え付けているので安心して暮らせます。レイアウトの幅も広がる1LDKのお部屋で楽しい生活。夏も冬もお部屋で快適に過ごすためには欠かせないエアコン付きです。こちらの物件は月々の家賃が24万円のお部屋です。駅まで歩いてアクセスできる、徒歩5分の距離に立地する物件です。こちらの物件でペットの飼育をご希望の際は、事前にご相談ください。洋風なインテリアと相性の良い全居室フローリング物件です。駐輪場付きの物件です。
|
| エネルギー消費性能 |
- |
| 断熱性能 |
- |
| 目安光熱費 |
- |
| バス・トイレ |
バス・トイレ別、浴室乾燥機、オートバス、追焚機能、洗面所独立、洗面所、温水洗浄便座、トイレ |
| キッチン |
システムキッチン、2口コンロ、ガスコンロ可 |
| セキュリティー |
モニター付オートロック、オートロック、モニター付インターホン、ディンプルキー、ダブルロックドア、防犯カメラ |
| 収納 |
ウォークインクローゼット、収納スペース、クローゼット |
| 設備・サービス |
室内洗濯機置場、洗濯機置場、全居室フローリング、フローリング、都市ガス、エアコン、冷房 |
| TV・通信 |
CATVインターネット、ケーブルTV、CS、BS端子 |
| その他 |
宅配BOX、バルコニー、駐輪場、エレベーター |
| 契約期間 |
2年 |
現況 |
空家 |
| 条件等 |
- |
入居可能時期 |
即時 |
| 更新料 |
新賃料 1ヶ月 |
物件番号 |
1127660519 |
| 情報公開日 |
2025年12月9日 |
次回更新予定日 |
2025年12月23日 |
| ケータイ用バーコード |
- スマートフォンでこの物件を見る
- スマートフォンからもこの物件をご覧になれます。
|
※「-」と表示されている項目については、情報提供会社にご確認ください。
| 周辺施設 |
わんわん保育園 |
| 距離 |
1844m |
写真を見る |
| 周辺施設 |
スターバックスコーヒー 人形町店 |
| 距離 |
813m |
写真を見る |
| 周辺施設 |
まいばすけっと 東日本橋1丁目店 |
| 距離 |
333m |
写真を見る |
| 周辺施設 |
成城石井 日本橋浜町店 |
| 距離 |
837m |
写真を見る |
| 周辺施設 |
セブンイレブン 東日本橋駅前店 |
| 距離 |
387m |
写真を見る |
| 周辺施設 |
東日本橋ドラッグ |
| 距離 |
298m |
写真を見る |
| 周辺施設 |
東プラ健診クリニック |
| 距離 |
556m |
写真を見る |
ここから簡単にお問い合わせをすることができます。
(SSLでの暗号化での送信を希望されるお客さまは
こちら
よりお問い合わせください)
お問い合わせを行う前に
「個人情報の取り扱いについて」を必ずお読みください。
「個人情報の取り扱いについて」に同意いただいた場合は「上記にご同意の上 確認画面へ進む」のボタンをクリックしてください。
個人情報の取り扱いについて
皆さまが送付された個人情報はアットホーム(株)のサーバを経由し、お問い合わせ先の不動産会社にメールまたはFAXにて転送されるためアットホーム(株)にも保管されます。アットホーム(株)で保管された個人情報の取り扱いについては、【こちら】をご覧ください。
また、本画面でご記入いただいた個人情報は、お問い合わせ先の不動産会社でも保管します。 お問い合わせ先の不動産会社が保管する個人情報の取り扱いについては、不動産会社に直接お問い合わせください。
東京都知事免許(1)第107337号 |
|---|
- 交通:
- JR山手線/新橋駅 徒歩5分
- 東京都中央区銀座8丁目11-1 GINZA GS BLD.2 7階
- TEL:
- 03-6281-4770
- FAX:
- 03-6281-4771
- 所属団体:
- (公社)東京都宅地建物取引業協会会員(公社)首都圏不動産公正取引協議会加盟
取引態様:仲介  - 00271811
|
- スマートフォンで
この不動産会社を見る

|
- 提携サイト等より掲載されている物件情報につきましては、不動産会社詳細情報にリンクされていないものがあります。
- 物件に関するお問合せは、物件詳細ページの「情報提供会社」に表示されている不動産会社へ直接お願いいたします。
- 間取図は、現況を優先させていただきます。
- 映像は物件の一部を撮影したものです。物件の契約にあたっての最終判断はご自身の判断に基づいて行ってください。
- 仲介手数料について

アットホームは物件情報の適正化に努めております。
内容に誤りがある場合にはこちらへご連絡ください。