不動産 賃貸 マンション等の住宅情報:埼玉住まい情報


東京都港区赤坂6丁目(赤坂駅)の賃貸:物件詳細

  • 物件詳細
  • 情報の見方
  • 印刷用画面
交通
所在地
駅徒歩 賃料
管理費等
敷金/保証金
礼金
間取り
面積
物件種目
築年月

東京メトロ千代田線/赤坂

東京都港区赤坂6丁目

4分

16万円

10,000円

1ヶ月 / なし

1ヶ月

1K

25.04m²

賃貸マンション

2013年6月(築12年10ヶ月)

おすすめPOINTペット相談、楽器相談、常時ゴミ出し可能、高齢者相談、IT重説対応物件、保証人不要

おすすめコメント

共用部には宅配ボックス・ゴミ出し24時間OKなどが揃っております。セキュリティ面は、TVインターホン・オートロックなど充実しているので、防犯対策もばっちりです。駐輪場付きのマンションです。

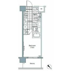
間取図

間取図

外観

外観

きれいな外観です

<
その他の画像
  • リビング
  • キッチン
  • バス/シャワー
  • トイレ
  • 洗面
  • エントランス
  • 共有部分
  • 共有部分
  • 設備
  • 収納
  • バルコニー
  • 室内
  • 室内
  • その他
  • コンビニ
  • 販売店
  • 販売店
  • 郵便局
  • 公園
  • 飲食店
>
    • とりあえず保存
    • お問い合わせ
    交通

    東京メトロ千代田線 赤坂駅 徒歩4分

    その他の交通

    東京メトロ日比谷線 六本木駅 徒歩13分

    東京メトロ南北線 六本木一丁目駅 徒歩14分

    所在地 東京都港区赤坂6丁目
    物件種目 賃貸マンション
    賃料 16万円 管理費等 10,000円
    敷金 / 保証金 1ヶ月 / なし 礼金 1ヶ月
    敷引 保証金償却
    その他一時金 なし、鍵交換代等:33,000円~ 保険等
    維持費等
    間取り 1K(洋7) 専有面積 25.04m²
    築年月 2013年6月(築12年10ヶ月) 階建 / 階 11階建 / 9階
    建物構造 RC 総戸数
    主要採光面 北東 駐車場 近有 50,000円/月
    バイク置き場 駐輪場
    建物名・部屋番号 パークハビオ赤坂 ペット 相談
    アピールポイント 家から35mのところに、薬や日用品を買うのに便利なスギ薬局 赤坂店があります。収納はクロゼット・全居室収納など豊富なので、広々と空間を利用することも可能です。共用部にはゴミ出し24時間OK・宅配ボックスなどが揃っており、とても充実しています。セキュリティ面は、TVインターホン・オートロックなど充実しているので、防犯対策もばっちりです。室内設備は洗面所独立・浴室乾燥機などが揃っているので、快適に過ごしやすいお部屋になります。豊富な番組が楽しめるBS、CSに加入できます。予め照明が設置されていて、引越しでの負担が減ります。2つの調理を同時に進行できて料理の効率を上げられる、2口コンロが付いています。徒歩4分で駅にアクセス可能な、魅力的な駅近物件です。こちらは現在空家の物件です。近隣にご利用いただける駐車場がございます。
    リフォーム履歴
    リノベーション履歴
    備考
    賃貸保証等:加入要(日本セーフティー 初年度委託料:賃料等合計額の30%(最低保証料1.2万円)2年目以降:1年毎1万円)
    管理形態/管理員の勤務形態:-/-
    バルコニー:5.49m²
    IT重説対応物件
    共用部にはゴミ出し24時間OK・宅配ボックスなどが備わっておりとても充実しています。収納はクロゼット・全居室収納などが備え付けられているので、衣類や日用品の収納に重宝します。セキュリティ面は、TVインターホン・オートロックなど充実しているので安心して生活できます。室内設備は洗面化粧台・浴室乾燥機など大変充実しております。3駅以上利用可で多方面へのアクセスに便利なマンションです。地上11階建ての物件でございます。バルコニー面積が5.49㎡ある物件です。間取りは1K。充実した水回りは女性にも好評。コンロとシンクの間に隙間がなく、掃除が簡単なためキッチンを綺麗に保ちやすいシステムキッチンがあります。時間が経っても温かいお風呂を楽しめる、追い焚き機能付きのお風呂です。ぜひご覧いただきたい賃貸物件です。
    エネルギー消費性能
    断熱性能
    目安光熱費
    バス・トイレ バス・トイレ別、浴室乾燥機、オートバス、追焚機能、洗面所独立、洗面所、温水洗浄便座、トイレ
    キッチン システムキッチン、2口コンロ、ガスコンロ可
    セキュリティー モニター付オートロック、オートロック、モニター付インターホン、ディンプルキー、ダブルロックドア、防犯カメラ
    収納 全居室収納、収納スペース、クローゼット
    設備・サービス 室内洗濯機置場、洗濯機置場、全居室フローリング、フローリング、都市ガス、エアコン、冷房、照明器具
    TV・通信 インターネット対応、光ファイバー、CATVインターネット、ケーブルTV、CS、BS端子
    その他 宅配BOX、バルコニー、駐輪場、エレベーター
    契約期間 2年 現況 空家
    条件等 入居可能時期 即時
    更新料 新賃料 1ヶ月 物件番号 1127831322
    情報公開日 2026年2月2日 次回更新予定日 2026年3月19日
    ケータイ用バーコード

    QRコード

    スマートフォンでこの物件を見る
    スマートフォンからもこの物件をご覧になれます。
    ※「-」と表示されている項目については、情報提供会社にご確認ください。

    この物件の周辺情報

    周辺施設 ローソン 赤坂六丁目店
    距離 56m
    周辺施設 もとまちユニオン 六本木店
    距離 952m
    周辺施設 スギ薬局 赤坂店
    距離 35m
    周辺施設 虎ノ門ヒルズ郵便局
    距離 1892m
    周辺施設 ミッドタウン・ガーデン
    距離 587m
    周辺施設 にく稲
    距離 1443m

    クイックお問い合わせ

    ここから簡単にお問い合わせをすることができます。
    (SSLでの暗号化での送信を希望されるお客さまは こちら よりお問い合わせください)

    お問い合わせ内容(必須)
    お名前(必須) 姓  名 
    メールアドレス(必須)
    ※携帯電話のメールアドレスをご入力される方はこちらをご確認ください
    電話番号(必須)
    - -

    ※入力いただいた電話番号へSMSまたは音声でパスワードをご連絡します。

    携帯電話の番号をご入力の方へ

    携帯電話の番号をご入力の方へ
    確認画面にて送信ボタンをクリックするとSMSが携帯電話に届きます。
    そのSMSに記載のパスワード(認証番号)を入力し、お問い合わせを完了してください。
    尚、SMSの送信者番号は 0005 202 760 となります。
    これはアットホームの固定番号です。

    備考欄 希望条件、物件案内希望日、質問などがございましたらご記入ください。
    お問い合わせを行う前に「個人情報の取り扱いについて」を必ずお読みください。
    「個人情報の取り扱いについて」に同意いただいた場合は「上記にご同意の上 確認画面へ進む」のボタンをクリックしてください。

    個人情報の取り扱いについて

    皆さまが送付された個人情報はアットホーム(株)のサーバを経由し、お問い合わせ先の不動産会社にメールまたはFAXにて転送されるためアットホーム(株)にも保管されます。アットホーム(株)で保管された個人情報の取り扱いについては、【こちら】をご覧ください。
    また、本画面でご記入いただいた個人情報は、お問い合わせ先の不動産会社でも保管します。 お問い合わせ先の不動産会社が保管する個人情報の取り扱いについては、不動産会社に直接お問い合わせください。

    情報提供会社

    情報提供会社

    Sky Yard Property(株) 新宿店

    東京都知事免許(1)第107337号

    交通:
    JR山手線/新宿駅 徒歩1分
    東京都新宿区西新宿1丁目3-3 品川ステーションビル新宿5F
    TEL:
    03-6258-0867
    所属団体:
    (公社)東京都宅地建物取引業協会会員
    (公社)首都圏不動産公正取引協議会加盟

    取引態様:仲介

    • 会社情報
    • 00278932
    スマートフォンで
    この不動産会社を見る
    QRコード
    • とりあえず保存
    • お問い合わせ
    • 提携サイト等より掲載されている物件情報につきましては、不動産会社詳細情報にリンクされていないものがあります。
    • 物件に関するお問合せは、物件詳細ページの「情報提供会社」に表示されている不動産会社へ直接お願いいたします。
    • 間取図は、現況を優先させていただきます。
    • 映像は物件の一部を撮影したものです。物件の契約にあたっての最終判断はご自身の判断に基づいて行ってください。
    • 仲介手数料について仲介手数料

    アットホームは物件情報の適正化に努めております。 内容に誤りがある場合にはこちらへご連絡ください。

    【埼玉住まい情報】では、日本全国の物件から賃貸マンションや賃貸アパート・賃貸一戸建て等の賃貸住宅情報、新築マンション・分譲マンションや中古マンション等の売買マンション情報、新築一戸建てや中古一戸建てなどの戸建住宅、 土地など、総合的な不動産住宅情報検索サービスを提供致します。
    【埼玉住まい情報】から、選りすぐりの不動産物件を探してみましょう。

    【免責事項】
    このコーナーの運営はアットホーム株式会社(https://www.athome.co.jp/)が行っています。
    このコーナーに掲載している物件情報は、「アットホーム不動産情報ネットワーク」に加盟する不動産会社等(情報提供元)から提供されています。信頼性の高い情報提供が行えるよう、最大限の努力をしておりますが、その内容を保証するものではありません。 利用者のみなさまと各情報提供元との取引に起因する損害および情報が掲載されたことに起因する損害等については、株式会社イーシティ埼玉、およびアットホームは一切責任を負いません。
    各物件情報の内容や画像等はすべて現況を優先させていただきます。
    お取引等(お取引の準備、資金調達等を含みます)の際には、内容や契約条件等について、各情報提供元より十分な説明を受け、ご自身でご確認の上、判断してください。
    このコーナーへの物件情報のご掲載、その他不動産業務ソリューション等についての不動産会社様のお問合せはこちらからお願いいたします。

    物件画像: