東京都新宿区百人町2丁目(新大久保駅)の賃貸:物件詳細
交通 所在地 |
駅徒歩 |
賃料 管理費等 |
敷金/保証金 礼金 |
間取り 面積 |
物件種目 築年月 |
|
JR山手線/新大久保
東京都新宿区百人町2丁目
|
5分
|
16.5万円
なし
|
なし / 3ヶ月
1ヶ月
|
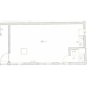
ワンルーム
31.98m²
|
賃貸マンション
1964年5月(築62年)
|
角部屋、事務所使用可、2面採光、保証人不要
|
|
間取図
|
外観
|
<
その他の画像
>
|
| 交通 | JR山手線 新大久保駅 徒歩5分 |
|---|
| その他の交通 | JR総武線 大久保駅 徒歩2分 西武新宿線 西武新宿駅 徒歩14分 |
| 所在地 |
東京都新宿区百人町2丁目
|
| 物件種目 |
賃貸マンション |
| 賃料 |
16.5万円 |
管理費等 |
なし |
| 敷金 / 保証金 |
なし / 3ヶ月 |
礼金 |
1ヶ月 |
| 敷引 |
- |
保証金償却 |
解約時1ヶ月 |
| その他一時金 |
ホームマイスター24/3年:24,750円、鍵交換代等:22,000円~ |
保険等 |
要 |
| 維持費等 |
- |
| 間取り |
ワンルーム |
専有面積 |
31.98m² |
| 築年月 |
1964年5月(築62年)
|
階建 / 階 |
5階建 / 1階 |
| 建物構造 |
RC |
総戸数 |
- |
| 主要採光面 |
|
駐車場 |
- |
| バイク置き場 |
- |
駐輪場 |
有 300円/月 |
| 建物名・部屋番号 |
虹信ビル |
ペット |
-
|
| リフォーム履歴 |
- |
| リノベーション履歴 |
- |
| 備考 |
賃貸保証等:加入要(日本セーフティー 初回保証料:総賃料の100%月額:0.8%)
管理形態/管理員の勤務形態:-/巡回
管理人巡回
・退去時クリーニング費、エアコンクリーニング費は保証金1ヶ月分償却に含まれております。
・1年未満の解約は短期解約違約金1ヶ月
・ウォシュレットは残置物になります。
※写真・図面と現況が異なる場合、現況を優先させていただきます。
☆床・エアコン新品♪クロス一部張替♪☆NTT10ギガまで使用可能♪(別途契約)☆
|
| エネルギー消費性能 |
- |
| 断熱性能 |
- |
| 目安光熱費 |
- |
| バス・トイレ |
トイレ |
| キッチン |
システムキッチン、IHクッキングヒーター |
| セキュリティー |
オートロック、防犯カメラ |
| 収納 |
- |
| 設備・サービス |
全居室エアコン、室内洗濯機置場、洗濯機置場、全居室フローリング、フローリング、都市ガス、エアコン、ダウンライト、照明器具 |
| TV・通信 |
インターネット対応 |
| その他 |
駐輪場 |
| 契約期間 |
3年 |
現況 |
空家 |
| 条件等 |
- |
入居可能時期 |
2026年4月下旬予定 |
| 仲介手数料 |
1.1ヶ月 |
|
|
| 更新料 |
新賃料 1ヶ月 |
物件番号 |
1127891525 |
| 情報公開日 |
2026年4月10日 |
次回更新予定日 |
2026年4月24日 |
| ケータイ用バーコード |
- スマートフォンでこの物件を見る
- スマートフォンからもこの物件をご覧になれます。
|
※「-」と表示されている項目については、情報提供会社にご確認ください。
| 周辺施設 |
ココカラファイン 大久保駅前店 |
| 距離 |
166m |
写真を見る |
| 周辺施設 |
セブン-イレブン新宿大久保駅前店 |
| 距離 |
146m |
写真を見る |
| 周辺施設 |
ロッテリア JR大久保駅前店 |
| 距離 |
196m |
写真を見る |
| 周辺施設 |
ローソンストア100 新宿百人町店 |
| 距離 |
247m |
写真を見る |
| 周辺施設 |
ドトールコーヒーショップ 大久保店 |
| 距離 |
262m |
写真を見る |
| 周辺施設 |
ドン・キホーテ 新大久保駅前店 |
| 距離 |
285m |
写真を見る |
| 周辺施設 |
Sガスト 大久保店 |
| 距離 |
266m |
写真を見る |
| 周辺施設 |
業務スーパー 新宿大久保店 |
| 距離 |
271m |
写真を見る |
ここから簡単にお問い合わせをすることができます。
(SSLでの暗号化での送信を希望されるお客さまは
こちら
よりお問い合わせください)
お問い合わせを行う前に
「個人情報の取り扱いについて」を必ずお読みください。
「個人情報の取り扱いについて」に同意いただいた場合は「上記にご同意の上 確認画面へ進む」のボタンをクリックしてください。
個人情報の取り扱いについて
皆さまが送付された個人情報はアットホーム(株)のサーバを経由し、お問い合わせ先の不動産会社にメールまたはFAXにて転送されるためアットホーム(株)にも保管されます。アットホーム(株)で保管された個人情報の取り扱いについては、【こちら】をご覧ください。
また、本画面でご記入いただいた個人情報は、お問い合わせ先の不動産会社でも保管します。 お問い合わせ先の不動産会社が保管する個人情報の取り扱いについては、不動産会社に直接お問い合わせください。
東京都知事免許(3)第96228号 |
|---|
- 交通:
- 東京メトロ有楽町線/池袋駅 徒歩3分
- 東京都豊島区池袋2丁目53-1
- TEL:
- 03-5927-1172
- FAX:
- 03-5927-1173
- 所属団体:
- (公社)東京都宅地建物取引業協会会員(公社)首都圏不動産公正取引協議会加盟
取引態様:仲介  - 00279020
|
- スマートフォンで
この不動産会社を見る

|
- 提携サイト等より掲載されている物件情報につきましては、不動産会社詳細情報にリンクされていないものがあります。
- 物件に関するお問合せは、物件詳細ページの「情報提供会社」に表示されている不動産会社へ直接お願いいたします。
- 間取図は、現況を優先させていただきます。
- 映像は物件の一部を撮影したものです。物件の契約にあたっての最終判断はご自身の判断に基づいて行ってください。
- 仲介手数料について

アットホームは物件情報の適正化に努めております。
内容に誤りがある場合にはこちらへご連絡ください。