埼玉県さいたま市大宮区吉敷町2丁目(さいたま新都心駅)の賃貸:物件詳細
交通 所在地 |
駅徒歩 |
賃料 管理費等 |
敷金/保証金 礼金 |
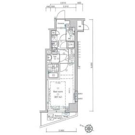
間取り 面積 |
物件種目 築年月 |
|
JR京浜東北線/さいたま新都心
埼玉県さいたま市大宮区吉敷町2丁目
|
8分
|
7.7万円
10,000円
|
なし / なし
なし
|
1K
25.50m²
|
賃貸マンション
2009年1月(築16年10ヶ月)
|
ペット相談、分譲タイプ、角部屋、南向き、2面採光、外観タイル張り
|
|
間取図
|
外観
|
<
その他の画像
>
|
|
|
| 交通 | JR京浜東北線 さいたま新都心駅 徒歩8分 |
|---|
| その他の交通 | JR埼京線 大宮駅 徒歩14分 JR京浜東北線 与野駅 徒歩27分 |
| 所在地 |
埼玉県さいたま市大宮区吉敷町2丁目
|
| 物件種目 |
賃貸マンション |
| 賃料 |
7.7万円 |
管理費等 |
10,000円 |
| 敷金 / 保証金 |
なし / なし |
礼金 |
なし |
| 敷引 |
- |
保証金償却 |
- |
| その他一時金 |
事務手数料:11,000円 |
保険等 |
要 |
| 維持費等 |
- |
クレジットカード決済 |
初期費用可 |
| 間取り |
1K |
専有面積 |
25.50m² |
| 築年月 |
2009年1月(築16年10ヶ月)
|
階建 / 階 |
8階建 / 5階 |
| 建物構造 |
RC |
総戸数 |
37戸 |
| 主要採光面 |
南 |
駐車場 |
近有 17,600円/月 |
| バイク置き場 |
- |
駐輪場 |
有 |
| 建物名・部屋番号 |
スパシエカステロ新都心 |
ペット |
相談 |
| アピールポイント |
☆当店の強みをお伝えします☆
①クレジットカードの初期費用分割払いを、喜んでお受けいたします(クレジットカード以外もOK)
②他社様がネットに掲載されている物件は、全てお調べし、【好条件】でご紹介いたします
他社様で「お申込み」された物件でも、【好条件】でご紹介できる場合がございます
③「審査が不安…」「保証人がいない…」「値段交渉をして欲しい…」などなど、
どのようなご条件でも、遠慮なくご相談いただけます
④ご検討されている「エリア」「沿線」が「広範囲」「複数」でも、一度で漏れなくお探しいただけます
ポータルサイトや他社サイトで気になるお部屋がございましたらお気軽にご相談ください
お客様のご来店を心よりお待ちしております |
| リフォーム履歴 |
- |
| リノベーション履歴 |
- |
| 備考 |
賃貸保証等:加入要(初回:賃料等の100%)
管理形態/管理員の勤務形態:-/-
外壁コンクリート
ペットは小型犬または猫1匹まで(1匹につき敷金1か月分)/家財保険料20000円(2年間)/安心サポート月額1000円(税別)/退去時清掃費35000円(税別)/エアコン洗浄15000円(税別)/2年未満での解約違約金1か月分/ペット飼育時は敷金1か月分預託要小型犬または猫1匹まで/敷金1か月プラス預託/駐輪場代借主負担(使用時)
|
| エネルギー消費性能 |
- |
| 断熱性能 |
- |
| 目安光熱費 |
- |
| バス・トイレ |
バス・トイレ別、浴室乾燥機、洗面台、温水洗浄便座、トイレ |
| キッチン |
システムキッチン、2口コンロ、ガスコンロ付 |
| セキュリティー |
オートロック、モニター付インターホン、防犯カメラ、火災警報器(報知機) |
| 収納 |
- |
| 設備・サービス |
都市ガス、エアコン |
| TV・通信 |
インターネット対応、光ファイバー |
| その他 |
宅配BOX、バルコニー、駐輪場、エレベーター |
| 契約期間 |
2年 |
現況 |
空家 |
| 条件等 |
- |
入居可能時期 |
即時 |
| 更新料 |
- |
物件番号 |
1127939816 |
| 情報公開日 |
2025年10月26日 |
次回更新予定日 |
2025年11月9日 |
| ケータイ用バーコード |
- スマートフォンでこの物件を見る
- スマートフォンからもこの物件をご覧になれます。
|
※「-」と表示されている項目については、情報提供会社にご確認ください。
| 周辺施設 |
イトーヨーカドー 大宮店 |
| 距離 |
695m |
写真を見る |
| 周辺施設 |
セブン-イレブン さいたま吉敷町店 |
| 距離 |
199m |
写真を見る |
| 周辺施設 |
7美のガーデン 大宮店 |
| 距離 |
794m |
写真を見る |
| 周辺施設 |
エプロント(E PRONTO) 大宮区役所店 |
| 距離 |
428m |
写真を見る |
| 周辺施設 |
国際学院埼玉短期大学 |
| 距離 |
622m |
写真を見る |
| 周辺施設 |
橋本クリニックさいたま |
| 距離 |
80m |
写真を見る |
ここから簡単にお問い合わせをすることができます。
(SSLでの暗号化での送信を希望されるお客さまは
こちら
よりお問い合わせください)
お問い合わせを行う前に
「個人情報の取り扱いについて」を必ずお読みください。
「個人情報の取り扱いについて」に同意いただいた場合は「上記にご同意の上 確認画面へ進む」のボタンをクリックしてください。
個人情報の取り扱いについて
皆さまが送付された個人情報はアットホーム(株)のサーバを経由し、お問い合わせ先の不動産会社にメールまたはFAXにて転送されるためアットホーム(株)にも保管されます。アットホーム(株)で保管された個人情報の取り扱いについては、【こちら】をご覧ください。
また、本画面でご記入いただいた個人情報は、お問い合わせ先の不動産会社でも保管します。 お問い合わせ先の不動産会社が保管する個人情報の取り扱いについては、不動産会社に直接お問い合わせください。
国土交通大臣免許(3)第8522号 |
|---|
- 交通:
- JR埼京線/大宮駅 徒歩1分
- 埼玉県さいたま市大宮区大門町1丁目92-7 ハイカラ堂ビル 5階
- TEL:
- 048-650-1400
- FAX:
- 048-650-1411
- 所属団体:
- (公社)全日本不動産協会会員(公社)首都圏不動産公正取引協議会加盟
取引態様:仲介  - 00785867
|
- スマートフォンで
この不動産会社を見る

|
- 提携サイト等より掲載されている物件情報につきましては、不動産会社詳細情報にリンクされていないものがあります。
- 物件に関するお問合せは、物件詳細ページの「情報提供会社」に表示されている不動産会社へ直接お願いいたします。
- 間取図は、現況を優先させていただきます。
- 映像は物件の一部を撮影したものです。物件の契約にあたっての最終判断はご自身の判断に基づいて行ってください。
- 仲介手数料について

アットホームは物件情報の適正化に努めております。
内容に誤りがある場合にはこちらへご連絡ください。