神奈川県横浜市西区戸部本町(戸部駅)の賃貸:物件詳細
交通 所在地 |
駅徒歩 |
賃料 管理費等 |
敷金/保証金 礼金 |
間取り 面積 |
物件種目 築年月 |
|
京急本線/戸部
神奈川県横浜市西区戸部本町
|
3分
|
8.8万円
7,000円
|
1ヶ月 / なし
なし
|
ワンルーム
23.06m²
|
賃貸マンション
1987年10月(築38年5ヶ月)
|
|
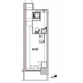
間取図
|
外観
|
<
その他の画像
>
|
| 交通 | 京急本線 戸部駅 徒歩3分 |
|---|
| その他の交通 | ブルーライン 高島町駅 徒歩4分 JR東海道本線 横浜駅 徒歩13分 |
| 所在地 |
神奈川県横浜市西区戸部本町
|
| 物件種目 |
賃貸マンション |
| 賃料 |
8.8万円 |
管理費等 |
7,000円 |
| 敷金 / 保証金 |
1ヶ月 / なし |
礼金 |
なし |
| 敷引 |
- |
保証金償却 |
- |
| その他一時金 |
なし |
保険等 |
要 2年 18,000円 |
| 維持費等 |
- |
クレジットカード決済 |
初期費用可 |
| 間取り |
ワンルーム(洋9) |
専有面積 |
23.06m² |
| 築年月 |
1987年10月(築38年5ヶ月)
|
階建 / 階 |
10階建 / 3階 |
| 建物構造 |
SRC |
総戸数 |
- |
| 主要採光面 |
北西 |
駐車場 |
- |
| バイク置き場 |
- |
駐輪場 |
- |
| 建物名・部屋番号 |
ザ・レジデンス横浜サウス 309 |
ペット |
-
|
| リフォーム履歴 |
- |
| リノベーション履歴 |
- |
| 備考 |
賃貸保証等:加入要(初回保証料:月額総賃料の50%、月額保証料:月額総賃料の1%)
管理形態/管理員の勤務形態:-/-
鍵交換代:16500円
エアコンクリーニング費用:16500円/台
短期解約違約金:1年未満の解約で総賃料1ヶ月分
退去時のクリーニング費用(実費)は借主負担になります
|
| エネルギー消費性能 |
- |
| 断熱性能 |
- |
| 目安光熱費 |
- |
| バス・トイレ |
シャワールーム、トイレ |
| キッチン |
IHクッキングヒーター |
| セキュリティー |
モニター付インターホン、防犯カメラ |
| 収納 |
収納スペース、クローゼット、シューズボックス |
| 設備・サービス |
室内洗濯機置場、洗濯機置場、エアコン、照明器具 |
| TV・通信 |
インターネット対応、光ファイバー、ケーブルTV |
| その他 |
宅配BOX、バルコニー、エレベーター |
| 契約期間 |
2年 |
現況 |
空家 |
| 条件等 |
- |
入居可能時期 |
即時 |
| 更新料 |
新賃料 1ヶ月 |
物件番号 |
1128160822 |
| 情報公開日 |
2026年2月3日 |
次回更新予定日 |
2026年2月17日 |
| ケータイ用バーコード |
- スマートフォンでこの物件を見る
- スマートフォンからもこの物件をご覧になれます。
|
※「-」と表示されている項目については、情報提供会社にご確認ください。
| 周辺施設 |
ファミリーマート 横浜戸部七丁目店 |
| 距離 |
255m |
写真を見る |
| 周辺施設 |
ローソン 戸部駅前店 |
| 距離 |
247m |
写真を見る |
| 周辺施設 |
まいばすけっと 平沼1丁目店 |
| 距離 |
465m |
写真を見る |
| 周辺施設 |
相鉄ジョイナス |
| 距離 |
1267m |
写真を見る |
| 周辺施設 |
ドン・キホーテ 横浜西口店 |
| 距離 |
1237m |
写真を見る |
ここから簡単にお問い合わせをすることができます。
(SSLでの暗号化での送信を希望されるお客さまは
こちら
よりお問い合わせください)
お問い合わせを行う前に
「個人情報の取り扱いについて」を必ずお読みください。
「個人情報の取り扱いについて」に同意いただいた場合は「上記にご同意の上 確認画面へ進む」のボタンをクリックしてください。
個人情報の取り扱いについて
皆さまが送付された個人情報はアットホーム(株)のサーバを経由し、お問い合わせ先の不動産会社にメールまたはFAXにて転送されるためアットホーム(株)にも保管されます。アットホーム(株)で保管された個人情報の取り扱いについては、【こちら】をご覧ください。
また、本画面でご記入いただいた個人情報は、お問い合わせ先の不動産会社でも保管します。 お問い合わせ先の不動産会社が保管する個人情報の取り扱いについては、不動産会社に直接お問い合わせください。
国土交通大臣免許(3)第8175号 |
|---|
- 交通:
- JR横浜線/新横浜駅 徒歩3分
- 神奈川県横浜市港北区新横浜2丁目5-19 AXIS SHINYOKOHAMA
- TEL:
- 0120-955-199
- FAX:
- 045-565-9716
- 所属団体:
- (公社)神奈川県宅地建物取引業協会会員(公社)首都圏不動産公正取引協議会加盟
取引態様:仲介  - 00278822
|
- スマートフォンで
この不動産会社を見る

|
- 提携サイト等より掲載されている物件情報につきましては、不動産会社詳細情報にリンクされていないものがあります。
- 物件に関するお問合せは、物件詳細ページの「情報提供会社」に表示されている不動産会社へ直接お願いいたします。
- 間取図は、現況を優先させていただきます。
- 映像は物件の一部を撮影したものです。物件の契約にあたっての最終判断はご自身の判断に基づいて行ってください。
- 仲介手数料について

アットホームは物件情報の適正化に努めております。
内容に誤りがある場合にはこちらへご連絡ください。