東京都新宿区上落合3丁目(落合駅)の賃貸:物件詳細
交通 所在地 |
駅徒歩 |
賃料 管理費等 |
敷金/保証金 礼金 |
間取り 面積 |
物件種目 築年月 |
|
東京メトロ東西線/落合
東京都新宿区上落合3丁目
|
4分
|
14.1万円
5,000円
|
1ヶ月 / なし
1ヶ月
|
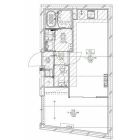
1LDK
31.89m²
|
賃貸マンション
2026年3月
|
角部屋、最上階、二人入居可、24時間換気システム、保証人不要
|
|
間取図
|
外観
|
<
その他の画像
>
|
| 交通 | 東京メトロ東西線 落合駅 徒歩4分 |
|---|
| その他の交通 | 西武新宿線 中井駅 徒歩4分 JR総武線 東中野駅 徒歩13分 |
| 所在地 |
東京都新宿区上落合3丁目
|
| 物件種目 |
賃貸マンション |
| 賃料 |
14.1万円 |
管理費等 |
5,000円 |
| 敷金 / 保証金 |
1ヶ月 / なし |
礼金 |
1ヶ月 |
| 敷引 |
- |
保証金償却 |
- |
| その他一時金 |
なし |
保険等 |
要 2年 20,000円 |
| 維持費等 |
ジャパンライフサポート24H:1,100円/月 |
| 間取り |
1LDK(LDK8、洋6.1) |
専有面積 |
31.89m² |
| 築年月 |
2026年3月
|
階建 / 階 |
地上4階地下1階建 / 4階 |
| 建物構造 |
RC |
総戸数 |
- |
| 主要採光面 |
北西 |
駐車場 |
- |
| バイク置き場 |
- |
駐輪場 |
- |
| 建物名・部屋番号 |
GM上落合 501 |
ペット |
-
|
| リフォーム履歴 |
- |
| リノベーション履歴 |
- |
| 備考 |
賃貸保証等:加入要(Casa Casa 総賃料の50%~ 更新料:1万円/年 他1社)
管理形態/管理員の勤務形態:-/-
室内設備は洗面所独立・浴室乾燥機などが揃っているので、快適に過ごしやすいお部屋になります。宅配業者が来た時に出る準備ができていない人でも宅配ボックスがあるので入居者は荷物受け取りのために玄関にて対応必要がなくなります。徒歩4分で駅にアクセスできる物件です。新宿区の賃貸情報を豊富に扱っているクレディフォルムは、お客様に満足いただけるお部屋をご提供しております。
東西線落合駅周辺物件:GM上落合。室内設備は洗面所独立・浴室乾燥機など豊富に揃っており、過ごしやすいお部屋になっております。セキュリティ面は、TVインターホン・オートロックなどを備え付けているので安心して暮らせます。こだわりの住まい探しをサポートいたします。TEL03-6228-5878からクレディフォルムまでお問い合わせいただけます。
|
| エネルギー消費性能 |
- |
| 断熱性能 |
- |
| 目安光熱費 |
- |
| バス・トイレ |
バス・トイレ別、浴室乾燥機、洗面所独立、洗面所、シャワー、温水洗浄便座、トイレ |
| キッチン |
システムキッチン、IHクッキングヒーター、2口コンロ |
| セキュリティー |
モニター付オートロック、オートロック、モニター付インターホン |
| 収納 |
収納スペース、シューズボックス |
| 設備・サービス |
室内洗濯機置場、洗濯機置場、都市ガス給湯、給湯、フローリング、都市ガス、エアコン、冷房 |
| TV・通信 |
インターネット対応、インターネット使用料無料、光ファイバー |
| その他 |
宅配BOX |
| 契約期間 |
2年 |
現況 |
空家 |
| 条件等 |
- |
入居可能時期 |
即時 |
| 更新料 |
新賃料 1ヶ月 |
物件番号 |
1128665625 |
| 情報公開日 |
2026年4月11日 |
次回更新予定日 |
2026年4月25日 |
| ケータイ用バーコード |
- スマートフォンでこの物件を見る
- スマートフォンからもこの物件をご覧になれます。
|
※「-」と表示されている項目については、情報提供会社にご確認ください。
ここから簡単にお問い合わせをすることができます。
(SSLでの暗号化での送信を希望されるお客さまは
こちら
よりお問い合わせください)
お問い合わせを行う前に
「個人情報の取り扱いについて」を必ずお読みください。
「個人情報の取り扱いについて」に同意いただいた場合は「上記にご同意の上 確認画面へ進む」のボタンをクリックしてください。
個人情報の取り扱いについて
皆さまが送付された個人情報はアットホーム(株)のサーバを経由し、お問い合わせ先の不動産会社にメールまたはFAXにて転送されるためアットホーム(株)にも保管されます。アットホーム(株)で保管された個人情報の取り扱いについては、【こちら】をご覧ください。
また、本画面でご記入いただいた個人情報は、お問い合わせ先の不動産会社でも保管します。 お問い合わせ先の不動産会社が保管する個人情報の取り扱いについては、不動産会社に直接お問い合わせください。
東京都知事免許(4)第90149号 |
|---|
- 交通:
- 東京メトロ銀座線/銀座駅 徒歩2分
- 東京都中央区銀座6丁目12-15 いちご銀座612ビル4F
- TEL:
- 03-6228-5878
- FAX:
- 03-3573-3444
- 所属団体:
- (公社)東京都宅地建物取引業協会会員(公社)首都圏不動産公正取引協議会加盟
取引態様:仲介  - 00611602
|
- スマートフォンで
この不動産会社を見る

|
- 提携サイト等より掲載されている物件情報につきましては、不動産会社詳細情報にリンクされていないものがあります。
- 物件に関するお問合せは、物件詳細ページの「情報提供会社」に表示されている不動産会社へ直接お願いいたします。
- 間取図は、現況を優先させていただきます。
- 映像は物件の一部を撮影したものです。物件の契約にあたっての最終判断はご自身の判断に基づいて行ってください。
- 仲介手数料について

アットホームは物件情報の適正化に努めております。
内容に誤りがある場合にはこちらへご連絡ください。