東京都葛飾区東四つ木1丁目(四ツ木駅)の賃貸:物件詳細
交通 所在地 |
駅徒歩 |
賃料 管理費等 |
敷金/保証金 礼金 |
間取り 面積 |
物件種目 築年月 |
|
京成押上線/四ツ木
東京都葛飾区東四つ木1丁目
|
5分
|
6.6万円
4,000円
|
なし / なし
1ヶ月
|
1K
17.01m²
|
賃貸アパート
2026年2月
|
デザイナーズ、最上階、天井高2.5M以上、吹抜、IT重説対応物件、保証人不要
|
|
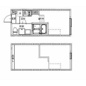
間取図
バストイレ別、独立洗面付
|
外観
完成パース~年度内入居可能の新築です~
|
<
その他の画像
>
|
| 交通 | 京成押上線 四ツ木駅 徒歩5分 |
|---|
| その他の交通 | 京成押上線 京成立石駅 徒歩21分 京成押上線 八広駅 徒歩19分 |
| 所在地 |
東京都葛飾区東四つ木1丁目
|
| 物件種目 |
賃貸アパート |
| 賃料 |
6.6万円 |
管理費等 |
4,000円 |
| 敷金 / 保証金 |
なし / なし |
礼金 |
1ヶ月 |
| 敷引 |
- |
保証金償却 |
- |
| その他一時金 |
24時間サポート:19,800円、入居時IOT設定費:16,500円、室内清掃費用:38,500円 |
保険等 |
要 2年 20,000円 |
| 維持費等 |
町会費:300円/月 |
クレジットカード決済 |
初期費用可 |
| 間取り |
1K(洋4.4、他5) |
専有面積 |
17.01m² |
| 築年月 |
2026年2月
|
階建 / 階 |
2階建 / 2階 |
| 建物構造 |
木造 |
総戸数 |
- |
| 主要採光面 |
|
駐車場 |
- |
| バイク置き場 |
- |
駐輪場 |
- |
| 建物名・部屋番号 |
仮)東四つ木1丁目②B Neo AVAND 203 |
ペット |
-
|
| アピールポイント |
当社募集元の年度内入居可能の新築です。間取りの寸法やお写真希望の場合はお問合せくだいませ。
モニター越しに来訪者を確認して、インターホンを通じて室内から会話することができます。室内設備は浴室乾燥機・洗面化粧台など豊富に揃っており、過ごしやすいお部屋になっております。収納はクロゼット・シューズボックスなどが備え付けられているので、衣類や日用品の収納に重宝します。共用部には宅配ボックスが備え付けられているため、荷物の受け取りのために早く帰宅する必要がありません。この物件は内観も綺麗で設備も充実した、令和8年築となっています。フローリング張りのアパートなので床掃除が簡単です。BS対応物件です。テレビをよく見るという方はぜひご検討ください。付近にある2つの駅は、用途や行き先に応じて使い分けることができます。こちらの物件は令和8年2月の入居期日指定があります。住みやすさが満載でイチオシのアパートはこちらです。毎日長時間インターネットを利用する方にとって、月々のインターネット使用料を支払う必要がないので毎月の出費を抑えることができます。 |
| リフォーム履歴 |
- |
| リノベーション履歴 |
- |
| 備考 |
賃貸保証等:加入要(SKC保証 連帯保証人有:初回保証料30000円(引落手数料月660円) 連帯保証人無:初回保証料総賃料50000円(引落手数料月660円) 1年毎に更新料15000円)
管理形態/管理員の勤務形態:-/-
IT重説対応物件、外壁サイディング
☆☆部屋コレ新宿店では来店無しでもオンライン契約可能です☆☆
☆部屋コレが募集元のお部屋です☆諸条件何でもご相談ください☆
一人暮らしの方も安心の、TVインターホン付き物件です。収納はシューズボックス・クロゼットなど豊富なので、衣類や履き物の整理がしやすく便利です。室内設備は浴室乾燥機・洗面所独立など充実した設備を備え付けています。お届け指定時間に間に合わないとき、直接受け取れないかわりに荷物が届けられる宅配ボックスがあれば急いで帰る必要はありません。1Kなのでキッチンも快適。楽しくお料理もできる満足の物件です。未完成の物件です。完成後、きれいで新しいお部屋にご案内可能です。設備も充実していて住みやすい、魅力が詰まったアパートです。BSアンテナ設置済みのため、加入予定の方もスムーズにご契約頂けます。システムキッチンは収納性に優れているため、キッチン回りを綺麗に保ちやすくなります。この物件は内観も綺麗で設備も充実した、令和8年築となっています。2口コンロが備え付けられているので、2つの料理を同時に進められて時短につながります。
|
| エネルギー消費性能 |
- |
| 断熱性能 |
- |
| 目安光熱費 |
- |
| バス・トイレ |
バス・トイレ別、浴室乾燥機、シャワー付洗面化粧台、洗面所独立、洗面所、洗面台、温水洗浄便座、トイレ |
| キッチン |
システムキッチン、2口コンロ、ガスコンロ可 |
| セキュリティー |
モニター付インターホン、防犯カメラ |
| 収納 |
収納スペース、クローゼット、シューズボックス |
| 設備・サービス |
室内洗濯機置場、洗濯機置場、ロフト、給湯、全居室フローリング、フローリング、室内物干し、エアコン、冷房、ダウンライト、照明器具 |
| TV・通信 |
インターネット対応、インターネット使用料無料、光ファイバー、BS端子 |
| その他 |
宅配BOX |
| 契約期間 |
2年 |
現況 |
未完成 |
| 条件等 |
- |
入居可能時期 |
指定有り2026年2月28日 |
| 更新料 |
新賃料 1.5ヶ月 |
物件番号 |
1128900222 |
| 情報公開日 |
2026年2月3日 |
次回更新予定日 |
2026年2月17日 |
| ケータイ用バーコード |
- スマートフォンでこの物件を見る
- スマートフォンからもこの物件をご覧になれます。
|
※「-」と表示されている項目については、情報提供会社にご確認ください。
| 周辺施設 |
葛飾東四つ木郵便局 |
| 距離 |
316m |
写真を見る |
| 周辺施設 |
セブンイレブン 東四つ木1丁目店 |
| 距離 |
356m |
写真を見る |
| 周辺施設 |
セブンイレブン 葛飾東四つ木3丁目店 |
| 距離 |
527m |
写真を見る |
| 周辺施設 |
どらっぐぱぱす 東四つ木店 |
| 距離 |
551m |
写真を見る |
| 周辺施設 |
グリーンマート東四ッ木店 |
| 距離 |
711m |
写真を見る |
| 周辺施設 |
まいばすけっと 東立石1丁目店 |
| 距離 |
876m |
写真を見る |
| 周辺施設 |
葛飾区医師会附属看護専門学校 |
| 距離 |
1043m |
写真を見る |
| 周辺施設 |
どらっぐぱぱす 東立石店 |
| 距離 |
1095m |
写真を見る |
ここから簡単にお問い合わせをすることができます。
(SSLでの暗号化での送信を希望されるお客さまは
こちら
よりお問い合わせください)
お問い合わせを行う前に
「個人情報の取り扱いについて」を必ずお読みください。
「個人情報の取り扱いについて」に同意いただいた場合は「上記にご同意の上 確認画面へ進む」のボタンをクリックしてください。
個人情報の取り扱いについて
皆さまが送付された個人情報はアットホーム(株)のサーバを経由し、お問い合わせ先の不動産会社にメールまたはFAXにて転送されるためアットホーム(株)にも保管されます。アットホーム(株)で保管された個人情報の取り扱いについては、【こちら】をご覧ください。
また、本画面でご記入いただいた個人情報は、お問い合わせ先の不動産会社でも保管します。 お問い合わせ先の不動産会社が保管する個人情報の取り扱いについては、不動産会社に直接お問い合わせください。
東京都知事免許(2)第102065号 |
|---|
- 交通:
- JR山手線/新宿駅 徒歩1分
- 東京都新宿区新宿3丁目35-6 新宿アウンビル 9階
- TEL:
- 03-6709-8205
- FAX:
- 03-6709-8206
- 所属団体:
- (公社)東京都宅地建物取引業協会会員(公社)首都圏不動産公正取引協議会加盟
取引態様:仲介  - 00265108
|
- スマートフォンで
この不動産会社を見る

|
- 提携サイト等より掲載されている物件情報につきましては、不動産会社詳細情報にリンクされていないものがあります。
- 物件に関するお問合せは、物件詳細ページの「情報提供会社」に表示されている不動産会社へ直接お願いいたします。
- 間取図は、現況を優先させていただきます。
- 映像は物件の一部を撮影したものです。物件の契約にあたっての最終判断はご自身の判断に基づいて行ってください。
- 仲介手数料について

アットホームは物件情報の適正化に努めております。
内容に誤りがある場合にはこちらへご連絡ください。