東京都千代田区麹町2丁目(半蔵門駅)の賃貸:物件詳細
交通 所在地 |
駅徒歩 |
賃料 管理費等 |
敷金/保証金 礼金 |
間取り 面積 |
物件種目 築年月 |
|
東京メトロ半蔵門線/半蔵門
東京都千代田区麹町2丁目
|
2分
|
16.2万円
10,000円
|
1ヶ月 / なし
なし
|
1K
25.35m²
|
賃貸マンション
2014年10月(築11年1ヶ月)
|
ペット相談、角部屋、南向き、2面採光
|
|
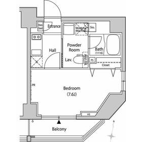
間取図
間取図
|
外観
|
<
その他の画像
>
|
| 交通 | 東京メトロ半蔵門線 半蔵門駅 徒歩2分 |
|---|
| その他の交通 | 東京メトロ有楽町線 麹町駅 徒歩3分 JR中央線 四ツ谷駅 徒歩11分 |
| 所在地 |
東京都千代田区麹町2丁目
|
| 物件種目 |
賃貸マンション |
| 賃料 |
16.2万円 |
管理費等 |
10,000円 |
| 敷金 / 保証金 |
1ヶ月 / なし |
礼金 |
なし |
| 敷引 |
- |
保証金償却 |
- |
| その他一時金 |
なし、鍵交換代等:37,400円~ |
保険等 |
要 |
| 維持費等 |
- |
| 間取り |
1K(洋室7.6帖) |
専有面積 |
25.35m² |
| 築年月 |
2014年10月(築11年1ヶ月)
|
階建 / 階 |
10階建 / 5階 |
| 建物構造 |
RC |
総戸数 |
- |
| 主要採光面 |
南 |
駐車場 |
無 |
| バイク置き場 |
無 |
駐輪場 |
有 330円/月 |
| 建物名・部屋番号 |
カーサスプレンディッド麹町 502 |
ペット |
小型犬可・ 猫可 |
| アピールポイント |
当社は都心・城南エリアに特化して物件をご紹介しております。エリアを限定することによって、当社の全スタッフが物件を熟知できるのは勿論ですが、街の詳しい情報や住んでいる・働いている人の属性をはじめとする地域の特徴、マーケティングについても精通しており、精度の高い有益な情報をお客様に提供することができます。全ての物件情報がネットに掲載されている訳ではありません。所有者の諸事情によって表に公開できない情報・書類の取り交わし前の情報など、ネットに掲載できない物件が沢山あります。これらの情報は当社の営業マンが一つ一つ足で稼いで取得したものであり、エリア周辺の事業会社や所有者との繋がりなど地域密着で真摯に営業しているからこそ、集められる情報です。当社ホームページでの物件情報量はどこにも負けません。サイト上に気になる物件がなかった方も、まずはお気軽にお問い合わせください。またInstagramでは「理想の家と出逢えるメディア」アカウントを運営しており、魅力的な新着物件を日々ご紹介しておりますので、物件探しをしている方は是非Instagramのアカウントもフォローして下さい! |
| リフォーム履歴 |
- |
| リノベーション履歴 |
- |
| 備考 |
賃貸保証等:利用可(●(初回保証委託料は賃料等の1ヶ月分、1年毎に1万円の保証委託料)●アイシンクレント(ご所有のクレジットカードで賃料保証と家財保険を決済。月額賃料等の4.25%+700円)
管理形態/管理員の勤務形態:-/巡回
管理人巡回
|
| エネルギー消費性能 |
- |
| 断熱性能 |
- |
| 目安光熱費 |
- |
| バス・トイレ |
バス・トイレ別、浴室乾燥機、洗面台、シャワー、温水洗浄便座、トイレ |
| キッチン |
システムキッチン、2口コンロ、ガスコンロ付 |
| セキュリティー |
オートロック、モニター付インターホン、ダブルロックドア |
| 収納 |
収納スペース、クローゼット、シューズボックス |
| 設備・サービス |
床暖房、室内洗濯機置場、都市ガス給湯、給湯、フローリング、都市ガス、エアコン、冷房 |
| TV・通信 |
インターネット対応、光ファイバー |
| その他 |
宅配BOX、バルコニー、駐輪場、エレベーター |
| 契約期間 |
2年 |
現況 |
空家 |
| 条件等 |
- |
入居可能時期 |
即時 |
| 更新料 |
新賃料 1ヶ月 |
物件番号 |
1129000009 |
| 情報公開日 |
2025年10月7日 |
次回更新予定日 |
2025年11月4日 |
| ケータイ用バーコード |
- スマートフォンでこの物件を見る
- スマートフォンからもこの物件をご覧になれます。
|
※「-」と表示されている項目については、情報提供会社にご確認ください。
| 周辺施設 |
半蔵門駅(東京メトロ 半蔵門線) |
| 距離 |
220m |
| 周辺施設 |
ユニクロ市ケ谷駅店 |
| 距離 |
1050m |
写真を見る |
| 周辺施設 |
ファミリーマート麹町一丁目店 |
| 距離 |
140m |
| 周辺施設 |
ビックカメラ赤坂見附駅店 |
| 距離 |
1200m |
| 周辺施設 |
スターバックスコーヒー麹町店 |
| 距離 |
150m |
ここから簡単にお問い合わせをすることができます。
(SSLでの暗号化での送信を希望されるお客さまは
こちら
よりお問い合わせください)
お問い合わせを行う前に
「個人情報の取り扱いについて」を必ずお読みください。
「個人情報の取り扱いについて」に同意いただいた場合は「上記にご同意の上 確認画面へ進む」のボタンをクリックしてください。
個人情報の取り扱いについて
皆さまが送付された個人情報はアットホーム(株)のサーバを経由し、お問い合わせ先の不動産会社にメールまたはFAXにて転送されるためアットホーム(株)にも保管されます。アットホーム(株)で保管された個人情報の取り扱いについては、【こちら】をご覧ください。
また、本画面でご記入いただいた個人情報は、お問い合わせ先の不動産会社でも保管します。 お問い合わせ先の不動産会社が保管する個人情報の取り扱いについては、不動産会社に直接お問い合わせください。
東京都知事免許(3)第97301号 |
|---|
- 交通:
- JR山手線/恵比寿駅 徒歩3分
- 東京都渋谷区東3丁目25ー11 TOKYU REIT恵比寿ビル4階
- TEL:
- 03-6421-0540
- FAX:
- 03-6421-0541
- 所属団体:
- (公社)全日本不動産協会会員
取引態様:仲介  - 00163198
|
- スマートフォンで
この不動産会社を見る

|
- 提携サイト等より掲載されている物件情報につきましては、不動産会社詳細情報にリンクされていないものがあります。
- 物件に関するお問合せは、物件詳細ページの「情報提供会社」に表示されている不動産会社へ直接お願いいたします。
- 間取図は、現況を優先させていただきます。
- 映像は物件の一部を撮影したものです。物件の契約にあたっての最終判断はご自身の判断に基づいて行ってください。
- 仲介手数料について

アットホームは物件情報の適正化に努めております。
内容に誤りがある場合にはこちらへご連絡ください。