不動産 賃貸 マンション等の住宅情報:埼玉住まい情報


東京都豊島区千早2丁目(千川駅)の賃貸:物件詳細

  • 物件詳細
  • 情報の見方
  • 印刷用画面
交通
所在地
駅徒歩 賃料
管理費等
敷金/保証金
礼金
間取り
面積
物件種目
築年月

東京メトロ有楽町線/千川 新着

東京都豊島区千早2丁目

9分

14.2万円

20,000円

なし / 1ヶ月

なし

ワンルーム

32.76m²

賃貸マンション

2026年1月
新築 

おすすめPOINTペット相談、角部屋、最上階、南向き、二人入居可、2面採光、24時間換気システム、IT重説対応物件

おすすめコメント

敷金・礼金無しで初期安で住めます(^^♪有楽町線千川駅徒歩10分圏内♪ペット相談可能!角部屋!2面採光!二人入居可能です♪弊社は内見時ご要望が無ければ現地待ち合わせになります。

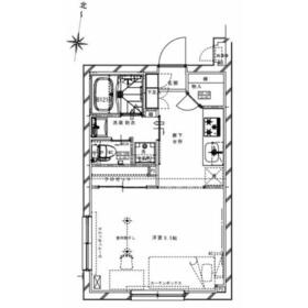
間取図

間取図

外観

外観

<
その他の画像
  • トイレ
  • キッチン
  • リビング
  • バス/シャワー
  • 室内
  • 玄関
  • 洗面
  • 収納
  • 設備
  • エントランス
  • 駐車場
  • 共有部分
  • ショッピング施設
  • ショッピング施設
  • コンビニ
  • コンビニ
  • 販売店
  • 販売店
  • 郵便局
  • 役所
>
    • とりあえず保存
    • お問い合わせ
    交通

    東京メトロ有楽町線 千川駅 徒歩9分

    その他の交通

    東京メトロ有楽町線 要町駅 徒歩9分

    西武池袋線 東長崎駅 徒歩12分

    所在地 東京都豊島区千早2丁目
    物件種目 賃貸マンション
    賃料 14.2万円 管理費等 20,000円
    敷金 / 保証金 なし / 1ヶ月 礼金 なし
    敷引 保証金償却
    その他一時金 契約事務手数料:11,000円、退去時ハウスクリーニング:60,500円、退去時エアコン分解清掃:16,500円 保険等 要 2年 20,000円
    維持費等 24時間生活サポート:1,650円/月
    間取り ワンルーム(洋室9.5畳) 専有面積 32.76m²
    築年月 2026年1月 新築  階建 / 階 4階建 / 4階
    建物構造 RC 総戸数
    主要採光面 駐車場
    バイク置き場 駐輪場
    建物名・部屋番号 リアルワン要町 404 ペット 相談
    アピールポイント 【物件広告について】
    ウソなし、駆け引きなし。不動産は正直がいちばん。
    情報は鮮度が命。だからルクラスは”今ある物件”しか載せません。

    【お客様の立場になり考える営業】
    物件名や住所が無い物は怪しいです!
    それが、囮広告の可能性があるので要注意です。

    ≪最新情報を誠実に伝える≫
    ルクラスではご案内に関しまして現地お待ち合わせになります♪
    要望を気軽に相談できる不動産。是非お問い合わせください。
    リフォーム履歴
    リノベーション履歴
    備考
    賃貸保証等:加入要(その他初回契約時:80%、月額:1.5%)
    管理形態/管理員の勤務形態:-/-
    IT重説対応物件
    エネルギー消費性能
    断熱性能
    目安光熱費
    バス・トイレ バス・トイレ別、浴室乾燥機、洗面所独立、温水洗浄便座
    キッチン システムキッチン、3口以上コンロ、ガスコンロ付
    セキュリティー モニター付オートロック、オートロック、モニター付インターホン、ダブルロックドア、防犯カメラ
    収納 全居室収納、収納スペース、クローゼット、シューズボックス
    設備・サービス 室内洗濯機置場、洗濯機置場、フローリング、都市ガス、エアコン
    TV・通信 インターネット使用料無料
    その他 宅配BOX、バイク置き場、駐輪場
    契約期間 2年 現況 空家
    条件等 入居可能時期 即時
    更新料 新賃料 1ヶ月 物件番号 1129199617
    情報公開日 2026年3月12日 次回更新予定日 2026年3月26日
    ケータイ用バーコード

    QRコード

    スマートフォンでこの物件を見る
    スマートフォンからもこの物件をご覧になれます。
    ※「-」と表示されている項目については、情報提供会社にご確認ください。

    この物件の周辺情報

    周辺施設 コープみらい 要町店
    距離 511m
    周辺施設 サミットストア 椎名町店
    距離 872m
    周辺施設 ファミリーマート 豊島要町二丁目店
    距離 610m
    周辺施設 セブンイレブン 豊島千早1丁目店
    距離 665m
    周辺施設 クリエイト薬局豊島要町店
    距離 459m
    周辺施設 薬マツモトキヨシ椎名町店
    距離 784m
    周辺施設 豊島千早郵便局
    距離 289m
    周辺施設 豊島区 西部子ども家庭支援センター
    距離 1246m

    クイックお問い合わせ

    ここから簡単にお問い合わせをすることができます。
    (SSLでの暗号化での送信を希望されるお客さまは こちら よりお問い合わせください)

    お問い合わせ内容(必須)
    お名前(必須) 姓  名 
    メールアドレス(必須)
    ※携帯電話のメールアドレスをご入力される方はこちらをご確認ください
    電話番号(必須)
    - -

    ※入力いただいた電話番号へSMSまたは音声でパスワードをご連絡します。

    携帯電話の番号をご入力の方へ

    携帯電話の番号をご入力の方へ
    確認画面にて送信ボタンをクリックするとSMSが携帯電話に届きます。
    そのSMSに記載のパスワード(認証番号)を入力し、お問い合わせを完了してください。
    尚、SMSの送信者番号は 0005 202 760 となります。
    これはアットホームの固定番号です。

    備考欄 希望条件、物件案内希望日、質問などがございましたらご記入ください。
    お問い合わせを行う前に「個人情報の取り扱いについて」を必ずお読みください。
    「個人情報の取り扱いについて」に同意いただいた場合は「上記にご同意の上 確認画面へ進む」のボタンをクリックしてください。

    個人情報の取り扱いについて

    皆さまが送付された個人情報はアットホーム(株)のサーバを経由し、お問い合わせ先の不動産会社にメールまたはFAXにて転送されるためアットホーム(株)にも保管されます。アットホーム(株)で保管された個人情報の取り扱いについては、【こちら】をご覧ください。
    また、本画面でご記入いただいた個人情報は、お問い合わせ先の不動産会社でも保管します。 お問い合わせ先の不動産会社が保管する個人情報の取り扱いについては、不動産会社に直接お問い合わせください。

    情報提供会社

    情報提供会社

    (株)ルクラス

    東京都知事免許(3)第97028号

    交通:
    JR山手線/新宿駅 徒歩3分
    東京都新宿区西新宿1丁目15-4-6F 
    TEL:
    03-6911-2228
    FAX:
    03-6911-2229
    所属団体:
    (公社)東京都宅地建物取引業協会会員
    (公社)首都圏不動産公正取引協議会加盟

    取引態様:仲介

    • 会社情報
    • 00161497
    スマートフォンで
    この不動産会社を見る
    QRコード
    • とりあえず保存
    • お問い合わせ
    • 提携サイト等より掲載されている物件情報につきましては、不動産会社詳細情報にリンクされていないものがあります。
    • 物件に関するお問合せは、物件詳細ページの「情報提供会社」に表示されている不動産会社へ直接お願いいたします。
    • 間取図は、現況を優先させていただきます。
    • 映像は物件の一部を撮影したものです。物件の契約にあたっての最終判断はご自身の判断に基づいて行ってください。
    • 仲介手数料について仲介手数料

    アットホームは物件情報の適正化に努めております。 内容に誤りがある場合にはこちらへご連絡ください。

    【埼玉住まい情報】では、日本全国の物件から賃貸マンションや賃貸アパート・賃貸一戸建て等の賃貸住宅情報、新築マンション・分譲マンションや中古マンション等の売買マンション情報、新築一戸建てや中古一戸建てなどの戸建住宅、 土地など、総合的な不動産住宅情報検索サービスを提供致します。
    【埼玉住まい情報】から、選りすぐりの不動産物件を探してみましょう。

    【免責事項】
    このコーナーの運営はアットホーム株式会社(https://www.athome.co.jp/)が行っています。
    このコーナーに掲載している物件情報は、「アットホーム不動産情報ネットワーク」に加盟する不動産会社等(情報提供元)から提供されています。信頼性の高い情報提供が行えるよう、最大限の努力をしておりますが、その内容を保証するものではありません。 利用者のみなさまと各情報提供元との取引に起因する損害および情報が掲載されたことに起因する損害等については、株式会社イーシティ埼玉、およびアットホームは一切責任を負いません。
    各物件情報の内容や画像等はすべて現況を優先させていただきます。
    お取引等(お取引の準備、資金調達等を含みます)の際には、内容や契約条件等について、各情報提供元より十分な説明を受け、ご自身でご確認の上、判断してください。
    このコーナーへの物件情報のご掲載、その他不動産業務ソリューション等についての不動産会社様のお問合せはこちらからお願いいたします。

    物件画像: