東京都文京区湯島3丁目(御茶ノ水駅)の賃貸:物件詳細
交通 所在地 |
駅徒歩 |
賃料 管理費等 |
敷金/保証金 礼金 |
間取り 面積 |
物件種目 築年月 |
|
JR中央線/御茶ノ水
東京都文京区湯島3丁目
|
8分
|
20.7万円
10,000円
|
1ヶ月 / なし
1ヶ月
|
1LDK
39.13m²
|
賃貸マンション
2006年2月(築19年11ヶ月)
|
ペット相談、楽器相談、常時ゴミ出し可能、高齢者相談、二人入居可、外観タイル張り、IT重説対応物件、保証人不要
|
|
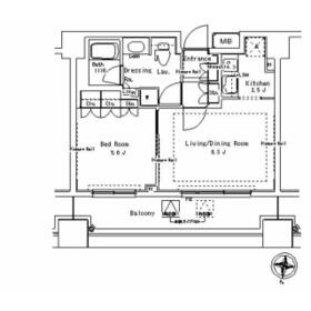
間取図
|
外観
きれいな外観です
|
<
その他の画像
>
|
| 交通 | JR中央線 御茶ノ水駅 徒歩8分 |
|---|
| その他の交通 | JR山手線 秋葉原駅 徒歩13分 東京メトロ銀座線 末広町駅 徒歩6分 |
| 所在地 |
東京都文京区湯島3丁目
|
| 物件種目 |
賃貸マンション |
| 賃料 |
20.7万円 |
管理費等 |
10,000円 |
| 敷金 / 保証金 |
1ヶ月 / なし |
礼金 |
1ヶ月 |
| 敷引 |
- |
保証金償却 |
- |
| その他一時金 |
室内清掃費用:59,400円、鍵交換代等:16,500円~ |
保険等 |
要 |
| 維持費等 |
口座振替事務手数料:110円/月 |
| 間取り |
1LDK(LDK10.8、洋5.6) |
専有面積 |
39.13m² |
| 築年月 |
2006年2月(築19年11ヶ月)
|
階建 / 階 |
地上13階地下2階建 / 12階 |
| 建物構造 |
RC |
総戸数 |
- |
| 主要採光面 |
北 |
駐車場 |
近有 40,000円/月 |
| バイク置き場 |
- |
駐輪場 |
有 |
| 建物名・部屋番号 |
パークアクシス御茶ノ水ステージ |
ペット |
相談 |
| アピールポイント |
収納はクロゼット・全居室収納など豊富なので、衣類や履き物の整理がしやすく便利です。セキュリティ面は、オートロック・TVインターホンなど充実しているので安心して生活できます。室内設備は浴室乾燥機・洗面化粧台などが揃っており、とても充実しています。共用部には宅配ボックス・ゴミ出し24時間OKなどが揃っており、とても充実しています。毎日の生活が楽しくなるお家、1LDKで広くて落ち着きます。どこの物件に引っ越そうか悩んでいる方へ、こちらは令和8年2月に入居予定の物件です。自転車を停めることが可能な物件です。この物件はバルコニー付きで、用途に合わせて利用できます。おかずや汁物など何品も作りたい人におすすめな2口コンロを設置しています。ぜひご覧になってください。12階のお部屋となっております。なんと専有面積が39.13平米もございます。 |
| リフォーム履歴 |
- |
| リノベーション履歴 |
- |
| 備考 |
賃貸保証等:加入要(初回保証委託料(最低20,000円):月額賃料等の50%、2年目以降:9,600円/年)
管理形態/管理員の勤務形態:-/日勤
バルコニー:12m²
IT重説対応物件、管理人日勤
セキュリティ面は、オートロック・TVインターホンなどを設置しているので安全面でも優れております。収納はクロゼット・全居室収納など豊富なので、衣類や履き物の整理がしやすく便利です。共用部には宅配ボックス・ゴミ出し24時間OKなどが揃っております。室内設備は洗面化粧台・浴室乾燥機などが揃っており、とても充実しています。駅から徒歩8分の位置にある物件なので、アクセスも良好です。こちらは1LDKの物件です。エアコン付きのマンションなので、快適に生活できます。エレベーター付き物件です。BS・CSでは、色々なジャンルの番組が視聴できます。床暖房が付いているのでエアコンやファンヒーターによる空気や肌の乾燥を防げます。防犯カメラが設置されているため犯罪への抑止力となり、防犯対策として優れています。
|
| エネルギー消費性能 |
- |
| 断熱性能 |
- |
| 目安光熱費 |
- |
| バス・トイレ |
バス・トイレ別、浴室乾燥機、追焚機能、温水洗浄便座、トイレ |
| キッチン |
システムキッチン、独立型キッチン、2口コンロ、ガスコンロ可、グリル |
| セキュリティー |
モニター付オートロック、オートロック、モニター付インターホン、ディンプルキー、ダブルロックドア、防犯カメラ |
| 収納 |
全居室収納、収納スペース、クローゼット |
| 設備・サービス |
床暖房、室内洗濯機置場、洗濯機置場、全居室フローリング、フローリング、都市ガス、エアコン、暖房、冷房 |
| TV・通信 |
インターネット対応、CATVインターネット、ケーブルTV、CS、BS端子 |
| その他 |
宅配BOX、バルコニー、駐輪場、エレベーター |
| 契約期間 |
2年 |
現況 |
居住中 |
| 条件等 |
- |
入居可能時期 |
2026年2月中旬予定 |
| 更新料 |
新賃料 1ヶ月 |
物件番号 |
1129211219 |
| 情報公開日 |
2025年12月11日 |
次回更新予定日 |
2025年12月25日 |
| ケータイ用バーコード |
- スマートフォンでこの物件を見る
- スマートフォンからもこの物件をご覧になれます。
|
※「-」と表示されている項目については、情報提供会社にご確認ください。
| 周辺施設 |
焼肉ジャンボ 本郷店 |
| 距離 |
716m |
写真を見る |
| 周辺施設 |
スターバックスコーヒー 本郷東大前店 |
| 距離 |
987m |
写真を見る |
| 周辺施設 |
肉のハナマサ 湯島店 |
| 距離 |
426m |
写真を見る |
| 周辺施設 |
WATERRAS COMMON(ワテラス コモン) |
| 距離 |
984m |
写真を見る |
| 周辺施設 |
大坪会(医療法人社団)東都文京病院 |
| 距離 |
59m |
写真を見る |
| 周辺施設 |
東京大学内郵便局 |
| 距離 |
949m |
写真を見る |
ここから簡単にお問い合わせをすることができます。
(SSLでの暗号化での送信を希望されるお客さまは
こちら
よりお問い合わせください)
お問い合わせを行う前に
「個人情報の取り扱いについて」を必ずお読みください。
「個人情報の取り扱いについて」に同意いただいた場合は「上記にご同意の上 確認画面へ進む」のボタンをクリックしてください。
個人情報の取り扱いについて
皆さまが送付された個人情報はアットホーム(株)のサーバを経由し、お問い合わせ先の不動産会社にメールまたはFAXにて転送されるためアットホーム(株)にも保管されます。アットホーム(株)で保管された個人情報の取り扱いについては、【こちら】をご覧ください。
また、本画面でご記入いただいた個人情報は、お問い合わせ先の不動産会社でも保管します。 お問い合わせ先の不動産会社が保管する個人情報の取り扱いについては、不動産会社に直接お問い合わせください。
東京都知事免許(1)第107337号 |
|---|
- 交通:
- JR山手線/新橋駅 徒歩5分
- 東京都中央区銀座8丁目11-1 GINZA GS BLD.2 7階
- TEL:
- 03-6281-4770
- FAX:
- 03-6281-4771
- 所属団体:
- (公社)東京都宅地建物取引業協会会員(公社)首都圏不動産公正取引協議会加盟
取引態様:仲介  - 00271811
|
- スマートフォンで
この不動産会社を見る

|
- 提携サイト等より掲載されている物件情報につきましては、不動産会社詳細情報にリンクされていないものがあります。
- 物件に関するお問合せは、物件詳細ページの「情報提供会社」に表示されている不動産会社へ直接お願いいたします。
- 間取図は、現況を優先させていただきます。
- 映像は物件の一部を撮影したものです。物件の契約にあたっての最終判断はご自身の判断に基づいて行ってください。
- 仲介手数料について

アットホームは物件情報の適正化に努めております。
内容に誤りがある場合にはこちらへご連絡ください。