兵庫県神戸市東灘区住吉東町2丁目(住吉駅)の賃貸:物件詳細
交通 所在地 |
駅徒歩 |
賃料 管理費等 |
敷金/保証金 礼金 |
間取り 面積 |
物件種目 築年月 |
|
JR東海道本線/住吉
兵庫県神戸市東灘区住吉東町2丁目
|
9分
|
11万円
5,000円
|
なし / なし
1ヶ月
|
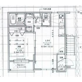
1LDK
35.24m²
|
賃貸アパート
2026年2月
|
角部屋、高齢者相談、二人入居可、IT重説対応物件
|
|
間取図
|
その他
|
その他の画像
|
| 交通 | JR東海道本線 住吉駅 徒歩9分 |
|---|
| その他の交通 | 阪神本線 魚崎駅 徒歩10分 阪急神戸線 御影駅 徒歩26分 |
| 所在地 |
兵庫県神戸市東灘区住吉東町2丁目
|
| 物件種目 |
賃貸アパート |
| 賃料 |
11万円 |
管理費等 |
5,000円 |
| 敷金 / 保証金 |
なし / なし |
礼金 |
1ヶ月 |
| 敷引 |
- |
保証金償却 |
- |
| その他一時金 |
退去時クリーニング代金:49,500円、安心入居サポート 2年間:19,800円 |
保険等 |
不要 |
| 維持費等 |
- |
クレジットカード決済 |
初期費用可 |
| 間取り |
1LDK |
専有面積 |
35.24m² |
| 築年月 |
2026年2月
|
階建 / 階 |
3階建 / 1階 |
| 建物構造 |
木造 |
総戸数 |
- |
| 主要採光面 |
|
駐車場 |
近有 18,000円/月 |
| バイク置き場 |
- |
駐輪場 |
有 |
| 建物名・部屋番号 |
(仮称)神戸市東灘区住吉東町PJ |
ペット |
-
|
| アピールポイント |
独立洗面化粧台が付いており、オシャレやメイクアップをする方におすすめの物件です。収納はクロゼット・シューズボックスなど豊富なので、広々と空間を利用することも可能です。システムキッチンは収納性に優れているため、キッチン回り物であふれるのを防げます。ぜひご覧いただきたい賃貸物件です。2つの路線が利用可能で、片方の路線にトラブルがあっても別ルートが使えます。角部屋で人通りが少なく、防犯的にも安心です。こちらはマンションタイプになります。CATV受信環境があり、地域に密着した独自の番組も楽しめます。この物件はバルコニー付きで、用途に合わせて活用できます。 |
| リフォーム履歴 |
- |
| リノベーション履歴 |
- |
| 備考 |
賃貸保証等:加入要(全保連 初回50% 1年毎13,000円)
管理形態/管理員の勤務形態:-/-
IT重説対応物件
物件のお問い合わせはSumoSumoまで♪♪
短期違約金あり:1年未満は2か月分、2年未満は1か月分の総賃料。
収納はシューズボックス・クロゼットなど豊富なので、衣類や履き物の整理がしやすく便利です。化粧品や洗面道具といった小物をまとめて収納できる独立洗面台があります。ラクラクネットが繋がるお住まい、高速回線を導入しています。過ごしやすい環境を実現する、エアコン付きの物件です。現在建設中です。風通し良好なお部屋なので、換気もしやすく清潔さを保てます。こちらの物件はマンションです。2口コンロが付いているので、同時に2つの料理できるので毎日忙しい人におすすめです。BSアンテナ設置済みのため、加入予定の方もスムーズにご契約頂けます。
|
| エネルギー消費性能 |
- |
| 断熱性能 |
- |
| 目安光熱費 |
- |
| バス・トイレ |
バス・トイレ別、シャワー付洗面化粧台、洗面所独立、洗面所、洗面台、シャワー、温水洗浄便座、トイレ |
| キッチン |
システムキッチン、2口コンロ、ガスコンロ可 |
| セキュリティー |
- |
| 収納 |
収納スペース、クローゼット、シューズボックス |
| 設備・サービス |
室内洗濯機置場、洗濯機置場、都市ガス給湯、給湯、都市ガス、エアコン、冷房 |
| TV・通信 |
インターネット対応、ケーブルTV、CS、BS端子 |
| その他 |
バルコニー、駐輪場 |
| 契約期間 |
2年 |
現況 |
未完成 |
| 条件等 |
- |
入居可能時期 |
2026年2月28日予定 |
| 更新料 |
- |
物件番号 |
1129368619 |
| 情報公開日 |
2025年12月11日 |
次回更新予定日 |
2025年12月25日 |
| ケータイ用バーコード |
- スマートフォンでこの物件を見る
- スマートフォンからもこの物件をご覧になれます。
|
※「-」と表示されている項目については、情報提供会社にご確認ください。
| 周辺施設 |
セブンイレブン 神戸魚崎北町4丁目店 |
| 距離 |
318m |
写真を見る |
| 周辺施設 |
ファミリーマート 神戸住吉宮町二丁目店 |
| 距離 |
524m |
写真を見る |
| 周辺施設 |
東灘警察署JR住吉駅前交番 |
| 距離 |
657m |
写真を見る |
| 周辺施設 |
生活協同組合コープこうべ シーア |
| 距離 |
633m |
写真を見る |
| 周辺施設 |
KOHYO(コーヨー) 住吉店 |
| 距離 |
692m |
写真を見る |
ここから簡単にお問い合わせをすることができます。
(SSLでの暗号化での送信を希望されるお客さまは
こちら
よりお問い合わせください)
お問い合わせを行う前に
「個人情報の取り扱いについて」を必ずお読みください。
「個人情報の取り扱いについて」に同意いただいた場合は「上記にご同意の上 確認画面へ進む」のボタンをクリックしてください。
個人情報の取り扱いについて
皆さまが送付された個人情報はアットホーム(株)のサーバを経由し、お問い合わせ先の不動産会社にメールまたはFAXにて転送されるためアットホーム(株)にも保管されます。アットホーム(株)で保管された個人情報の取り扱いについては、【こちら】をご覧ください。
また、本画面でご記入いただいた個人情報は、お問い合わせ先の不動産会社でも保管します。 お問い合わせ先の不動産会社が保管する個人情報の取り扱いについては、不動産会社に直接お問い合わせください。
国土交通大臣免許(2)第9550号 |
|---|
- 交通:
- 阪急神戸線/岡本駅 徒歩4分
- 兵庫県神戸市東灘区岡本1丁目9-9 甲南グランメール岡本1F
- TEL:
- 078-600-0540
- FAX:
- 078-200-5683
- 所属団体:
- (公社)全日本不動産協会会員(公社)近畿地区不動産公正取引協議会加盟
取引態様:仲介  - 50110320
|
- スマートフォンで
この不動産会社を見る

|
- 提携サイト等より掲載されている物件情報につきましては、不動産会社詳細情報にリンクされていないものがあります。
- 物件に関するお問合せは、物件詳細ページの「情報提供会社」に表示されている不動産会社へ直接お願いいたします。
- 間取図は、現況を優先させていただきます。
- 映像は物件の一部を撮影したものです。物件の契約にあたっての最終判断はご自身の判断に基づいて行ってください。
- 仲介手数料について

アットホームは物件情報の適正化に努めております。
内容に誤りがある場合にはこちらへご連絡ください。