福岡県福岡市博多区美野島2丁目(西鉄平尾駅)の賃貸:物件詳細
交通 所在地 |
駅徒歩 |
賃料 管理費等 |
敷金/保証金 礼金 |
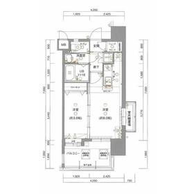
間取り 面積 |
物件種目 築年月 |
|
西鉄天神大牟田線/西鉄平尾
福岡県福岡市博多区美野島2丁目
|
15分
|
7.2万円
5,000円
|
なし / なし
1ヶ月
|
1LDK
29.75m²
|
賃貸マンション
2015年2月(築10年11ヶ月)
|
デザイナーズ、分譲タイプ、角部屋、IT重説対応物件
|
|
間取図
|
外観
|
<
その他の画像
>
|
| 交通 | 西鉄天神大牟田線 西鉄平尾駅 徒歩15分 |
|---|
| その他の交通 | 西鉄天神大牟田線 高宮駅 徒歩20分 JR鹿児島本線 博多駅 徒歩23分 |
| 所在地 |
福岡県福岡市博多区美野島2丁目
|
| 物件種目 |
賃貸マンション |
| 賃料 |
7.2万円 |
管理費等 |
5,000円 |
| 敷金 / 保証金 |
なし / なし |
礼金 |
1ヶ月 |
| 敷引 |
- |
保証金償却 |
- |
| その他一時金 |
なし |
保険等 |
要 |
| 維持費等 |
- |
クレジットカード決済 |
初期費用可 |
| 間取り |
1LDK(LDK8、洋3.8) |
専有面積 |
29.75m² |
| 築年月 |
2015年2月(築10年11ヶ月)
|
階建 / 階 |
12階建 / 4階 |
| 建物構造 |
RC |
総戸数 |
- |
| 主要採光面 |
|
駐車場 |
無 |
| バイク置き場 |
- |
駐輪場 |
- |
| 建物名・部屋番号 |
サヴォイ博多エレメンツ 401 |
ペット |
-
|
| アピールポイント |
セキュリティ面は、TVインターホン・オートロックなど充実しているので安心して生活できます。収納はシューズボックス・クロゼットなど豊富なので、広々と空間を利用することも可能です。洗面所は浴室から独立しており、お風呂の湿気で曇りにくくなっています。共用部には宅配ボックスを設置しているため、対面で荷物を受け取らなくて済みます。畳部屋の使用頻度が低い方向けの全居室フローリング設置。収納力と掃除のしやすさを同時に備えているシステムキッチンが付いています。こちらのお部屋で新しい生活を始めてみませんか。バルコニーをご活用いただける物件です。暑い日でも寒い日でも、エアコンのある物件なら安心です。こちらはマンションタイプになります。調べ物も買い物もパソコン一台で。インターネット有り物件で試してみて下さい。 |
| リフォーム履歴 |
- |
| リノベーション履歴 |
- |
| 備考 |
管理形態/管理員の勤務形態:-/日勤
IT重説対応物件、管理人日勤
収納はシューズボックス・クロゼットなどが備え付けられているので、衣類や日用品の収納に重宝します。洗面所が独立した、使い勝手の良い環境が魅力的なマンションです。セキュリティ面は、オートロック・TVインターホンなどを備え付けているので安心して暮らせます。共用部には宅配ボックスを設置しているため、家で何時間も待機する必要がありません。エアコン付きのマンションなので、快適に生活できます。扱いやすい材質が使われ抗菌性に優れているシステムキッチン付き。こちらの物件は自走式駐車場がご利用いただけます。こちらの物件はマンションです。2口コンロが付いているので複数の料理を作る時でも同時にサッと料理出来ます。風通しが良く、湿気やカビの心配が少ないマンションです。駅近くに立地する物件で、徒歩15分程でアクセスできます。
|
| エネルギー消費性能 |
- |
| 断熱性能 |
- |
| 目安光熱費 |
- |
| バス・トイレ |
バス・トイレ別、シャワー付洗面化粧台、洗面所独立、洗面所、洗面台、温水洗浄便座、トイレ |
| キッチン |
カウンターキッチン、システムキッチン、2口コンロ、ガスコンロ可 |
| セキュリティー |
モニター付オートロック、オートロック、モニター付インターホン、防犯カメラ |
| 収納 |
収納スペース、クローゼット、シューズボックス |
| 設備・サービス |
室内洗濯機置場、洗濯機置場、全居室フローリング、フローリング、プロパンガス、エアコン |
| TV・通信 |
インターネット対応 |
| その他 |
宅配BOX、バルコニー、エレベーター |
| 契約期間 |
2年 |
現況 |
居住中 |
| 条件等 |
- |
入居可能時期 |
相談 |
| 更新料 |
- |
物件番号 |
1129373319 |
| 情報公開日 |
2025年12月16日 |
次回更新予定日 |
2025年12月30日 |
| ケータイ用バーコード |
- スマートフォンでこの物件を見る
- スマートフォンからもこの物件をご覧になれます。
|
※「-」と表示されている項目については、情報提供会社にご確認ください。
| 周辺施設 |
【11/15オープン】ザ・大黒天 美野島店 |
| 距離 |
417m |
写真を見る |
| 周辺施設 |
MrMax(ミスターマックス) Select美野島店 |
| 距離 |
458m |
写真を見る |
| 周辺施設 |
セブンイレブン 博多美野島2丁目店 |
| 距離 |
167m |
写真を見る |
| 周辺施設 |
サンマート |
| 距離 |
1410m |
写真を見る |
| 周辺施設 |
平井クリニック |
| 距離 |
785m |
写真を見る |
ここから簡単にお問い合わせをすることができます。
(SSLでの暗号化での送信を希望されるお客さまは
こちら
よりお問い合わせください)
お問い合わせを行う前に
「個人情報の取り扱いについて」を必ずお読みください。
「個人情報の取り扱いについて」に同意いただいた場合は「上記にご同意の上 確認画面へ進む」のボタンをクリックしてください。
個人情報の取り扱いについて
皆さまが送付された個人情報はアットホーム(株)のサーバを経由し、お問い合わせ先の不動産会社にメールまたはFAXにて転送されるためアットホーム(株)にも保管されます。アットホーム(株)で保管された個人情報の取り扱いについては、【こちら】をご覧ください。
また、本画面でご記入いただいた個人情報は、お問い合わせ先の不動産会社でも保管します。 お問い合わせ先の不動産会社が保管する個人情報の取り扱いについては、不動産会社に直接お問い合わせください。
福岡県知事免許(1)第20747号 |
|---|
- 交通:
- 西鉄天神大牟田線/薬院駅 徒歩5分 【バス】 渡辺通1丁目 停歩5分
- 福岡県福岡市中央区白金1丁目4-25 セントラルイマージュ405
- TEL:
- 092-707-2622
- FAX:
- 092-707-2623
- 所属団体:
- (公社)福岡県宅地建物取引業協会会員(一社)九州不動産公正取引協議会加盟
取引態様:仲介  - 80507977
|
- スマートフォンで
この不動産会社を見る

|
- 提携サイト等より掲載されている物件情報につきましては、不動産会社詳細情報にリンクされていないものがあります。
- 物件に関するお問合せは、物件詳細ページの「情報提供会社」に表示されている不動産会社へ直接お願いいたします。
- 間取図は、現況を優先させていただきます。
- 映像は物件の一部を撮影したものです。物件の契約にあたっての最終判断はご自身の判断に基づいて行ってください。
- 仲介手数料について

アットホームは物件情報の適正化に努めております。
内容に誤りがある場合にはこちらへご連絡ください。