兵庫県神戸市中央区加納町3丁目(三ノ宮駅)の賃貸:物件詳細
交通 所在地 |
駅徒歩 |
賃料 管理費等 |
敷金/保証金 礼金 |
間取り 面積 |
物件種目 築年月 |
|
JR東海道本線/三ノ宮
兵庫県神戸市中央区加納町3丁目
|
6分
|
5.8万円
5,000円
|
なし / なし
なし
|
1K
19.81m²
|
賃貸マンション
2002年12月(築23年6ヶ月)
|
デザイナーズ、分譲タイプ、常時ゴミ出し可能、外観タイル張り、IT重説対応物件
|
|
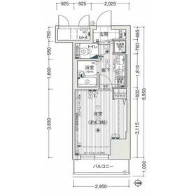
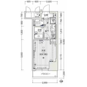
間取図
広めの使いやすい間取りですね
|
外観
落ち着いた雰囲気の外観です
|
<
その他の画像
>
|
| 交通 | JR東海道本線 三ノ宮駅 徒歩6分 |
|---|
| その他の交通 | 地下鉄海岸線 三宮・花時計前駅 徒歩10分 地下鉄海岸線 旧居留地・大丸前駅 徒歩14分 |
| 所在地 |
兵庫県神戸市中央区加納町3丁目
|
| 物件種目 |
賃貸マンション |
| 賃料 |
5.8万円 |
管理費等 |
5,000円 |
| 敷金 / 保証金 |
なし / なし |
礼金 |
なし |
| 敷引 |
- |
保証金償却 |
- |
| その他一時金 |
室内清掃費用:19,800円、鍵交換代等:22,000円~ |
保険等 |
要 2年 20,000円 |
| 維持費等 |
- |
クレジットカード決済 |
初期費用可 |
| 間取り |
1K |
専有面積 |
19.81m² |
| 築年月 |
2002年12月(築23年6ヶ月)
|
階建 / 階 |
15階建 / 8階 |
| 建物構造 |
SRC |
総戸数 |
- |
| 主要採光面 |
西 |
駐車場 |
近有 30,000円/月 |
| バイク置き場 |
- |
駐輪場 |
有 2,400円/月 |
| 建物名・部屋番号 |
ロイヤルヒル神戸三ノ宮 810 |
ペット |
-
|
| アピールポイント |
共用部には宅配ボックス・ゴミ出し24時間OKなどが備わっておりとても充実しています。TVインターフォン付きの、セキュリティに配慮した物件です。室内設備はCATV・エアコン・BS・CSなど充実した設備を備え付けています。収納はシューズボックス・クロゼットなどが備え付けられているので、衣類や日用品の収納に重宝します。風通しのよさが魅力の物件です。自宅でパソコンを使う方には、初めからインターネットの設置されたお部屋が便利です。新居にかかわることは我々にお尋ねください。入居日などからお受けいたします。こちらの物件はマンションです。お住まいをお探しなら、5.8万円の物件はいかがでしょうか。フローリング仕様の物件です。バルコニー付きの物件です。 |
| リフォーム履歴 |
- |
| リノベーション履歴 |
- |
| 備考 |
賃貸保証等:加入要(初回保証料 総賃料等50%更新料 10,000円)
管理形態/管理員の勤務形態:-/-
バルコニー:3m²
IT重説対応物件
こだわりポイント満載のロイヤルヒル神戸三ノ宮。徒歩18分の距離に神戸市立神戸生田中学校があるのも魅力。francへのご連絡をお願い致します。神戸市中央区の東海道本線三ノ宮周辺なら当社で幅広くお探しいただけます。
収納はシューズボックス・クロゼットなど豊富なので、衣類や履き物の整理がしやすく便利です。室内設備はエアコン・BS・CS・CATVなど豊富に揃っており、過ごしやすいお部屋になっております。共用部には宅配ボックス・ゴミ出し24時間OKなど様々な設備やサービスが揃っているので便利です。玄関先まで覗き穴を覗きに行かなくてもインターホン越しに誰が来たのかを確認できるので安心感があります。魅力的な駅近の物件で、駅まで徒歩6分です。3平米のバルコニーがあります。お引っ越しの日や物件の事についてはご相談ください。こちらは1ヶ月の家賃が5.8万円のお部屋です。駐輪場付きのマンションです。共用設備の充実している、楽しく生活できるマンションです。こちらの物件、通風良好な居住環境でどなた様の健康にも良いおすすめのマンションです。
|
| エネルギー消費性能 |
- |
| 断熱性能 |
- |
| 目安光熱費 |
- |
| バス・トイレ |
バス・トイレ別、シャワー、温水洗浄便座、トイレ |
| キッチン |
IHクッキングヒーター |
| セキュリティー |
モニター付インターホン、ディンプルキー |
| 収納 |
収納スペース、クローゼット、シューズボックス |
| 設備・サービス |
室内洗濯機置場、洗濯機置場、都市ガス給湯、給湯、フローリング、都市ガス、エアコン |
| TV・通信 |
インターネット対応、ケーブルTV、CS、BS端子 |
| その他 |
宅配BOX、バルコニー、駐輪場、エレベーター |
| 契約期間 |
2年 |
現況 |
空家 |
| 条件等 |
- |
入居可能時期 |
相談 |
| 更新料 |
- |
物件番号 |
1129537112 |
| 情報公開日 |
2026年3月26日 |
次回更新予定日 |
2026年5月23日 |
| ケータイ用バーコード |
- スマートフォンでこの物件を見る
- スマートフォンからもこの物件をご覧になれます。
|
※「-」と表示されている項目については、情報提供会社にご確認ください。
ここから簡単にお問い合わせをすることができます。
(SSLでの暗号化での送信を希望されるお客さまは
こちら
よりお問い合わせください)
お問い合わせを行う前に
「個人情報の取り扱いについて」を必ずお読みください。
「個人情報の取り扱いについて」に同意いただいた場合は「上記にご同意の上 確認画面へ進む」のボタンをクリックしてください。
個人情報の取り扱いについて
皆さまが送付された個人情報はアットホーム(株)のサーバを経由し、お問い合わせ先の不動産会社にメールまたはFAXにて転送されるためアットホーム(株)にも保管されます。アットホーム(株)で保管された個人情報の取り扱いについては、【こちら】をご覧ください。
また、本画面でご記入いただいた個人情報は、お問い合わせ先の不動産会社でも保管します。 お問い合わせ先の不動産会社が保管する個人情報の取り扱いについては、不動産会社に直接お問い合わせください。
国土交通大臣免許(1)第11032号 |
|---|
- 交通:
- JR東海道本線/三ノ宮駅 徒歩5分
- 兵庫県神戸市中央区二宮町4丁目7-7 101号
- TEL:
- 078-855-7936
- FAX:
- 078-855-7937
- 所属団体:
- (公社)全日本不動産協会会員(公社)近畿地区不動産公正取引協議会加盟
取引態様:仲介  - 50106463
|
- スマートフォンで
この不動産会社を見る

|
- 提携サイト等より掲載されている物件情報につきましては、不動産会社詳細情報にリンクされていないものがあります。
- 物件に関するお問合せは、物件詳細ページの「情報提供会社」に表示されている不動産会社へ直接お願いいたします。
- 間取図は、現況を優先させていただきます。
- 映像は物件の一部を撮影したものです。物件の契約にあたっての最終判断はご自身の判断に基づいて行ってください。
- 仲介手数料について

アットホームは物件情報の適正化に努めております。
内容に誤りがある場合にはこちらへご連絡ください。