東京都港区麻布台1丁目(六本木一丁目駅)の賃貸:物件詳細
交通 所在地 |
駅徒歩 |
賃料 管理費等 |
敷金/保証金 礼金 |
間取り 面積 |
物件種目 築年月 |
|
東京メトロ南北線/六本木一丁目
東京都港区麻布台1丁目
|
1分
|
209万円
なし
|
2ヶ月 / なし
1ヶ月
|
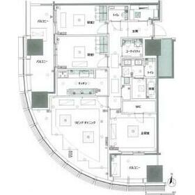
3LDK
117.12m²
|
賃貸マンション
2025年10月
|
ペット相談、分譲タイプ、フロントサービス、常時ゴミ出し可能、角部屋、24時間セキュリティー、24時間換気システム、IT重説対応物件
|
|
間取図
|
外観
|
<
その他の画像
>
|
| 交通 | 東京メトロ南北線 六本木一丁目駅 徒歩1分 |
|---|
| その他の交通 | 東京メトロ日比谷線 神谷町駅 徒歩7分 都営大江戸線 麻布十番駅 徒歩12分 |
| 所在地 |
東京都港区麻布台1丁目
|
| 物件種目 |
賃貸マンション |
| 賃料 |
209万円 |
管理費等 |
なし |
| 敷金 / 保証金 |
2ヶ月 / なし |
礼金 |
1ヶ月 |
| 敷引 |
- |
保証金償却 |
- |
| その他一時金 |
鍵費用:35,000円、駐車場代:110,000円 |
保険等 |
要 |
| 維持費等 |
- |
クレジットカード決済 |
初期費用可 |
| 間取り |
3LDK |
専有面積 |
117.12m² |
| 築年月 |
2025年10月
|
階建 / 階 |
地上64階地下5階建 / 20階 |
| 建物構造 |
RC |
総戸数 |
- |
| 主要採光面 |
|
駐車場 |
有 無料 |
| バイク置き場 |
有 |
駐輪場 |
- |
| 建物名・部屋番号 |
麻布台ヒルズレジデンスB棟 |
ペット |
相談 |
| アピールポイント |
短期解約違約金有り/ペット飼育時敷金積み増し1カ月償却、犬飼育時登録料有、詳細はお問い合わせください/ライフライン指定特約有/引越時注意事項あり/麻布小学校学区域/駐車場:要確認/東京の高級賃貸や高級不動産の仲介・管理・売買をお探しの方は、高級物件専門のプライムコーポレーションへお気軽にご相談下さい。分譲賃貸マンション、戸建、テラスハウス、タワーマンション、デザイナーズ物件などの豊富なファミリー物件情報を取り揃えております。海外転勤・国内転勤・条件交渉等お任せ下さい。 |
| リフォーム履歴 |
- |
| リノベーション履歴 |
- |
| 備考 |
賃貸保証等:加入要(詳細はお問い合わせください。)
管理形態/管理員の勤務形態:-/-
IT重説対応物件
|
| エネルギー消費性能 |
- |
| 断熱性能 |
- |
| 目安光熱費 |
- |
| バス・トイレ |
バス・トイレ別、浴室乾燥機、洗面所独立、温水洗浄便座 |
| キッチン |
システムキッチン、3口以上コンロ、ガスコンロ可 |
| セキュリティー |
モニター付インターホン、防犯カメラ |
| 収納 |
全居室収納、収納スペース、トランクルーム、シューズインクローゼット、シューズボックス |
| 設備・サービス |
室内洗濯機置場、フローリング、エアコン |
| TV・通信 |
CS、BS端子 |
| その他 |
宅配BOX、バイク置き場、バルコニー、エレベーター |
| 契約期間 |
2年 |
現況 |
完成済 |
| 条件等 |
- |
入居可能時期 |
即時 |
| 更新料 |
新賃料 1ヶ月 |
物件番号 |
1129642717 |
| 情報公開日 |
2026年3月13日 |
次回更新予定日 |
2026年3月14日 |
| ケータイ用バーコード |
- スマートフォンでこの物件を見る
- スマートフォンからもこの物件をご覧になれます。
|
※「-」と表示されている項目については、情報提供会社にご確認ください。
| 周辺施設 |
港区立麻布小学校 |
| 距離 |
280m |
写真を見る |
| 周辺施設 |
まいばすけっと 六本木1丁目店 |
| 距離 |
304m |
写真を見る |
| 周辺施設 |
成城石井 赤坂アークヒルズ店 |
| 距離 |
591m |
写真を見る |
| 周辺施設 |
ファミリーマート 六本木一丁目店 |
| 距離 |
86m |
写真を見る |
| 周辺施設 |
ローソン 六本木三丁目店 |
| 距離 |
396m |
写真を見る |
| 周辺施設 |
横川省三記念公園 |
| 距離 |
126m |
写真を見る |
ここから簡単にお問い合わせをすることができます。
(SSLでの暗号化での送信を希望されるお客さまは
こちら
よりお問い合わせください)
お問い合わせを行う前に
「個人情報の取り扱いについて」を必ずお読みください。
「個人情報の取り扱いについて」に同意いただいた場合は「上記にご同意の上 確認画面へ進む」のボタンをクリックしてください。
個人情報の取り扱いについて
皆さまが送付された個人情報はアットホーム(株)のサーバを経由し、お問い合わせ先の不動産会社にメールまたはFAXにて転送されるためアットホーム(株)にも保管されます。アットホーム(株)で保管された個人情報の取り扱いについては、【こちら】をご覧ください。
また、本画面でご記入いただいた個人情報は、お問い合わせ先の不動産会社でも保管します。 お問い合わせ先の不動産会社が保管する個人情報の取り扱いについては、不動産会社に直接お問い合わせください。
東京都知事免許(4)第86964号 |
|---|
- 交通:
- JR山手線/新橋駅 徒歩4分
- 東京都港区新橋3丁目7-3 ステージ新橋4階
- TEL:
- 03-5157-2525
- FAX:
- 03-5157-2526
- 所属団体:
- (公社)東京都宅地建物取引業協会会員(公社)首都圏不動産公正取引協議会加盟
取引態様:仲介  - 00265554
|
- スマートフォンで
この不動産会社を見る

|
- 提携サイト等より掲載されている物件情報につきましては、不動産会社詳細情報にリンクされていないものがあります。
- 物件に関するお問合せは、物件詳細ページの「情報提供会社」に表示されている不動産会社へ直接お願いいたします。
- 間取図は、現況を優先させていただきます。
- 映像は物件の一部を撮影したものです。物件の契約にあたっての最終判断はご自身の判断に基づいて行ってください。
- 仲介手数料について

アットホームは物件情報の適正化に努めております。
内容に誤りがある場合にはこちらへご連絡ください。