兵庫県神戸市北区谷上南町(谷上駅)の賃貸:物件詳細
交通 所在地 |
駅徒歩 |
賃料 管理費等 |
敷金/保証金 礼金 |
間取り 面積 |
物件種目 築年月 |
|
神戸電鉄有馬線/谷上
兵庫県神戸市北区谷上南町
|
12分
|
20万円
なし
|
1ヶ月 / なし
2ヶ月
|
3LDK
100.30m²
|
賃貸一戸建て
2004年6月(築21年7ヶ月)
|
ペット相談、楽器相談、駐車場2台分、高齢者相談、二人入居可、事務所使用可、閑静な住宅街
|
|
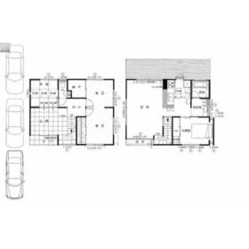
間取図
谷上戸建て(Good Home)
|
外観
谷上戸建て(Good Home)
|
<
その他の画像
>
|
| 交通 | 神戸電鉄有馬線 谷上駅 徒歩12分 |
|---|
| その他の交通 | 神戸電鉄有馬線 花山駅 徒歩13分 神戸電鉄有馬線 箕谷駅 徒歩35分 |
| 所在地 |
兵庫県神戸市北区谷上南町
|
| 物件種目 |
賃貸一戸建て |
| 賃料 |
20万円 |
管理費等 |
なし |
| 敷金 / 保証金 |
1ヶ月 / なし |
礼金 |
2ヶ月 |
| 敷引 |
- |
保証金償却 |
- |
| その他一時金 |
なし |
保険等 |
要 |
| 維持費等 |
- |
| 間取り |
3LDK |
専有面積 |
100.30m² |
| 築年月 |
2004年6月(築21年7ヶ月)
|
階建 / 階 |
2階建 |
| 建物構造 |
木造 |
総戸数 |
- |
| 主要採光面 |
|
駐車場 |
有 無料 |
| バイク置き場 |
有 無料 |
駐輪場 |
有 無料 |
| 建物名・部屋番号 |
谷上戸建 |
ペット |
小型犬可 |
| アピールポイント |
風通しが良い物件で快適な生活を。こちらは駐3台付物件なので、車3台まで駐車できます。苦手な片付けも収納豊富な物件ですので安心です。三口コンロが付いている物件です。駐車スペースは3台分の空きあり。フローリング仕様の物件です。収納はクロゼット・シューズボックスなどが備え付けられているので、衣類や日用品の収納に重宝します。知らない人が来た時でも玄関を開けずに顔を確認できるTVインターホンが付いております。 |
| リフォーム履歴 |
- |
| リノベーション履歴 |
- |
| 備考 |
賃貸保証等:加入要(日本セーフティー 初回委託料総家賃50%月¥800、引落し手数料¥440)
管理形態/管理員の勤務形態:-/-
駐車場3台ご利用いただける一戸建てです。インターホン越しに来訪者を確認できるので、トラブルを回避しやすくなります。新生活を失敗せず、スタートさせたいならこちらの「谷上戸建」はいかがでしょうか。快適な環境で新生活をはじめるならGood Homeで条件に合った住まいをお選びください。
2駅利用可物件なので、よく電車を利用する方にピッタリですね。収納力豊富で、整理整頓をスムーズに行いたい方におすすめです。ついつい後回しになる掃除。フローリングなら楽々です。こちらはペット相談可の物件なので、事前にご相談いただけます。たっぷりとした駐車スペースが魅力。3台までOKです。専用庭があってガーデニング等使い方はさまざま。室内設備もとても充実しています。
|
| エネルギー消費性能 |
- |
| 断熱性能 |
- |
| 目安光熱費 |
- |
| バス・トイレ |
バス・トイレ別、シャワー付洗面化粧台、洗面所独立、洗面所、シャワー、温水洗浄便座、トイレ |
| キッチン |
カウンターキッチン、システムキッチン、食器洗浄乾燥機、3口以上コンロ、ガスコンロ可 |
| セキュリティー |
モニター付インターホン |
| 収納 |
収納スペース、クローゼット、シューズボックス |
| 設備・サービス |
室内洗濯機置場、洗濯機置場、フローリング、都市ガス |
| TV・通信 |
- |
| その他 |
バイク置き場、専用庭、駐輪場 |
| 契約期間 |
5年 |
現況 |
空家 |
| 条件等 |
定期借家 |
入居可能時期 |
即時 |
| 更新料 |
- |
物件番号 |
1129681515 |
| 情報公開日 |
2025年10月8日 |
次回更新予定日 |
2025年12月6日 |
| ケータイ用バーコード |
- スマートフォンでこの物件を見る
- スマートフォンからもこの物件をご覧になれます。
|
※「-」と表示されている項目については、情報提供会社にご確認ください。
| 周辺施設 |
谷上駅(神戸電鉄・神戸市営地下鉄) |
| 距離 |
960m |
写真を見る |
| 周辺施設 |
花山駅(神戸電鉄) |
| 距離 |
1002m |
写真を見る |
| 周辺施設 |
出光セルフ谷上SS |
| 距離 |
762m |
写真を見る |
| 周辺施設 |
神戸市立谷上小学校 |
| 距離 |
1247m |
写真を見る |
| 周辺施設 |
ラ・ムー谷上店 |
| 距離 |
1401m |
写真を見る |
| 周辺施設 |
業務スーパー箕谷店 |
| 距離 |
1708m |
写真を見る |
| 周辺施設 |
ローソン 神戸谷上東町店 |
| 距離 |
269m |
写真を見る |
| 周辺施設 |
ファミリーマート 神鉄谷上駅前店 |
| 距離 |
946m |
写真を見る |
ここから簡単にお問い合わせをすることができます。
(SSLでの暗号化での送信を希望されるお客さまは
こちら
よりお問い合わせください)
お問い合わせを行う前に
「個人情報の取り扱いについて」を必ずお読みください。
「個人情報の取り扱いについて」に同意いただいた場合は「上記にご同意の上 確認画面へ進む」のボタンをクリックしてください。
個人情報の取り扱いについて
皆さまが送付された個人情報はアットホーム(株)のサーバを経由し、お問い合わせ先の不動産会社にメールまたはFAXにて転送されるためアットホーム(株)にも保管されます。アットホーム(株)で保管された個人情報の取り扱いについては、【こちら】をご覧ください。
また、本画面でご記入いただいた個人情報は、お問い合わせ先の不動産会社でも保管します。 お問い合わせ先の不動産会社が保管する個人情報の取り扱いについては、不動産会社に直接お問い合わせください。
兵庫県知事免許(1)第12493号 |
|---|
- 交通:
- 神戸電鉄三田線/岡場駅 徒歩7分
- 兵庫県神戸市北区有野中町2丁目14-17
- TEL:
- 078-982-2600
- FAX:
- 078-982-2602
- 所属団体:
- (一社)兵庫県宅地建物取引業協会会員(公社)近畿地区不動産公正取引協議会加盟
取引態様:仲介  - 50109066
|
- スマートフォンで
この不動産会社を見る

|
- 提携サイト等より掲載されている物件情報につきましては、不動産会社詳細情報にリンクされていないものがあります。
- 物件に関するお問合せは、物件詳細ページの「情報提供会社」に表示されている不動産会社へ直接お願いいたします。
- 間取図は、現況を優先させていただきます。
- 映像は物件の一部を撮影したものです。物件の契約にあたっての最終判断はご自身の判断に基づいて行ってください。
- 仲介手数料について

アットホームは物件情報の適正化に努めております。
内容に誤りがある場合にはこちらへご連絡ください。