東京都新宿区高田馬場3丁目(高田馬場駅)の賃貸:物件詳細
交通 所在地 |
駅徒歩 |
賃料 管理費等 |
敷金/保証金 礼金 |
間取り 面積 |
物件種目 築年月 |
|
JR山手線/高田馬場
東京都新宿区高田馬場3丁目
|
3分
|
13.7万円
12,000円
|
なし / なし
1ヶ月
|
1K
26.47m²
|
賃貸マンション
2020年5月(築5年6ヶ月)
|
デザイナーズ、常時ゴミ出し可能、角部屋、全室2面採光、2面採光、24時間換気システム、閑静な住宅街、IT重説対応物件、保証人不要
|
|
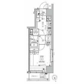
間取図
|
外観
|
<
その他の画像
>
|
| 交通 | JR山手線 高田馬場駅 徒歩3分 |
|---|
| その他の交通 | 東京メトロ東西線 高田馬場駅 徒歩3分 西武新宿線 下落合駅 徒歩11分 |
| 所在地 |
東京都新宿区高田馬場3丁目
|
| 物件種目 |
賃貸マンション |
| 賃料 |
13.7万円 |
管理費等 |
12,000円 |
| 敷金 / 保証金 |
なし / なし |
礼金 |
1ヶ月 |
| 敷引 |
- |
保証金償却 |
- |
| その他一時金 |
契約事務手数料:11,000円、除菌消臭代:11,000円、アクト安心ライフ24:16,500円、鍵交換代等:33,000円~ |
保険等 |
要 2年 20,000円 |
| 維持費等 |
- |
| 間取り |
1K(洋6.8、K2) |
専有面積 |
26.47m² |
| 築年月 |
2020年5月(築5年6ヶ月)
|
階建 / 階 |
10階建 / 8階 |
| 建物構造 |
RC |
総戸数 |
- |
| 主要採光面 |
北東 |
駐車場 |
- |
| バイク置き場 |
- |
駐輪場 |
有 500円/月 |
| 建物名・部屋番号 |
ドムス・スタイル高田馬場 |
ペット |
-
|
| アピールポイント |
セキュリティ面は、TVインターホン・オートロックなど充実しているので、防犯対策もばっちりです。共用部にはゴミ出し24時間OK・宅配ボックスなどが揃っております。収納はシューズボックス・クロゼット・全居室収納など豊富なので、衣類や履き物の整理がしやすく便利です。室内設備は洗面所独立・浴室乾燥機など大変充実しております。令和7年10月にご入居可能予定です。お仕事でパソコンを使う方に好評の光回線導入の物件です。犯罪抑止力を高める防犯カメラの付いたマンションです。自分の生活に合わせてごみが捨てられるのが敷地内ごみ置き場です。フローリングは木の持つ風合い、自然な暖かみが魅力です。こちらの物件はエレベーター付きです。駅から徒歩3分というアクセス良好な駅近物件はいかがですか。 |
| リフォーム履歴 |
- |
| リノベーション履歴 |
- |
| 備考 |
賃貸保証等:加入要(初回保証料:総賃料の50% 月/1.2%)
管理形態/管理員の勤務形態:-/巡回
IT重説対応物件、管理人巡回
短期違約金あり:1年未満は賃料の1ヶ月分
|
| エネルギー消費性能 |
- |
| 断熱性能 |
- |
| 目安光熱費 |
- |
| バス・トイレ |
バス・トイレ別、浴室乾燥機、追焚機能、洗面所独立、洗面所、洗面台、シャワー、温水洗浄便座、トイレ |
| キッチン |
システムキッチン、2口コンロ、ガスコンロ付、ガスコンロ可 |
| セキュリティー |
モニター付オートロック、オートロック、モニター付インターホン、ディンプルキー、ダブルロックドア、防犯カメラ |
| 収納 |
全居室収納、収納スペース、クローゼット、シューズボックス |
| 設備・サービス |
全居室エアコン、室内洗濯機置場、洗濯機置場、都市ガス給湯、給湯、全居室フローリング、フローリング、都市ガス、エアコン、冷房、間接照明 |
| TV・通信 |
インターネット対応、インターネット使用料無料、光ファイバー、CS、BS端子 |
| その他 |
宅配BOX、バルコニー、駐輪場、エレベーター |
| 契約期間 |
2年 |
現況 |
空家 |
| 条件等 |
- |
入居可能時期 |
即時 |
| 更新料 |
新賃料 1ヶ月 |
物件番号 |
1129692212 |
| 情報公開日 |
2025年7月15日 |
次回更新予定日 |
2025年11月8日 |
| ケータイ用バーコード |
- スマートフォンでこの物件を見る
- スマートフォンからもこの物件をご覧になれます。
|
※「-」と表示されている項目については、情報提供会社にご確認ください。
| 周辺施設 |
東京美容専門学校 |
| 距離 |
202m |
写真を見る |
| 周辺施設 |
東京アニメーションカレッジ専門学校 |
| 距離 |
369m |
写真を見る |
| 周辺施設 |
ケンタッキーフライドチキン 高田馬場四丁目店 |
| 距離 |
493m |
写真を見る |
| 周辺施設 |
ドミノ・ピザ Domino'sPizza高田馬場 |
| 距離 |
471m |
写真を見る |
| 周辺施設 |
ファミリー弁当高田馬場本店 |
| 距離 |
564m |
写真を見る |
| 周辺施設 |
西友 高田馬場店 |
| 距離 |
393m |
写真を見る |
| 周辺施設 |
まいばすけっと 高田馬場駅北店 |
| 距離 |
444m |
写真を見る |
| 周辺施設 |
オーケー 高田馬場店 |
| 距離 |
527m |
写真を見る |
ここから簡単にお問い合わせをすることができます。
(SSLでの暗号化での送信を希望されるお客さまは
こちら
よりお問い合わせください)
お問い合わせを行う前に
「個人情報の取り扱いについて」を必ずお読みください。
「個人情報の取り扱いについて」に同意いただいた場合は「上記にご同意の上 確認画面へ進む」のボタンをクリックしてください。
個人情報の取り扱いについて
皆さまが送付された個人情報はアットホーム(株)のサーバを経由し、お問い合わせ先の不動産会社にメールまたはFAXにて転送されるためアットホーム(株)にも保管されます。アットホーム(株)で保管された個人情報の取り扱いについては、【こちら】をご覧ください。
また、本画面でご記入いただいた個人情報は、お問い合わせ先の不動産会社でも保管します。 お問い合わせ先の不動産会社が保管する個人情報の取り扱いについては、不動産会社に直接お問い合わせください。
東京都知事免許(1)第111458号 |
|---|
- 交通:
- JR山手線/新大久保駅 徒歩5分
- 東京都新宿区百人町1丁目5-4 東都ビル601
- TEL:
- 03-6273-9822
- FAX:
- 03-6273-9823
- 所属団体:
- (公社)東京都宅地建物取引業協会会員(公社)首都圏不動産公正取引協議会加盟
取引態様:仲介  - 00278411
|
- スマートフォンで
この不動産会社を見る

|
- 提携サイト等より掲載されている物件情報につきましては、不動産会社詳細情報にリンクされていないものがあります。
- 物件に関するお問合せは、物件詳細ページの「情報提供会社」に表示されている不動産会社へ直接お願いいたします。
- 間取図は、現況を優先させていただきます。
- 映像は物件の一部を撮影したものです。物件の契約にあたっての最終判断はご自身の判断に基づいて行ってください。
- 仲介手数料について

アットホームは物件情報の適正化に努めております。
内容に誤りがある場合にはこちらへご連絡ください。