大阪府大東市北条5丁目(四条畷駅)の賃貸:物件詳細
交通 所在地 |
駅徒歩 |
賃料 管理費等 |
敷金/保証金 礼金 |
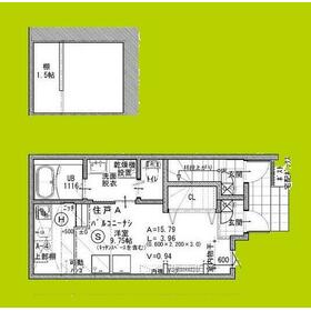
間取り 面積 |
物件種目 築年月 |
|
JR片町線/四条畷
大阪府大東市北条5丁目
|
14分
|
5.4万円
5,000円
|
なし / なし
なし
|
ワンルーム
25.37m²
|
賃貸アパート
2025年4月
|
常時ゴミ出し可能、高齢者相談、IT重説対応物件
|
|
間取図
|
外観
|
その他の画像
|
| 交通 | JR片町線 四条畷駅 徒歩14分 |
| 所在地 |
大阪府大東市北条5丁目
|
| 物件種目 |
賃貸アパート |
| 賃料 |
5.4万円 |
管理費等 |
5,000円 |
| 敷金 / 保証金 |
なし / なし |
礼金 |
なし |
| 敷引 |
- |
保証金償却 |
- |
| その他一時金 |
電子キー設定・発行費:16,500円、Eサポート:8,800円 |
保険等 |
要 1年 11,000円 |
| 維持費等 |
水道代:2,200円/月 |
クレジットカード決済 |
初期費用可 |
| 間取り |
ワンルーム |
専有面積 |
25.37m² |
| 築年月 |
2025年4月
|
階建 / 階 |
2階建 / 1階 |
| 建物構造 |
木造 |
総戸数 |
- |
| 主要採光面 |
|
駐車場 |
- |
| バイク置き場 |
- |
駐輪場 |
有 |
| 建物名・部屋番号 |
あんしん+北条08-1083 |
ペット |
-
|
| リフォーム履歴 |
- |
| リノベーション履歴 |
- |
| 備考 |
賃貸保証等:加入要(初回保証料:総賃料の50%)
管理形態/管理員の勤務形態:-/-
IT重説対応物件
《初期費用減額プラン有物件》
|
| エネルギー消費性能 |
- |
| 断熱性能 |
- |
| 目安光熱費 |
- |
| バス・トイレ |
バス・トイレ別、浴室乾燥機、シャワー付洗面化粧台、洗面所独立、洗面台、シャワー、温水洗浄便座、トイレ |
| キッチン |
2口コンロ、ガスコンロ付 |
| セキュリティー |
モニター付インターホン |
| 収納 |
クローゼット、シューズボックス |
| 設備・サービス |
室内洗濯機置場、ロフト、フローリング、プロパンガス、エアコン |
| TV・通信 |
CATVインターネット、ケーブルTV、CS、BS端子 |
| その他 |
宅配BOX、駐輪場 |
| 契約期間 |
2年 |
現況 |
空家 |
| 条件等 |
- |
入居可能時期 |
即時 |
| 更新料 |
- |
物件番号 |
1129702704 |
| 情報公開日 |
2025年3月3日 |
次回更新予定日 |
2025年10月28日 |
| ケータイ用バーコード |
- スマートフォンでこの物件を見る
- スマートフォンからもこの物件をご覧になれます。
|
※「-」と表示されている項目については、情報提供会社にご確認ください。
| 周辺施設 |
四條畷警察署 楠公交番 |
| 距離 |
1089m |
写真を見る |
| 周辺施設 |
ディスカウントストア コレモ四条畷店 |
| 距離 |
1174m |
写真を見る |
| 周辺施設 |
ローソンストア100 LS大東北楠の里店 |
| 距離 |
1253m |
写真を見る |
| 周辺施設 |
じゃんぼ食鮮館野崎 |
| 距離 |
1292m |
写真を見る |
| 周辺施設 |
キャンドゥ ダイエー四条畷店 |
| 距離 |
1423m |
写真を見る |
| 周辺施設 |
池田泉州銀行大東支店 |
| 距離 |
1418m |
写真を見る |
| 周辺施設 |
マクドナルド 外環四条畷店 |
| 距離 |
1932m |
写真を見る |
| 周辺施設 |
四條畷市役所 |
| 距離 |
2047m |
写真を見る |
ここから簡単にお問い合わせをすることができます。
(SSLでの暗号化での送信を希望されるお客さまは
こちら
よりお問い合わせください)
お問い合わせを行う前に
「個人情報の取り扱いについて」を必ずお読みください。
「個人情報の取り扱いについて」に同意いただいた場合は「上記にご同意の上 確認画面へ進む」のボタンをクリックしてください。
個人情報の取り扱いについて
皆さまが送付された個人情報はアットホーム(株)のサーバを経由し、お問い合わせ先の不動産会社にメールまたはFAXにて転送されるためアットホーム(株)にも保管されます。アットホーム(株)で保管された個人情報の取り扱いについては、【こちら】をご覧ください。
また、本画面でご記入いただいた個人情報は、お問い合わせ先の不動産会社でも保管します。 お問い合わせ先の不動産会社が保管する個人情報の取り扱いについては、不動産会社に直接お問い合わせください。
大阪府知事免許(3)第58352号 |
|---|
- 交通:
- 地下鉄四つ橋線/四ツ橋駅 徒歩1分
- 大阪府大阪市西区北堀江1丁目2-17 四ツ橋川崎ビル6F EAST
- TEL:
- 0120-321-586
- FAX:
- 06-6531-3292
- 所属団体:
- (一社)大阪府宅地建物取引業協会会員(公社)近畿地区不動産公正取引協議会加盟
取引態様:仲介  - 50100736
|
- スマートフォンで
この不動産会社を見る

|
- 提携サイト等より掲載されている物件情報につきましては、不動産会社詳細情報にリンクされていないものがあります。
- 物件に関するお問合せは、物件詳細ページの「情報提供会社」に表示されている不動産会社へ直接お願いいたします。
- 間取図は、現況を優先させていただきます。
- 映像は物件の一部を撮影したものです。物件の契約にあたっての最終判断はご自身の判断に基づいて行ってください。
- 仲介手数料について

アットホームは物件情報の適正化に努めております。
内容に誤りがある場合にはこちらへご連絡ください。