東京都世田谷区下馬1丁目(祐天寺駅)の賃貸:物件詳細
交通 所在地 |
駅徒歩 |
賃料 管理費等 |
敷金/保証金 礼金 |
間取り 面積 |
物件種目 築年月 |
|
東急東横線/祐天寺
東京都世田谷区下馬1丁目
|
13分
|
12.2万円
12,000円
|
1ヶ月 / なし
1ヶ月
|
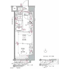
2K
25.46m²
|
賃貸マンション
2023年2月(築2年11ヶ月)
|
南向き、二人入居可、保証人不要
|
|
間取図
|
外観
|
<
その他の画像
>
|
| 交通 | 東急東横線 祐天寺駅 徒歩13分 |
|---|
| その他の交通 | 東急田園都市線 三軒茶屋駅 徒歩17分 東急田園都市線 池尻大橋駅 徒歩19分 |
| 所在地 |
東京都世田谷区下馬1丁目
|
| 物件種目 |
賃貸マンション |
| 賃料 |
12.2万円 |
管理費等 |
12,000円 |
| 敷金 / 保証金 |
1ヶ月 / なし |
礼金 |
1ヶ月 |
| 敷引 |
- |
保証金償却 |
- |
| その他一時金 |
退去時エアコンクリーニング:13,200円、カードキー発行:16,500円、退去時ハウスクリーニング:48,400円 |
保険等 |
要 2年 20,000円 |
| 維持費等 |
FAST ASSIST24:1,100円/月 |
| 間取り |
2K(洋4.3、洋3.5) |
専有面積 |
25.46m² |
| 築年月 |
2023年2月(築2年11ヶ月)
|
階建 / 階 |
9階建 / 8階 |
| 建物構造 |
RC |
総戸数 |
- |
| 主要採光面 |
南 |
駐車場 |
- |
| バイク置き場 |
無 |
駐輪場 |
無 |
| 建物名・部屋番号 |
クレイシアIDZ祐天寺 801 |
ペット |
-
|
| リフォーム履歴 |
- |
| リノベーション履歴 |
- |
| 備考 |
賃貸保証等:加入要(新日本信用保証 初回契約時:40%、更新時:10,000円、その他プラン有※新日本信用保証の場合口座振替手数料216円(税込)/月、ジャックスの場合口座振替手数料無し)
管理形態/管理員の勤務形態:-/-
東急東横線祐天寺駅周辺への引っ越しをお考えなら「クレイシアIDZ祐天寺」。ファミリーマート 世田谷下馬一丁目店まで徒歩2分と近場にコンビニがあるのもポイント。こだわりのある住まいを探している方、当社にお任せしませんか?豊富な賃貸情報と地域情報をご提供しておりますので、ご安心していただけます。ご要望やご不明な点など、お気軽にご連絡下さい。
「クレイシアIDZ祐天寺」のここがイチオシ。ファミリーマート 世田谷下馬一丁目店まで徒歩2分と近場にコンビニがあるのもポイント。お風呂が好きな方に欠かせない追い炊き機能付き。利便性の高い暮らしをするなら世田谷区でいかがでしょうか。賃貸住宅情報をお探しの際には、ぜひお気軽に当社までご連絡下さい。しっかりとサポート致します。
|
| エネルギー消費性能 |
- |
| 断熱性能 |
- |
| 目安光熱費 |
- |
| バス・トイレ |
バス・トイレ別、浴室乾燥機、追焚機能、温水洗浄便座、トイレ |
| キッチン |
2口コンロ |
| セキュリティー |
オートロック、防犯カメラ |
| 収納 |
収納スペース、クローゼット |
| 設備・サービス |
室内洗濯機置場、洗濯機置場、エアコン |
| TV・通信 |
インターネット使用料無料 |
| その他 |
宅配BOX、バルコニー、エレベーター |
| 契約期間 |
2年 |
現況 |
居住中 |
| 条件等 |
- |
入居可能時期 |
2026年2月上旬予定 |
| 更新料 |
新賃料 1ヶ月 |
物件番号 |
1129702819 |
| 情報公開日 |
2025年12月12日 |
次回更新予定日 |
2025年12月29日 |
| ケータイ用バーコード |
- スマートフォンでこの物件を見る
- スマートフォンからもこの物件をご覧になれます。
|
※「-」と表示されている項目については、情報提供会社にご確認ください。
| 周辺施設 |
セブンイレブン 世田谷下馬北店 |
| 距離 |
224m |
写真を見る |
| 周辺施設 |
サミットストア 下馬店総菜棟 |
| 距離 |
129m |
写真を見る |
ここから簡単にお問い合わせをすることができます。
(SSLでの暗号化での送信を希望されるお客さまは
こちら
よりお問い合わせください)
お問い合わせを行う前に
「個人情報の取り扱いについて」を必ずお読みください。
「個人情報の取り扱いについて」に同意いただいた場合は「上記にご同意の上 確認画面へ進む」のボタンをクリックしてください。
個人情報の取り扱いについて
皆さまが送付された個人情報はアットホーム(株)のサーバを経由し、お問い合わせ先の不動産会社にメールまたはFAXにて転送されるためアットホーム(株)にも保管されます。アットホーム(株)で保管された個人情報の取り扱いについては、【こちら】をご覧ください。
また、本画面でご記入いただいた個人情報は、お問い合わせ先の不動産会社でも保管します。 お問い合わせ先の不動産会社が保管する個人情報の取り扱いについては、不動産会社に直接お問い合わせください。
東京都知事免許(1)第106938号 |
|---|
- 交通:
- 東急田園都市線/三軒茶屋駅 徒歩1分
- 東京都世田谷区三軒茶屋1丁目37-8 ワコーレ三軒茶屋64ビル3A-5
- TEL:
- 03-6450-7277
- FAX:
- 03-6850-7600
- 所属団体:
- (公社)全日本不動産協会会員(公社)首都圏不動産公正取引協議会加盟
取引態様:仲介  - 00271188
|
- スマートフォンで
この不動産会社を見る

|
- 提携サイト等より掲載されている物件情報につきましては、不動産会社詳細情報にリンクされていないものがあります。
- 物件に関するお問合せは、物件詳細ページの「情報提供会社」に表示されている不動産会社へ直接お願いいたします。
- 間取図は、現況を優先させていただきます。
- 映像は物件の一部を撮影したものです。物件の契約にあたっての最終判断はご自身の判断に基づいて行ってください。
- 仲介手数料について

アットホームは物件情報の適正化に努めております。
内容に誤りがある場合にはこちらへご連絡ください。