東京都大田区新蒲田2丁目(蓮沼駅)の賃貸:物件詳細
交通 所在地 |
駅徒歩 |
賃料 管理費等 |
敷金/保証金 礼金 |
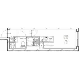
間取り 面積 |
物件種目 築年月 |
|
東急池上線/蓮沼
東京都大田区新蒲田2丁目
|
9分
|
8.5万円
5,000円
|
なし / なし
1ヶ月
|
1K
20.00m²
|
賃貸マンション
2026年3月
|
|
間取図
|
その他
|
その他の画像
|
| 交通 | 東急池上線 蓮沼駅 徒歩9分 |
|---|
| その他の交通 | 東急多摩川線 矢口渡駅 徒歩9分 JR京浜東北線 蒲田駅 徒歩13分 |
| 所在地 |
東京都大田区新蒲田2丁目
|
| 物件種目 |
賃貸マンション |
| 賃料 |
8.5万円 |
管理費等 |
5,000円 |
| 敷金 / 保証金 |
なし / なし |
礼金 |
1ヶ月 |
| 敷引 |
- |
保証金償却 |
- |
| その他一時金 |
なし |
保険等 |
要 2年 18,000円 |
| 維持費等 |
サポート:1,100円/月 |
| 間取り |
1K(洋7.1) |
専有面積 |
20.00m² |
| 築年月 |
2026年3月
|
階建 / 階 |
4階建 / 1階 |
| 建物構造 |
RC |
総戸数 |
- |
| 主要採光面 |
|
駐車場 |
- |
| バイク置き場 |
- |
駐輪場 |
- |
| 建物名・部屋番号 |
フラシア新蒲田 |
ペット |
-
|
| リフォーム履歴 |
- |
| リノベーション履歴 |
- |
| 備考 |
賃貸保証等:加入要(詳細はお問い合わせください)
管理形態/管理員の勤務形態:-/-
☆類似物件・新着物件を日々更新!お気軽にご相談ください☆
【初期費用・web内見・入居日交渉等なんでもご相談ください】空室の確認は即時返答★現地お待合わせでもご案内可能/品川・目黒・大田・世田谷区・その他エリアのネットに出ていない新着・類似物件も多数ご用意★仕様・図面・写真等に相違があった場合は現況を優先します。退去時清掃費用有、エアコン清掃費用有、短期解約違約金有
|
| エネルギー消費性能 |
- |
| 断熱性能 |
- |
| 目安光熱費 |
- |
| バス・トイレ |
バス・トイレ別、洗面所独立、洗面所、洗面台、シャワー、温水洗浄便座、トイレ |
| キッチン |
システムキッチン、IHクッキングヒーター |
| セキュリティー |
モニター付オートロック、オートロック、モニター付インターホン、ディンプルキー、防犯カメラ |
| 収納 |
収納スペース、シューズボックス |
| 設備・サービス |
室内洗濯機置場、洗濯機置場、都市ガス給湯、給湯、フローリング、都市ガス、エアコン |
| TV・通信 |
インターネット対応、インターネット使用料無料 |
| その他 |
宅配BOX |
| 契約期間 |
2年 |
現況 |
未完成 |
| 条件等 |
- |
入居可能時期 |
2026年4月上旬予定 |
| 更新料 |
新賃料 1ヶ月 |
物件番号 |
1130838219 |
| 情報公開日 |
2025年12月20日 |
次回更新予定日 |
2026年1月3日 |
| ケータイ用バーコード |
- スマートフォンでこの物件を見る
- スマートフォンからもこの物件をご覧になれます。
|
※「-」と表示されている項目については、情報提供会社にご確認ください。
| 周辺施設 |
ファミリーマート 小浦蒲田駅西店 |
| 距離 |
892m |
写真を見る |
| 周辺施設 |
西友 矢口ノ渡店 |
| 距離 |
629m |
写真を見る |
| 周辺施設 |
まいばすけっと 矢口渡店 |
| 距離 |
840m |
写真を見る |
| 周辺施設 |
松屋 西蒲田店 |
| 距離 |
812m |
写真を見る |
| 周辺施設 |
Welpark(ウェルパーク) 東矢口店 |
| 距離 |
813m |
写真を見る |
| 周辺施設 |
ユザワヤ 蒲田店 |
| 距離 |
904m |
写真を見る |
ここから簡単にお問い合わせをすることができます。
(SSLでの暗号化での送信を希望されるお客さまは
こちら
よりお問い合わせください)
お問い合わせを行う前に
「個人情報の取り扱いについて」を必ずお読みください。
「個人情報の取り扱いについて」に同意いただいた場合は「上記にご同意の上 確認画面へ進む」のボタンをクリックしてください。
個人情報の取り扱いについて
皆さまが送付された個人情報はアットホーム(株)のサーバを経由し、お問い合わせ先の不動産会社にメールまたはFAXにて転送されるためアットホーム(株)にも保管されます。アットホーム(株)で保管された個人情報の取り扱いについては、【こちら】をご覧ください。
また、本画面でご記入いただいた個人情報は、お問い合わせ先の不動産会社でも保管します。 お問い合わせ先の不動産会社が保管する個人情報の取り扱いについては、不動産会社に直接お問い合わせください。
国土交通大臣免許(1)第10473号 |
|---|
- 交通:
- JR山手線/五反田駅 徒歩4分
- 東京都品川区西五反田1丁目32-11 オークラビル8F
- TEL:
- 03-6824-9514
- FAX:
- 03-6431-8530
- 所属団体:
- (公社)東京都宅地建物取引業協会会員(公社)首都圏不動産公正取引協議会加盟
取引態様:仲介  - 00261464
|
- スマートフォンで
この不動産会社を見る

|
- 提携サイト等より掲載されている物件情報につきましては、不動産会社詳細情報にリンクされていないものがあります。
- 物件に関するお問合せは、物件詳細ページの「情報提供会社」に表示されている不動産会社へ直接お願いいたします。
- 間取図は、現況を優先させていただきます。
- 映像は物件の一部を撮影したものです。物件の契約にあたっての最終判断はご自身の判断に基づいて行ってください。
- 仲介手数料について

アットホームは物件情報の適正化に努めております。
内容に誤りがある場合にはこちらへご連絡ください。